
Prodej domu 4+1 • 93 m² bez realitkyHamburg Heimfeld Hamburg 21075
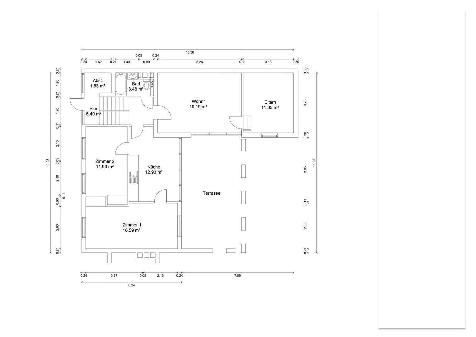
Na klidném a zeleném Schüslerově cestě na vás čeká čerstvě zrekonstruovaný řadový dům, který rodinám nabízí promyšlený, útulný a zároveň moderní domov. Přibližně 83 m² se dělí na čtyři prostorně řešené místnosti, včetně tří ložnic, které mohou být flexibilně využity jako dětské pokoje, domácí kanceláře či pokoj pro hosty. Terasa o rozloze přibližně 20 m² je částečně započítána do obytné plochy.
Jedním z hlavních lákadel je nově zrekonstruovaná moderní koupelna, která kombinuje komfort a čisté linie – ideální nejen pro každodenní rodinný život, ale také doplňuje rozsáhlou zahradu.
Trojskla zajišťují klid, energetickou účinnost a příjemné bydlení. Světlý obývací pokoj se otevírá do chráněné terasy, což vyzývá k relaxaci venku. Dům z roku 1957 je průběžně udržován a dálkové vytápění přináší jistotu při plánování.
Okouzlující, zmodernizovaný domov v srdci Hamburku-Heimfeld – ideální pro rodiny, které se chtějí ihned nastěhovat a cítit se tu jako doma.
Hamburg-Heimfeld patří mezi nejoblíbenější obytné lokality v jižním Hamburku – je zelený, klidný a zároveň má vynikající dopravní spojení. Školy, jesle i nákupní možnosti jsou v bezprostřední blízkosti, což značně usnadňuje každodenní život rodin. Stanice S-Bahn Heimfeld je snadno dostupná a přímo propojuje čtvrť s centrem Hamburku. Parky, dětská hřiště a nedaleký Forst Klövensteen poskytují cenný odpočinek přímo za dveřmi.
Počet místností: 4
Ložnice: 3
Koupelny: 1
Obytná plocha: 93 m² (teraasa započítána jen z poloviny)
Vytápění: dálkové vytápění
Rok vzniku topného zařízení: 1990
Energetická náročnost: F
Platnost energetického průkazu do: 14.11.2035
Rok výstavby: 1957
V okolí nemovitosti najdete
Stále hledáte to pravé?
Nastavte si hlídacího psa. Nabídky vybrané na míru dostanete souhrnně 1× denně e-mailem. S Premium profilem máte k ruce hlídačů rovnou 5 a když se něco objeví, informují vás obratem.











