
Prodej domu 4+1 • 120 m² bez realitkyIngolstadt Dünzlau Bayern 85049
Ingolstadt Dünzlau Bayern 85049MHD do minuty pěšky • GarážModerní polodům s nádhernou zahradou a skvělým výhledem
Vítejte v Dünzlau, Ingolstadtu!
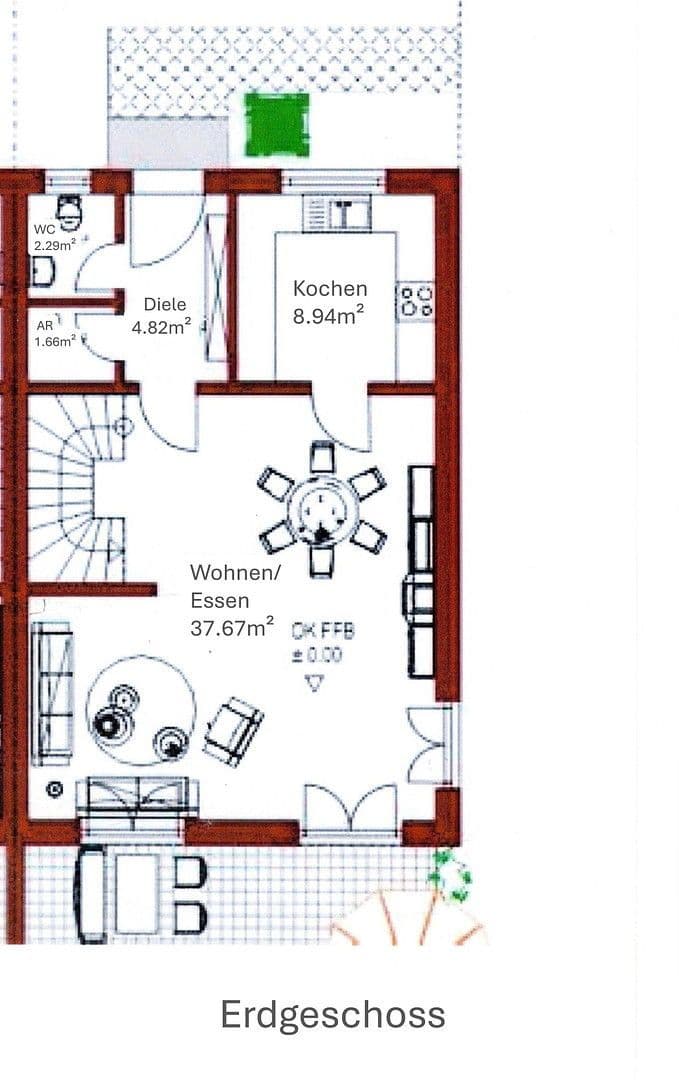
Tento přitažlivý, udržovaný a moderní polodům nabízí na 120 metrech čtverečních dostatek prostoru pro celou rodinu. Se čtyřmi prostornými pokoji a moderní koupelnou s příjemným podlahovým topením je tento domov ideální pro rodiny, které si cení komfortu a stylu. Užijte si relaxační chvilky v již existující překrásné zahradě nebo na slunečné terase. Díky mnoha medonosným trvalkám můžete na jaře a v létě pozorovat množství hmyzu a motýlů. K dispozici je rovněž hotová garáž a parkovací místo, což vám usnadní každodenní život. Také nový a moderní dřevostojný kamna zajišťují v zimě příjemné teplo a útulnost.
Polodům disponuje fotovoltaickou instalací s výkonem 4,86 kWp. Pro ohřev teplé vody slouží solární systém na střeše.
Polodům byl v roce 2023 zvenku nově natřen. Otevřený obývací a jídelní prostor dostal loni novou designovou podlahu a vnitřní stěny byly na konci roku 2023 rovněž nově natřeny.
Podkrovní patro je částečně dokončeno (přístup po schodech, podhled, okna a mezikrovová izolace). Dokončením tohoto prostoru vznikne dodatečných cca 35 m² obytné plochy.
Suterén se třemi prostornými místnostmi je kompletně obložen dlažbou.
Centrum Ingolstadtu je jen kousek odsud. V blízkosti najdete několik obchodů, včetně supermarketu, a také základní a částečná střední škola i mateřská škola nejsou daleko. Dünzlau je obklopeno četnými poli a cyklostezkami, které vás zvou ke sportovním aktivitám.
Využijte tuto příležitost získat domov v rodinně přátelské čtvrti. Nenechte si tento sen ujít! Kontaktujte nás pro prohlídku! Prosíme, žádné dotazy realitních makléřů!
V okolí nemovitosti najdete
Stále hledáte to pravé?
Nastavte si hlídacího psa. Nabídky vybrané na míru dostanete souhrnně 1× denně e-mailem. S Premium profilem máte k ruce hlídačů rovnou 5 a když se něco objeví, informují vás obratem.














