
Pronájem bytu 3+1 • 60 m² bez realitkyEibenweg 7 Stuttgart Degerloch Baden-Württemberg 70597
Eibenweg 7 Stuttgart Degerloch Baden-Württemberg 70597MHD 8 minut pěškyKrásný 3-pokojový byt v 1. patře v oblíbené lokalitě Waldau.
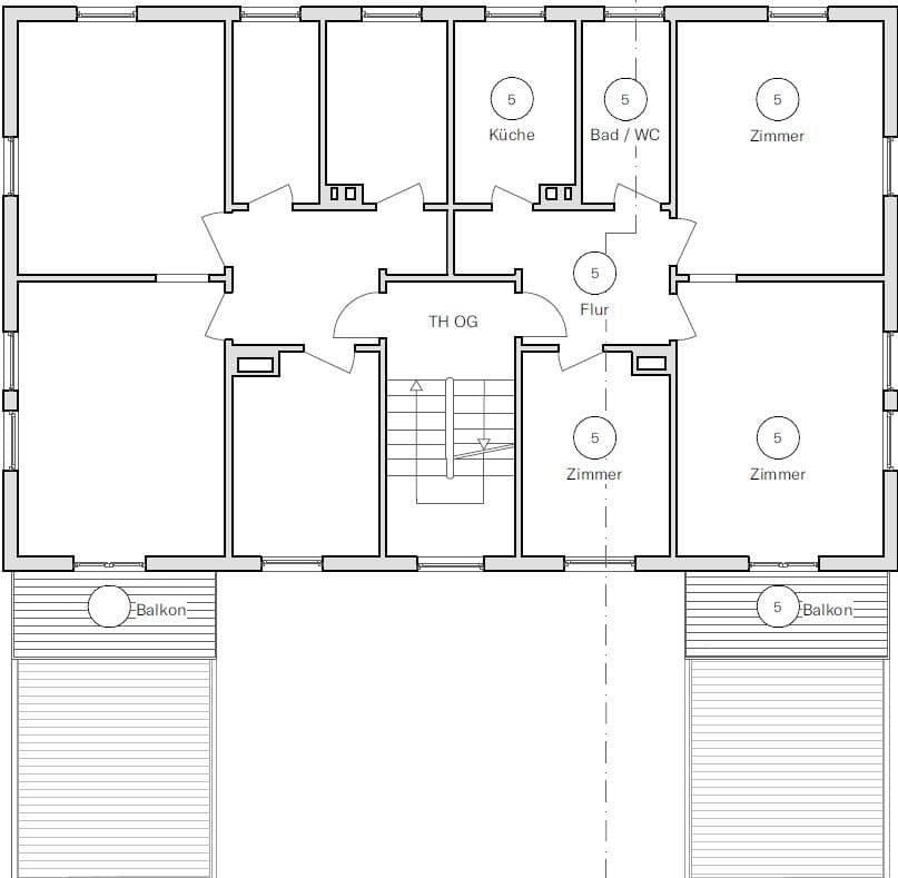
V žádané obytné čtvrti Stuttgart-Degerloch, v klidné čtvrti Waldau, vám nabízíme útulný byt, který byl kompletně a čerstvě zrenovován s promyšleným půdorysem, k pronájmu.
Hlavní přednosti bytu
- 3 samostatné pokoje
- Koupelna s denním světlem
- Vlastní sklepní kómora
- Nové plynové podlahové topení pro individuální regulaci teploty
- Balkon orientovaný na jihozápad
Bytová plocha a dispozice
Byt má rozlohu přibližně 60 m². Tři samostatné pokoje nabízejí široké možnosti využití, ať už jako obývací, ložnici nebo pracovna.
Lokalita a infrastruktura
Adresa Eibenweg 7 se nachází v oblíbené čtvrti Stuttgart Degerloch, konkrétně ve čtvrti Waldau. Lokalita láká:
- Velmi dobrou dostupností městské hromadné dopravy v docházkové vzdálenosti
- Dostatek bezplatných parkovacích míst přímo před domem
- Klidnou, ustálenou obytnou čtvrť
- Blízkost k rekreační zóně
- Dobrou infrastrukturou s možnostmi nákupu v okolí
Boston Immobilien GmbH
Baronstraße 4, 92533 Wernberg-Köblitz
Tel.: +49 711 7220 33 44
E-mail: info@boston-immo.de
DIČ: DE413891480
Ředitel: Dr. Martin Kunschert
Sídlo společnosti: Wernberg-Köblitz, obchodní rejstřík: Amberg HRB 7027
V okolí nemovitosti najdete
Stále hledáte to pravé?
Nastavte si hlídacího psa. Nabídky vybrané na míru dostanete souhrnně 1× denně e-mailem. S Premium profilem máte k ruce hlídačů rovnou 5 a když se něco objeví, informují vás obratem.













