
Pronájem bytu 3+1 • 80 m² bez realitkyKapuzinerstraße 15 München Isarvorstadt Bayern 80337
Kapuzinerstraße 15 München Isarvorstadt Bayern 80337MHD 2 minuty pěšky • VýtahKvalitně zrekonstruovaný 3-pokojový byt v centrální lokalitě Mnichova, čtvrť Ludwigsvorstadt-Isarvorstadt.
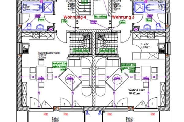
Světlý byt disponuje dubovým parketovým podlahováním, vestavěnou kuchyní i balkonem.
Ludwigsvorstadt v Mnichově se vyznačuje svou centrální polohou, živou atmosférou a kreativní rozmanitostí. Ulice kolem populární čtvrti u kliniky a podél řeky Isar jsou obzvláště poznamenány zajímavou kombinací obchodů, lákavých vil, moderních podniků, kaváren a barů.
Každoroční Oktoberfest na Theresienwiese je jen jedním z vrcholů tohoto okresu. Sousedské čtvrti Glockenbach a Dreimühlen také přitahují pozornost kulturních nadšenců a milovníků nočního života. Zde se rozvíjí pulzující noční život s bouřlivými pouličními slavnostmi a stylovými podniky.
Ideální dostupnost veřejnou dopravou je zaručena.
- Vestavěná kuchyň
- Dubový parket
- zrekonstruovaná sprchová koupelna
- samostatná hostinská toaleta
- nová okna
- balkon
- výtah
- obnova veškeré techniky budovy
- izolace fasády
- centrální poloha
V okolí nemovitosti najdete
Stále hledáte to pravé?
Nastavte si hlídacího psa. Nabídky vybrané na míru dostanete souhrnně 1× denně e-mailem. S Premium profilem máte k ruce hlídačů rovnou 5 a když se něco objeví, informují vás obratem.










