
Prodej bytu 2+1 • 57 m² bez realitkyNathanaelstrasse 19 Leipzig Altlindenau Sachsen 04177
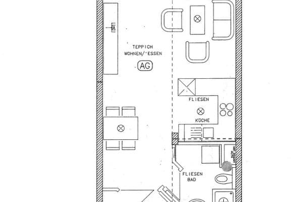
Nathanaelstrasse 19 Leipzig Altlindenau Sachsen 04177MHD 1 minuta pěšky • VýtahPečlivě udržovaný obytný dům z roku 1995 se nachází v klidné a příjemné ulici a nabízí uvolněné prostředí pro bydlení. Byt disponuje dvěma prostorně řešenými místnostmi s přívětivou, světlou atmosférou. Především obývací pokoj zaujme velkými prosklenými plochami, které propouštějí dostatek denního světla a vytvářejí pocit otevřeného prostoru. Nabídku prostoru dále rozšiřuje koupelna s denním světlem a praktická komora, která poskytuje dodatečný úložný prostor.
Měsíční správcovský poplatek činí 291 €. Právě nejsou plánovány žádné sanace, takže není nutná žádná krátkodobá investice. Společenství vlastníků má solidní fond na údržbu; na konci roku 2024 dosáhne výše 14 800 €. Celkově se jedná o atraktivní nemovitost s dobrou strukturou, klidnou polohou a promyšleným dispozicím.
Adresa Nathanaelstraße 19 se nachází v západní části Lipska, ve čtvrti Altlindenau/Lindenau (PSČ 04177) – v živé, vyvinuté obytné čtvrti na pomezí s Plagwitz. V bezprostředním okolí tvoří obraz rekonstruované staré domy, klidné vedlejší ulice a městská sousedství; nákupní možnosti, kavárny a malé obchody jsou dosažitelné pěšky. Karl-Heine-Kanal a ulice Karl-Heine, se svou nabídkou kulturních, gastronomických a kreativních aktivit, jsou vzdáleny jen několik minut a poskytují vysokou kvalitu volnočasových a odpočinkových možností.
Doprava veřejnou dopravou je velmi dobrá: přes nedaleké zastávky tramvají a autobusu, s napojením na S-Bahn stanici Plagwitz a dále do centra města a k hlavnímu nádraží, se člověk rychle dostane do centra a po celé městě. Celkově tato lokalita nabízí atraktivní kombinaci klidného bydlení a bezprostřední blízkosti jednoho z nejdynamičtějších lipských čtvrtí s bohatou scénou i přilehlou vodní oblastí.
V okolí nemovitosti najdete
Stále hledáte to pravé?
Nastavte si hlídacího psa. Nabídky vybrané na míru dostanete souhrnně 1× denně e-mailem. S Premium profilem máte k ruce hlídačů rovnou 5 a když se něco objeví, informují vás obratem.










