
Prodej bytu 3+1 • 94 m² bez realitkyBrunckhorstweg 4 Hamburg Stellingen Hamburg 22525
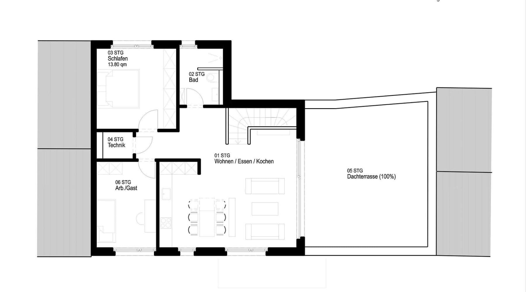
Dieses lichtdurchflutete Penthouse spojuje moderní design, otevřený pocit prostoru a vzácnou střešní terasu o výměře 37 m² – místo, které téměř plynule rozšiřuje obytný prostor do exteriéru. Téměř výhradně podlahová okna přinášejí dovnitř oblohu a dávají celému prostoru prostornost.
Byt se rozkládá na dvou úrovních: V přízemí vás přivítá přívětivě navržená vstupní hala s zakázkově vyrobenou šatní skříní, malou lavicí a samostatnou prádelnou. Otevřený schodiště se světlou výškou stropu přes dvě patra, doprovázené množstvím denního světla, vede do horního podlaží s impozantní stropní výškou cca 2,75 m.
Obývací a jídelní prostor plynule přechází jeden do druhého a je opticky propojen s terasou díky velmi velkým posuvným skleněným dveřím. Podle potřeby zajišťují blackout včelí plisé úplné zatmí a soukromí. Vysoce kvalitní LEICHT-kuchyně s vestavěnými spotřebiči od značek Siemens a Miele, dánskými designovými dlaždicemi a pracovní deskou z umělého kamene se harmonicky zařazuje do otevřeného dispozice.
Soukromá zóna zahrnuje univerzálně využitelný pokoj, světlou ložnici a moderní koupelnu s walk-in sprchou, skleněným oddělením a stropními reflektory. Funkční dispozici doplňuje také dodatečná úložná místnost.
Terasa o výměře 37 m² díky impozantní koruně stromu naproti se mění v klidné, zelené útočiště. Statika terasy také umožňuje instalaci vířivky.
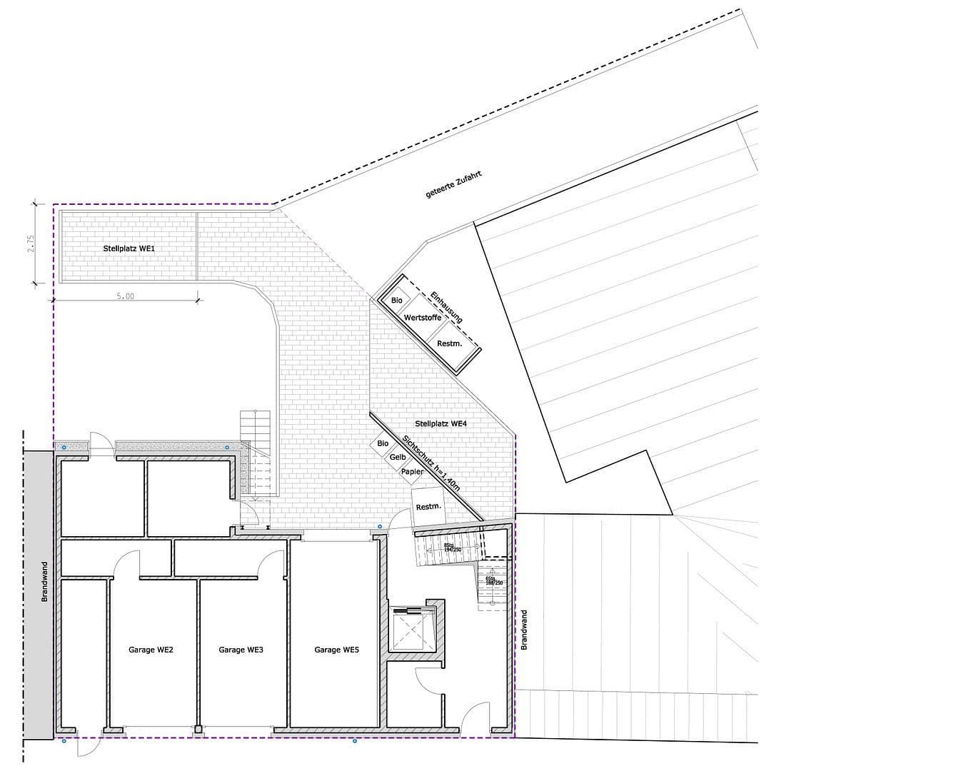
Jedním z mimořádných komfortních prvků je vlastní garáž v přízemí (19,28 m²) s velkorysým úložným prostorem, jen pár kroků od výtahu. Ať už jde o nákupy nebo zavazadla: Krátká cesta z auta do bytu výrazně usnadňuje každodenní život.
Podlahové vytápění, olejovaný dubový parket, klidná a udržovaná obytná komunita a výtah až do 4. patra vše krásně doplňují.
Byt je nabízen přímo vlastníkem bez provize a je k dispozici od 01.02.2026.
Penthouse se nachází v Brunckhorstweg přímo u přechodu do Eimsbüttelu, jedné z nejpopulárnějších čtvrtí Hamburku. Lokalita spojuje městský puls s klidem udržované vedlejší ulice. Kavárny, malé restaurace, pekárny, butiky a vše potřebné pro každodenní potřeby jsou pohodlně dosažitelné pěšky. Ulice Osterstraße je také dostupná pěšky.
Doprava je vynikající: Několik autobusových linek i S-Bahn nabízejí rychlé spoje směrem do centra, do Altona a na letiště. Okolí se vyznačuje mladou, přátelskou komunitou a láká zejména páry, expaty a pracovníky, kteří chtějí bydlet v blízkosti centra.
Parky, zelené plochy a hřiště se nacházejí v bezprostřední blízkosti, což vytváří příjemnou obytnou atmosféru. Ideální pro všechny, kteří chtějí propojit městský život s příjemnými relaxačními chvilkami.
• přibližně 94 m² obytné plochy (včetně 50 % terasy)
• Vestavěná LEICHT kuchyně se spotřebiči od Miele & Siemens
• Téměř výhradně podlahová okna, částečně dvojkrát otevíratelná
• 2,75 m stropní výška v obývacím prostoru
• 37 m² střešní terasa s krásným výhledem do zeleně a na korunu stromu
• Terasová statika připravená pro umístění vířivky
• Olejovaný dubový parket a centrální podlahové vytápění
• Velmi velké posuvné skleněné dveře spojující obývací prostor s terasou
• Walk-in sprcha se skleněným oddělením a stropními reflektory
• Vestavěná police v koupelně
• Zakázkové vestavby ve vstupní hale
• Úložná místnost s praktickým regálovým systémem
• Samostatná prádelna v přízemí
• Integrovaný audio systém: stropní reproduktory v koupelně a venkovní reproduktory na terase
• Prostorná soukromá garáž (19,28 m²) s úložným prostorem a elektrickým zájezdovým vraty
• Komfortní přístup: Garáž se nachází přímo u výtahu
• Větrací systém s rekuperací tepla
• Moderní budova (postavená v roce 2012), výtah až do 4. patra
• Klidná, udržovaná obytná komunita
Kupní cena činí 924 000 EUR, plus 25 000 EUR za vlastní garáž v domě.
Kupující nemusí platit provizi.
Měsíční poplatek na správu domu činí 522 EUR, zahrnující mimo jiné příspěvek do rezervního fondu.
Jak bude dále postupováno po vašem dotazu?
Těšíme se na váš zájem o byt. Pokud nás budete kontaktovat, prosíme uveďte své celé jméno a e-mailovou adresu. Brzy se vám ozveme s dalšími informacemi a vysvětlíme další kroky.
Máte-li jakékoli dotazy, jsme vám kdykoli k dispozici!
V okolí nemovitosti najdete
Stále hledáte to pravé?
Nastavte si hlídacího psa. Nabídky vybrané na míru dostanete souhrnně 1× denně e-mailem. S Premium profilem máte k ruce hlídačů rovnou 5 a když se něco objeví, informují vás obratem.






















