
Prodej domu • 263 m² bez realitky, Bádensko-Württembersko
Popis objektu
Představte si, že přijedete domů – a za ulicí se najednou otevírá malý, chráněný svět z přírodního kamene, dřeva a zeleně: dům s historií, prostorností a tím vzácným pocitem, že jste „doma“. Přesně to nabízí tento zrekonstruovaný, samostatně stojící obytný dům (postavený cca v roce 1800) – nabídka od vlastníka k vlastníku, bez makléřské provize a s přímou komunikací s majiteli.
Fakta na první pohled:
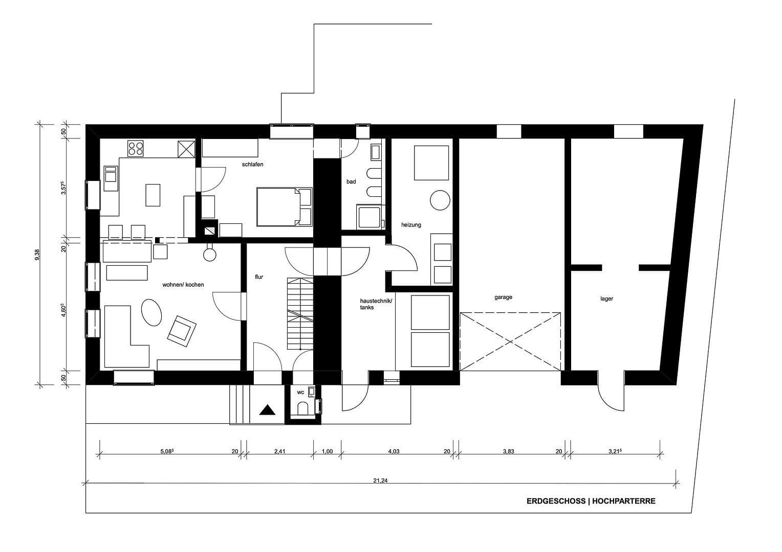
• Obytná plocha: cca 263 m²
• Pozemek: cca 989 m², orientace na jihozápad
• Pokoje: 8, ložnice: 3, koupelny: 3
• Typ objektu: samostatně stojící rodinný dům s přístavbou/bytem
• Podlaží: 3
• Není chráněn památkovou péčí
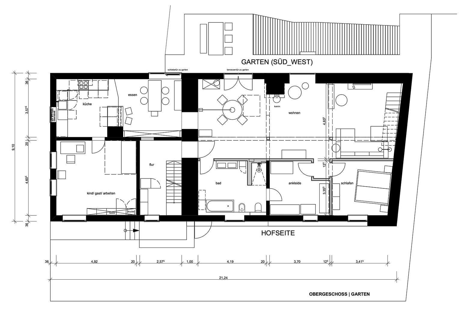
• Hlavní přednosti: velký obytný ateliér/obývací pokoj (cca 12 × 5 m, s výškou stropu cca 4,5 m) s přírodními kamennými zdmi a odhalenými trámy, rozsáhlá zahrada s ovocnými stromy, terasa, garáž a 2 parkovací místa
• Fotovoltaika: 9,88 kWp, garantovaná odkupní cena elektřiny až do roku 2036 (0,123 € za kWh)
• Topení: Nízkoteplotní centrální kotel na olej (postaven 2004) s dvěma moderními dřevnými kamny jako doplňkovým zdrojem tepla
A pak přijde ten okamžik ve velkém, světlem zalitém obytném prostoru: vysoké stropy, výhled do zeleně, klid – domov, který si nejen prohlédnete, ale skutečně pocítíte.
Popis lokality
Ti, kdo touží po každodenním životě, který je zároveň klidný a praktický, si tuto lokalitu zamilují: Ve starém jádru obce Wössingen (obec Walzbachtal) bydlíte v rodinném a přátelském prostředí – a přitom máte vše na dosah ruky. Navíc, mimoričně velká zahrada s ovocným trávníkem přímo uprostřed obce působí jako soukromý kousek země.
Infrastruktura a dostupnost:
• S-Bahn „Wössingen Ost“ cca 10 minut pěšky – přímé spojení směrem do Karlsruhe (včetně S4 / RE45)
• Dálnice A5, A6, A8 dostupné během několika minut
• V obci (pěšky): základní škola, mateřské školy, lékaři a obchody
• V blízkém okolí mimo jiné: 2 pekárny, 2 restaurace, kavárna, lékař, radnice, dále zelené plochy/parkové prostory, pobočky pošty, fitness centrum, knihovna a fyzioterapeut
• Příroda hned za dveřmi: pole, louky, lesy – a také golfové hřiště v nedalekém golfovém klubu Johannesthal
Zde získáte to, co se stalo vzácným: život v srdci vesnice s opravdovým klidem, výbornou dostupností a s pocitem, že volný čas nepotřebuje složité plánování – začíná přímo za vašimi dveřmi.
Poznámky k vybavení
Tento dům vypráví svůj příběh – ale zároveň žije v dnešku: přírodní kamenné zdivo, odhalené trámy a vybavení, které činí každodenní život pohodlným. Zvláště působivý je obrovský obytný ateliér/obývací pokoj (cca 12 × 5 m, výška cca 4,5 m) – prostor pro světlo, kreativitu, oslavy a ten zvláštní „wow“ efekt, který se jen tak nedá napodobit.
Vybavení a rozložení:
• Hlavní byt/dům: cca 187 m², 6 pokojů
• Přístavba/byt: cca 55 m², 2 pokoje (ideální pro vícegenerační bydlení, home office, péči nebo hosty)
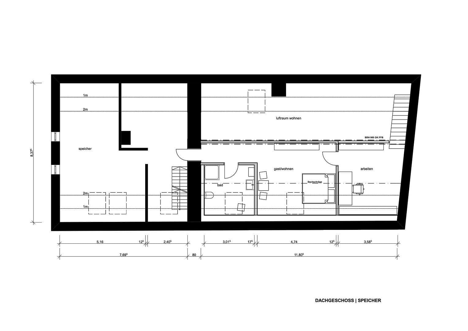
• Navíc: sklepní prostory a podkroví s rozšiřovacím potenciálem
• Poslední patro může sloužit jako prostor pro hosty či pracovní koutek s vlastní koupelnou
• Dubové parkety v obytných a ložnicových prostorách
• 3 zmodernizované koupelny (rekonstrukce v roce 2012 a 2018)
• Topení: Vitola-200 nízkoteplotní centrální kotel na olej (2004); pravidelně udržován a dle současných znalostí plně funkční
• 2 moderní dřevná kamna pro útulné doplňkové teplo
• Izolace: Horní stropní deska/střecha již izolována minerální vlnou
• Fotovoltaická instalace: 9,88 kWp, s odkupní sazbou do roku 2036
• Terasa se 2 pavilony (poskytuje flexibilní ochranu před sluncem i deštěm)
• Aktuální internet: Vodafone kabel 250 Mbit/s; Telekom DSL 6 Mbit/s (podle potřeb). Rozvoj optického vlákna: Plánován rozvoj „Deutsche Glasfaser“ po roce 2026 (plány a časový horizont se mohou změnit).
Energetická informace:
Energetická účinnost (roční konečná energetická potřeba, kWh/m²a) – Typické příklady:
• Třída D: 100–130 kWh/m²a – Velmi dobře zrekonstruované staré budovy
• Třída E: 130–160 kWh/m²a – Starší budovy se zvýřenou spotřebou
• Třída F: 160–200 kWh/m²a – Starší budovy se staršími systémy
• Třída G: 200–250 kWh/m²a – Starší budovy s vysokou spotřebou
Vystavený energetický průkaz: 224,64 kWh/(m²·a) = třída G
Skutečná spotřeba: průměrně 111–113 kWh/(m²·a) (průměr poslední 3 roky; závisí na chování uživatelů, mimo jiné na využití dřevných kamen). Rozhodující jsou údaje uvedené v energetickém průkazu.
Nakonec přetrvává hlavně jeden pocit: prostor k životu, prostor k dýchání – a domov s charakterním duchem, který nenajdete každý den.
Právní upozornění
Jedná se o soukromý prodej bez makléřské provize. Všechny informace v této inzerci vycházejí z údajů a dokumentů vlastníků a jsou poskytnuty bez záruky. Vyhrazuje se možnost chyby a mezitímní prodej. Energetický průkaz je k dispozici při prohlídce.
Parametry nemovitosti
| Stáří | Nad 50 let |
|---|---|
| Číslo inzerátu | 976203 |
| Užitná plocha | 263 m² |
| Celkem podlaží | 3 |
| Stav | Po rekonstrukci |
|---|---|
| PENB | G - Mimořádně nehospodárná |
| Plocha pozemku | 989 m² |
| Cena za jednotku | 2 662 € / m2 |
Co tato nemovitost nabízí?
| Garáž | |
| Parkování | |
| Terasa |
| MHD 2 minuty pěšky |
V okolí nemovitosti najdete
Stále hledáte to pravé?
Nastavte si hlídacího psa. Nabídky vybrané na míru dostanete souhrnně 1× denně e-mailem. S Premium profilem máte k ruce hlídačů rovnou 5 a když se něco objeví, informují vás obratem.







































