
Prodej bytu 3+1 • 92 m² bez realitkyGabriel-Max-Straße 18 Berlin Friedrichshain Berlin 10245
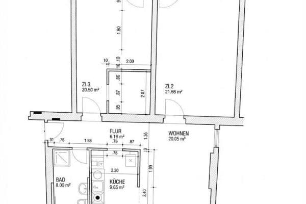
Tato nádherná dvoupodlažní (maisonette) byty na půdním podlaží je k prodeji bez provize a nabízí tři velmi prostorné pokoje rozložené na dvou podlažích (4. a 5. patro). V nižším patře, tj. ve 4. patře, se nachází obývací pokoj a kuchyň. Půdní podlaží bylo využito po přestavbě v letech 1995/1996. V 5. patře najdete dva pokoje o rozloze 12 m² a mimořádně prostornou koupelnu. Ve 4. patře je balkon s klidnou polohou směrem k vnitřnímu nádvoří. Součástí bytu je rovněž sklep. Domovní objekt nemá výtah.
Tento krásný dvoupodlažní byt na nejvyšším patře je k prodeji bez provize a disponuje třemi velmi prostornými pokoji rozloženými na dvou patrech (4. a 5. patro). Obývací pokoj a kuchyň se nachází v nižším patře, tedy ve 4. patře. Půdní patro bylo rekonstruováno v letech 1995/1996. V 5. patře jsou dva pokoje o rozloze 12 m² a mimořádně prostorná koupelna. Ve 4. patře se nachází balkon s klidnou polohou směrem k vnitřnímu nádvoří. Součástí bytu je také sklep. Objekt nemá výtah.
V srdci berlínského čtvrti Friedrichshain, a tedy na absolutním hotspotu Boxhagener Platz, se nachází tento nádherně klidný byt s vnitřním nádvořím. V bezprostřední blízkosti je řada restaurací, kaváren, hospod a obchodů. Nejbližší supermarket je vzdálen jen 250 metrů (Lidl, Edeka za 300 metrů, Penny za 350 metrů, Rewe za 700 metrů). Dokonce se zde nachází i Rewe-to-go pouhých 150 metrů od bytu. Stanice metra Samariterstr. je vzdálená přibližně 700 metrů a stanice S-Bahn a metra Warschauer Straße jen asi 600 metrů. Řeka Spree je také nedaleko a zve k příjemným procházkám. Tramvaj linky M13 odjíždí téměř přímo před domem a víkendový trh u "Boxi" je rovněž návštěvěhodný.
Byt je vybaven vestavěnou kuchyňskou linkou, která je funkční a již delší dobu v provozu. Celý byt má laminátovou podlahu, která byla položená před 10 lety. V koupelně se nachází vana a dostatek místa pro pračku i sušičku. Podlahy jsou dlažděné.
Byt je pronajatý – případné ukončení nájemního poměru z důvodu vlastních potřeb (tzv. Eigenbedarfkündigung) je možné, přičemž by tento proces trval 9 měsíců (nájemníci jsou Japonci).
V okolí nemovitosti najdete
Stále hledáte to pravé?
Nastavte si hlídacího psa. Nabídky vybrané na míru dostanete souhrnně 1× denně e-mailem. S Premium profilem máte k ruce hlídačů rovnou 5 a když se něco objeví, informují vás obratem.




















