
Prodej bytu 2+1 • 59 m² bez realitkyIm Kloster 14, , Bavorsko
Diese stilvolle 2-Zimmer-Eigentumswohnung befindet sich im 1. Obergeschoss eines denkmalgeschützten Wohngebäudes aus dem Jahr 1757.
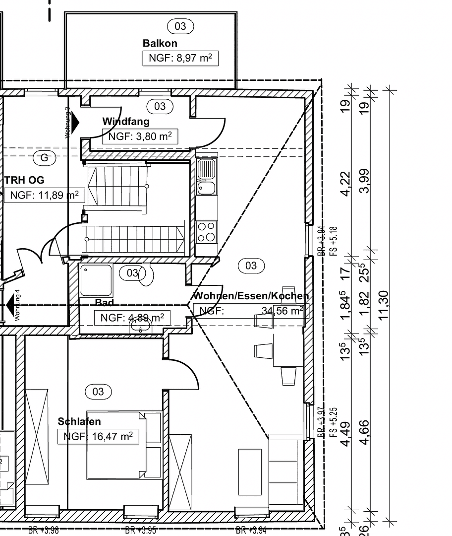
Stylový dvoupokojový koupěmní byt se nachází v prvním patře budovy chráněné jako památka, která pochází z roku 1757.
Das historische Gebäude wurde aufwendig restauriert und verbindet heute authentischen Altbaucharakter mit zeitgemäßer, energieeffizienter Technik.
Historická budova byla náročně restaurovaná a dnes spojuje autentický charakter staré sídliště s moderní, energeticky úspornou technologií.
Der Erstbezug nach Restaurierung bietet ein hochwertiges und gepflegtes Wohnumfeld mit besonderem Flair.
První užívání po restaurování nabízí vysoce kvalitní a pečlivě udržované bydlení s jedinečnou atmosférou.
Mit einer Wohnfläche von ca. 58,15 m² eignet sich die Wohnung ideal für Singles, Paare oder anspruchsvolle Kapitalanleger, die Wert auf Substanz, Geschichte und Qualität legen.
S obytnou plochou přibližně 58,15 m² je byt ideální pro jednotlivce, páry nebo náročné investory, kteří si cení kvality, historie a hodnoty.
Die Fertigstellung ist für 03/2026 geplant.
Dokončení je plánováno na březen 2026.
Die Gemeinde Aurachtal/Münchaurach ist eine ländliche idyllische Gemeinde in Mittelfranken, die sich durch ihre gute Verkehrsanbindung sowie der nahen A3 und der B8 und ihre Nähe zu Herzogenaurach auszeichnet.
Obec Aurachtal/Münchaurach je venkovská idylická obec ve Střední Franconii, která se vyznačuje dobrou dopravní dostupností, díky blízkosti dálnice A3 a silnice B8, a svou polohou nedaleko Herzogenaurachu.
Viele große internationale Unternehmen wie Schäffler, Adidas und Puma haben hier ihren Hauptsitz, wodurch ein gewisser Wohlstand in der Region besteht.
Mnoho velkých mezinárodních společností, jako například Schäffler, Adidas a Puma, má zde své sídlo, což přispívá k určitému bohatství regionu.
Der Öffentliche Nahverkehr zu den Städten Erlangen und Herzogenaurach ist gut ausgebaut.
Veřejná doprava do měst Erlangen a Herzogenaurach je dobře zajištěna.
In Münchaurach gibt es einen großen Supermarkt, Bäckereien, eine Apotheke, Sparkasse, Raiffeisenbank, Tankstelle und eine Metzgerei.
V Münchaurachu se nachází velký supermarket, pekárny, lékárna, Sparkasse, Raiffeisen banka, čerpací stanice i řeznictví.
Hier haben Sie die Ruhe eines kleinen Ortes und wenn man Stadt Feeling braucht, kann man mit seinem Radle nach Herzogenaurach fahren.
Zde zažijete klid maloměstského života a pokud budete potřebovat městskou atmosféru, můžete se na kole vydat do Herzogenaurachu.
Die Lage zeichnet sich durch ihre historische Bedeutung, Ruhe und ein einzigartiges Ambiente aus.
Poloha se vyznačuje historickým významem, klidem a jedinečnou atmosférou.
Das denkmalgeschützte Umfeld sorgt für eine besondere Wohnqualität und langfristige Wertstabilität.
Okolí chráněné památky zaručuje zvláštní kvalitu bydlení a dlouhodobou hodnotovou stabilitu.
Die Wohnung überzeugt durch eine außergewöhnliche Ausstattung, die historische Elemente bewahrt und modernen Wohnkomfort integriert:
Byt zaujme neobvyklým vybavením, které zachovává historické prvky a integruje moderní komfort bydlení:
• Denkmalgeschütztes Wohngebäude
• Budova chráněná památkou
• Originale Holzbalkendecke / Holzbohlendecke
• Originální strop s dřevěnými trámy / dřevěný deskový strop
• vierflüglige Sprossen Fenster mit traditionellen Fensterläden
• Čtyřkřídlová okna se čtyřramennými mřížkami a tradičními okenicemi
• Wunderschönes Treppenhaus
• Nádherné schodiště
• Fußbodenheizung in allen Wohnräumen
• Podlahové topení ve všech obytných místnostech
• Mineralisch innen gedämmte Außenwände
• Vnější stěny s vnitřní minerální izolací
• Moderne zentrale Wärmepumpe
• Moderní centrální tepelné čerpadlo
• Gefliestes Badezimmer
• Koupelna obložená dlažbou
• Balkon
• Balkon
• Ruhige, angenehme Wohnatmosphäre
• Klidná a příjemná obytná atmosféra
Parken & Nebenflächen
Parkování a přilehlé prostory
• Carport
• Přístřešek pro auto
• Abschließbarer Abstellraum
• Zamykatelný úložný prostor
• Vorbereitung für Elektromobilität
• Příprava pro elektromobilitu
Im gleichen Gebäude befinden sich weitere zum Verkauf stehende Wohnungen.
Ve stejné budově se nacházejí i další byty nabízené k prodeji.
Wichtig: Die Sondern AfA für Denkmalschutz kann nicht übertragen werden. Aber das KFW-Darlehn von 150.000€ könnte vom zukünftigen Besitzer übernommen werden.
Důležité: Speciální odpisy (AfA) pro ochranu památek nelze převést, avšak KFW úvěr ve výši 150.000 € by mohl být převzat budoucím majitelem.
Im Gebäude befindet sich ein wunderschönes ausbaubares Dachgeschoss was erworben werden kann. In diesem Zustand würde der neue Besitzer die Steuervorteile der AfA voll nutzen können. ca. 100qm Wohnfläche inkl. Stellplatz.
V budově se nachází nádherný podkrovní prostor k dokončení, který lze zakoupit. V tomto stavu by nový majitel mohl plně využít daňové výhody AfA. Přibližně 100 m² obytné plochy včetně parkovacího místa.
Impressum:
Impressum:
imtro GmbH & Co. KG
imtro GmbH & Co. KG
Obere Gasse 9
Obere Gasse 9
91056 Erlangen
91056 Erlangen
Vertreten durch:
Zastoupeno:
Geschäftsführer: Michael Heise
Ředitel: Michael Heise
Telefon: 0172 – 2961021
Telefon: 0172 – 2961021
E-Mail: info@imtro.de
E-mail: info@imtro.de
Registereintrag:
Zápis:
Eintragung im Handelsregister.
Zapsáno v obchodním rejstříku.
Registergericht: Amtsgericht Fürth
Okresní soud: Amtsgericht Fürth
Registernummer: HRA 9278
Registrační číslo: HRA 9278
Umsatzsteuer:
Daň z obratu:
Umsatzsteuer-Identifikationsnummer gemäß §27 a Umsatzsteuergesetz: DE265876280
Identifikační číslo DPH podle §27 a zákona o DPH: DE265876280
Aufsichtsbehörde:
Dozorový orgán:
IHK für München und Oberbayern
IHK pro Mnichov a Horní Bavorsko
Max-Joseph-Strasse 2
Max-Joseph-Strasse 2
80333 München
80333 Mnichov
V okolí nemovitosti najdete
Stále hledáte to pravé?
Nastavte si hlídacího psa. Nabídky vybrané na míru dostanete souhrnně 1× denně e-mailem. S Premium profilem máte k ruce hlídačů rovnou 5 a když se něco objeví, informují vás obratem.
















