
Prodej bytu 4+kk • 118 m² bez realitky, Bádensko-Württembersko
Vícebytový dům byl postaven v dřevěně-hybridní stavební technologii. Je třeba zvláště zdůraznit vysoký energetický standard budovy (EH40), spojený s volbou ekologických stavebních materiálů – což nejenže zajišťuje znatelně nižší náklady na energie a zdravé, teplé obytné klima, ale také šetří naše životní prostředí. Při koupi tohoto klimaticky přátelského bytu máte možnost využít státní podpory od KfW banky – podpora probíhá formou atraktivního, úrokově zvýhodněného úvěru ve výši 100 000 €.
Na svazích Lembergu se nachází idylická obec Affalterbach s přibližně 4 500 obyvateli. Je součástí okresu Ludwigsburg v Bádensku-Württembersku a přestože se nachází uprostřed malebné přírody, je mimořádně dopravně dostupná. Jak veřejnou dopravou, tak autem lze během chvilky dosáhnout okolních měst, jako jsou Winnenden, Ludwigsburg a Marbach am Neckar.
Blízkost k dálnici A81 a silnici B14 dále umožňuje rychlý dojezd do větších měst, například do Heilbronn nebo do hlavního města státu Stuttgart.
Affalterbach spojuje přednosti venkovské lokality a městského prostředí: nákupní možnosti včetně regionálních biofarem, bank, pošty, lékařských ordinací a rovněž základní škola a školky se nacházejí přímo v obci. Průmyslová zóna s některými mezinárodně působícími firmami nabízí atraktivní pracovní příležitosti.
Obec zároveň díky svým různým spolkům zajišťuje pestrou volnočasovou nabídku. Pro sportovní vyžití jsou k dispozici hřiště pro míčové sporty, atletická zařízení a dětská hřiště. Rovněž příroda kolem Affalterbachu je ideální pro rekreaci: Lemberg zve na procházky a cyklistiku lesem a vinicemi, a za pár minut se dostanete do idylického údolí Buchenbachtal. K zakončení večera pak můžete navštívit některou z místních restaurací.
Tento klimaticky přátelský vícebytový dům se nachází ve velmi centrální, zavedené a dopravně zklidněné lokalitě. Obchody pro každodenní potřeby, autobusové zastávky, školky, škola a rekreační oblast jsou dosažitelné pěšky.
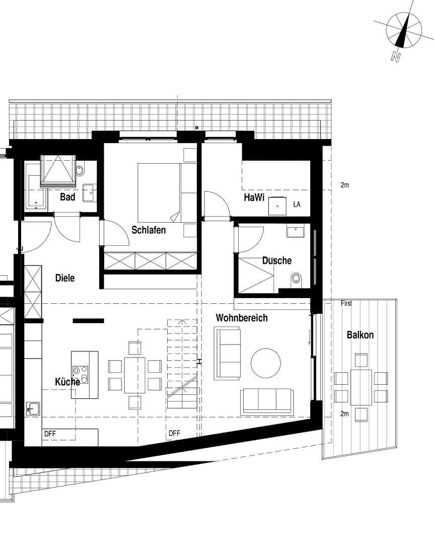
Moderní vícebytový dům zaujme svou architekturou, vysoce kvalitním vybavením a funkčností. Výtah vás dopraví z podzemní garáže přímo do vašeho bytu. Pro úložný prostor je v suterénu k dispozici prostorná soukromá sklepní místnost. Připojení pro pračky a sušičky naleznete jak přímo ve sklepě, tak i ve vašem bytě.
Mezi vybavení patří kvalitní dřevěné parketové podlahy v obytných místnostech a designové obklady v koupelnách. Vysoké stropy z masivního dřeva a bílé vnitřní dveře vytvářejí základ pro váš osobní prostor pro relaxaci. Velkoplošná okenní řešení z kombinace dřeva a hliníku s trojitým zasklením a elektrickými rolety či žaluziemi zajišťují prostory dostatečně osvícené přirozeným světlem a vytvářejí přívětivý, teplý pocit z bydlení.
Moderní sanitární vybavení s ručními ohřívači ručníků a bezzměrnými sprchami doplňuje denním světlem naplněné koupelny každého bytu. Díky podlahovému vytápění jsou chladné nohy věcí minulosti.
Slunce si můžete vychutnat na svém soukromém balkoně, který je obklopen atraktivně upravenými venkovními prostory.
Prohlídky jsou možné kdykoliv!
V okolí nemovitosti najdete
Stále hledáte to pravé?
Nastavte si hlídacího psa. Nabídky vybrané na míru dostanete souhrnně 1× denně e-mailem. S Premium profilem máte k ruce hlídačů rovnou 5 a když se něco objeví, informují vás obratem.













