
Prodej domu 4+1 • 168 m² bez realitkyBerlin Rahnsdorf Berlin 12589
Láskyplně zrenovovaná, jedinečná vila v historickém stylu v blízkosti Müggelsee v Berlíně, okres Rahnsdorf.
Výhodná poloha ve druhé řadě od silnice, u Rahnsdorfer Mühlenfließ s úžasným výhledem do zeleně. Za vlastním zahradou se rozkládá vodní a ornitologicky chráněná oblast Mühlenfließ.
Vila z roku 1905, s rozšířeními z 20. let 20. století, byla od roku 2018 kompletně zrestaurována a s láskou věnovanou detailům kvalitně upravena.
Díky odborným znalostem byla instalována ekologicky ideální a prostorově klimaticky vynikající kombinace stěnového topení a jílové omítky spojená s dřevěnými povrchy, která zabezpečuje perfektní klima v místnosti při jakémkoli počasí bez vysoké energetické náročnosti – a to nejen vizuálně.
V přízemí se nachází prostorné místnosti určené k bydlení, vaření a práci, které jsou propojené.
Přízemí je dále doplněno malým WC, které lze rozšířit na hostinskou koupelnu.
Obývací pokoj se otevírá velkým terasovým oknem směrem do zahrady a láká pohledem do zeleně. Na schodišti vedoucím k terase lze při skleničce vína vychutnávat západy slunce, v noci se dá z pohovky nebo lehátka pozorovat hvězdy. Krbový sporák vytváří útulnou atmosféru ve studených dnech.
Rozsáhlá zahrada nabízí prostor pro hru a relaxaci, nedaleká ornitologická rezervace zase přináší zážitky z přírody. Mnoho zvířecích návštěvníků je často k vidění a vybízí k dlouhému pobytu venku.
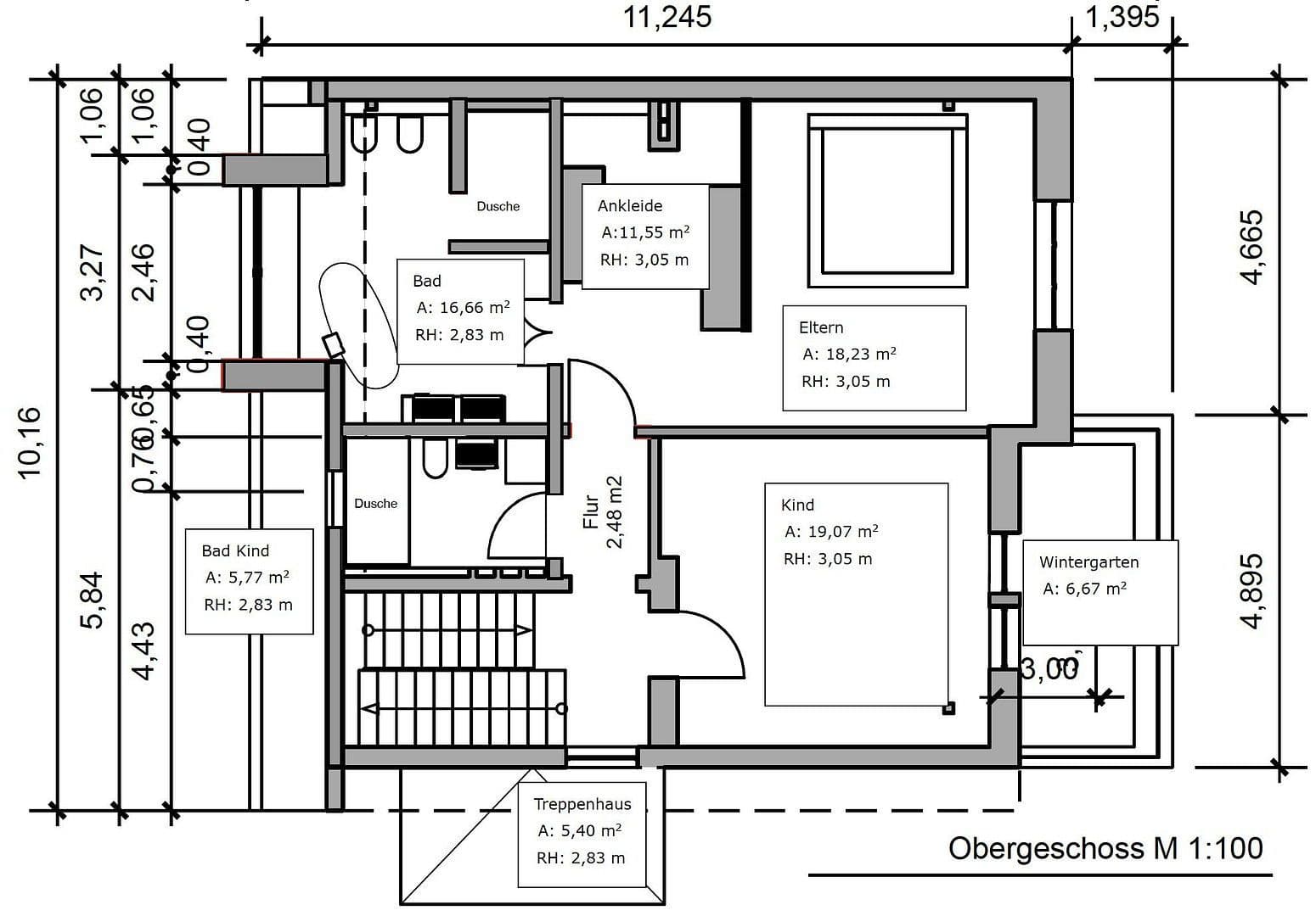
V patře se nacházejí dvě ložnice a dvě koupelny, ideálně vybavené jako rodičovské a dětské pokoje. Hlavní koupelna s velkým oknem do zahrady a s vyhrazeným odpočinkovým prostorem nabízí možnost rovněž relaxace, čtení, pocitu pohody...
Na zahradě lze využít zahradní domek jako kůlnu a dílnu, případně jej podle vlastního uvážení přestavět.
Několik ovocných a ozdobných stromů doplňuje zeleň a na jaře vytváří květinou nabitou show.
Jedním z vrcholů horkých dnů je umístěný bazén, který se hezky začleňuje mezi stromy.
Plavání v jezeře nebo jízda na SUP lze podniknout pěšky z Mohle u Müggelsee.
V blízkosti centra Rahnsdorfu najdete lékárnu, poštu se psací potřebou, pěkný obchod s vínem, pekárnu a kavárnu všechny v docházkové vzdálenosti, stejně jako další možnosti nákupu (supermarket, obchod s nápoji, zahradní centrum). Vrcholným zážitkem je rovněž restaurace/kavárna s nejkrásnějším západem slunce v Berlíně u Müggelsee, která je cca 10 minut chůze.
Základní škola je vzdálena přibližně 800 m, v okolí jsou různé mateřské školy.
Autobus a tramvaj jsou dostupné pěšky (cca 5 minut); S-Bahn cca 15 minut pěšky nebo 1 zastávka autobusu.
Vyproštěná dřevěná podlaha a zrestaurované původní dřevěné dveře.
Nová okna: dřevo-hliník.
Původní dřevěná boxová okna.
Zrestaurované dřevěné schodiště.
Stěnové topení a jílová omítka.
Energeticky zatepleno: vnější stěna, střecha, podlaha.
Viditelná střešní konstrukce/dřevěné trámy v patře.
Výška místností v přízemí cca 3,40 m.
Plynový Ceran varný panel s varnou ostrovem a barem jako středobodem oslav.
K dispozici je také „balkónová“ fotovoltaická elektrárna.
Krbový sporák.
V okolí nemovitosti najdete
Stále hledáte to pravé?
Nastavte si hlídacího psa. Nabídky vybrané na míru dostanete souhrnně 1× denně e-mailem. S Premium profilem máte k ruce hlídačů rovnou 5 a když se něco objeví, informují vás obratem.






















