
Pronájem bytu 2+kk • 36 m² bez realitkyPod Strojírnami, Praha - Vysočany
Pod Strojírnami, Praha - VysočanyČástečně vybaveno • Sklep 4 m²Vyžadováno ověření bezdlužnostiMáte o nabídku zájem?
Ušetřete 19 000 Kč na provizi a komunikujte se všemi majiteli.
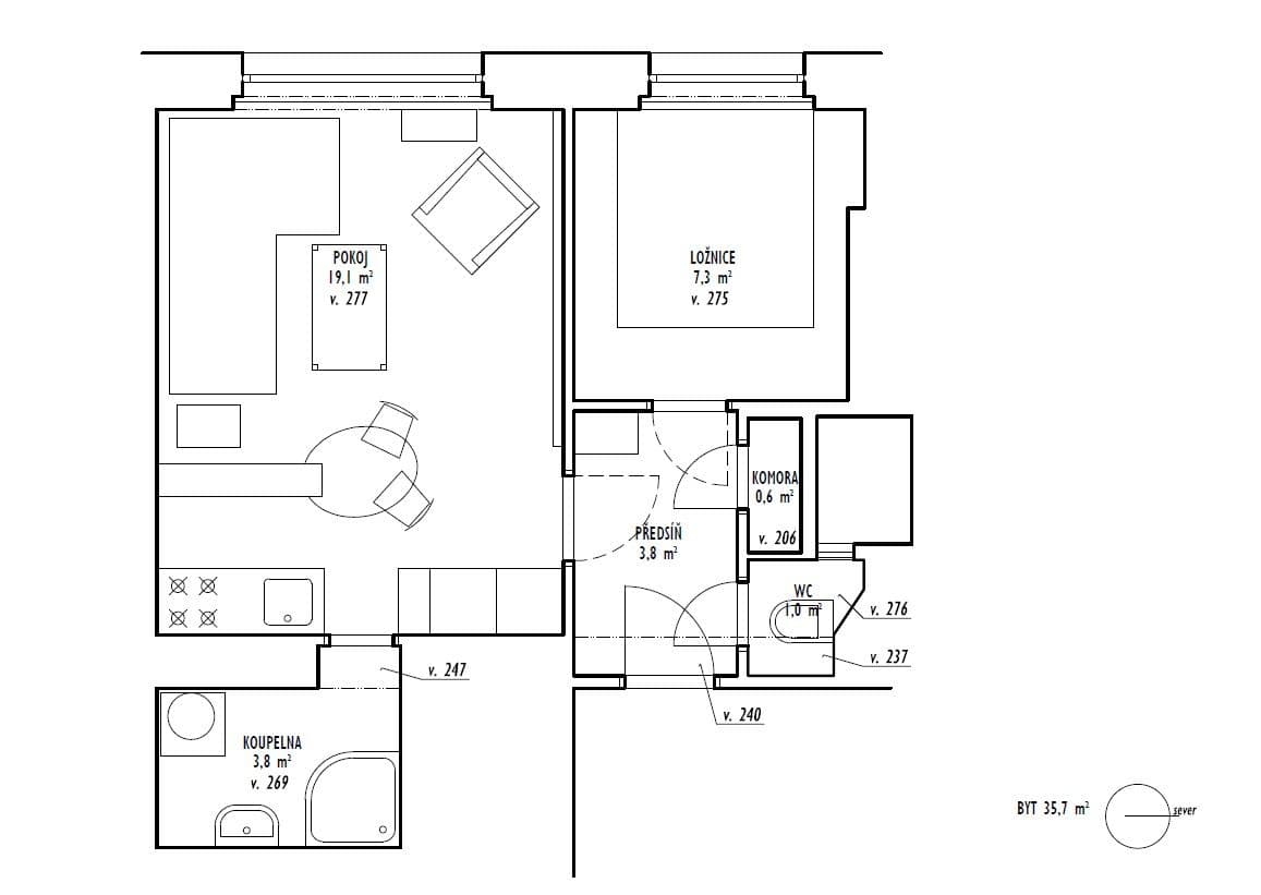
Pronájem bytu 2+kk, 36 m² – Praha 9, Vysočany
Nabízím k pronájmu velmi světlý a útulný byt 2+kk o velikosti 36 m², který se nachází ve 2. patře činžovního domu v klidné části pražských Vysočan. Okna bytu jsou orientována do tichého vnitrobloku se zelení, západní orientace zajišťuje příjemné světlo po celý den.
Dispozice bytu nabízí vstupní předsíň s praktickou komorou, úložnými prostory, vestavěnou skříní a samostatným WC. Z předsíně je vstup do ložnice a dále do obývacího pokoje s kuchyňským koutem a vstupem do prostorné koupelny se sprchovým koutem, umyvadlem a pračkou. Kuchyňský kout je vybaven kuchyňskou linkou s vestavěnými spotřebiči a velkou lednicí.
Byt je částečně vybaven (rozkládací pohovka, postel 200×180 cm, velká lednice, pračka.…) Na podlahách je kombinace dlažby, parket a plovoucí podlahy, v bytě jsou plastová okna, před rokem nově přetěsněná. Vytápění je řešeno lokálním plynovým topidlem, ohřev teplé vody zajišťuje bojler (v ložnici je možné využít elektrický přímotop).
K bytu náleží sklepní kóje o velikosti 4 m². K dispozici společný malý balkon.
Výborná dopravní dostupnost: tramvajová zastávka 1 minutu pěšky, metro Vysočanská nebo Kolbenova cca 7 minut, centrum Prahy dostupné do 10 minut metrem. V okolí se nachází kompletní občanská vybavenost – školy, školky, gymnázium, OC Fénix, kulturní centrum Pragovka a další služby.
Byt má nízké měsíční poplatky a je energeticky úsporný. Byt je vhodný pro maximálně dvě osoby. Volný od 1.3.2026, případně 1.4.2026 Preferuji dlouhodobý pronájem, nekuřáky.
V okolí nemovitosti najdete
Máte o nabídku zájem?
Ušetřete 19 000 Kč na provizi a komunikujte se všemi majiteli.
Stále hledáte to pravé?
Nastavte si hlídacího psa. Nabídky vybrané na míru dostanete souhrnně 1× denně e-mailem. S Premium profilem máte k ruce hlídačů rovnou 5 a když se něco objeví, informují vás obratem.























