
Pronájem bytu 3+kk • 83 m² bez realitkyIrisweg Köln-Pesch Pesch Nordrhein-Westfalen 50767
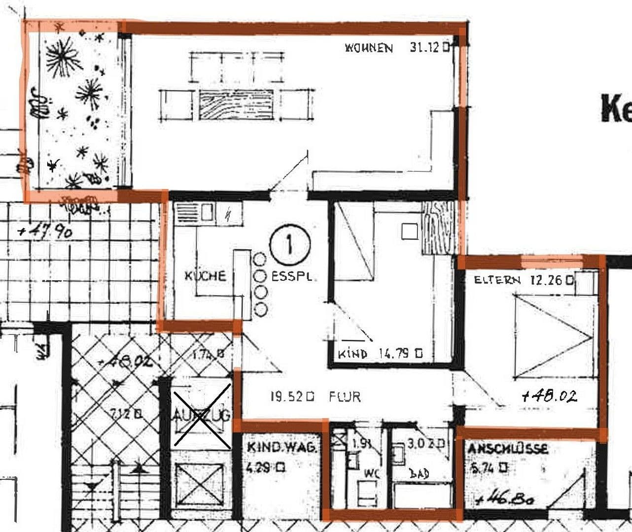
Irisweg Köln-Pesch Pesch Nordrhein-Westfalen 50767MHD 2 minuty pěšky • Výtah • ParkováníByt se ideálně hodí pro dvě až tři dospělé osoby, které upřednostňují jasné rozdělení místností a prostorné obytné plochy. Všechny tři místnosti jsou samostatně přístupné, mají dobré dispozice a lze je využít různými způsoby – například jako obývací, ložnici, pracovnu či pokoj pro hosty. Prostorná kuchyň spojená s obývacím pokojem tvoří středobod bytu a nabízí dostatek místa pro vaření i setrvání.
Byt je předáván v udržovaném stavu. Kuchyň a chodba jsou při nastěhování nově natřeny. Veškeré ostatní místnosti jsou předávány neremontované; rekonstrukční práce, zejména nový nátěr, provede při nastěhování nájemce, což umožňuje individuální úpravu místností.
Začátkem února bude instalována nová vestavěná kuchyň, která bude plně k dispozici budoucím nájemcům. Navíc je aktuálně využívaný sklepní prostor do konce března přestavěn na samostatné hostinské WC. Díky tomu bude byt dále disponovat dvěma toaletami, což výrazně zvyšuje komfort bydlení.
Vybavení
■ přibližně 83 m² obytné plochy
■ 3 samostatně přístupné místnosti
■ Nová vestavěná kuchyň (instalace v únoru)
■ Koupelna s vanou (umístěná uvnitř bytu)
■ Další hostinské WC s připojením pro pračku
■ Balkon s markýzou
■ Výtah
■ Samostatný sklepní prostor
■ K dispozici je místo pro kolo
Nájemné
■ Celkové teplé nájemné: 1 750 €
(včetně služeb a předplaceného topení a příspěvku na kuchyň)
Elektřina a internet budou nájemcem samostatně zařízeny.
Kauce: 3 čisté zimní nájmy.
Podmínkou je zajištěný příjem a kompletní přihláška.
Poznámka:
Dotazy se zajištěním platby veřejnými institucemi nemohou být zohledněny.
Klidná obytná ulice v srdci Kolína-Pesch.
Nákupní možnosti, lékaři, MHD i obchody denní potřeby jsou dosažitelné pěšky.
Rychlé spojení na dálnici A57 a do centra Kolína.
Nejbližší autobusové zastávky jsou Köln Gewerbegebiet Pesch a Köln Gewerbegebiet Pesch-Nord, obě dosažitelné za několik minut chůze.
Pro železniční či příměstskou vlakovou dopravu se nabízí zastávky Volkhoven-Weiler nebo Köln-Longerich.
Železniční stanice jsou pěšky vzdáleny přibližně 30–35 minut, na kole či autobusem je lze dosáhnout výrazně rychleji.
Cesta do Ehrenfeldu:
MHD cca 25–35 minut, v závislosti na spoji a době přestupů.
Pescher See je na kole dosažitelný přibližně za 8 minut a je vhodný pro procházky i sportovní aktivity.
Pronájem je upřednostňován klidným, spolehlivým nájemcům, kteří usilují o dlouhodobý nájemní vztah.
Požaduje se ohleduplnost k sousedům a stávající struktuře domu.
Jedná se o nekuřácký byt; kouření je povoleno výhradně na balkoně.
Malý pes může být po předchozí domluvě povolen za měsíční příplatek 50 €. Další domácí mazlíčci dle individuální dohody.
Prosíme, zašlete nám nejprve krátké písemné představení, ze kterého bude zřejmé:
■ Kdo se chce nastěhovat (počet osob)?
■ Současná činnost (zaměstnání/vzdělání/studium)?
■ Důvod hledání bytu v Kolíně-Pesch?
Povinné dokumenty, které je nutné přinést při prohlídce:
■ Sebeohodnocení (úplně vyplněné, podepsané)
■ SCHUFA-výpis (aktuální, ne starší než 3 měsíce)
■ Poslední 3 výplatní pásky
■ Pracovní smlouva (na dobu neurčitou nebo s uvedenou délkou)
■ Kopie občanského průkazu (přední i zadní strana)
■ Potvrzení o úhradě nájmu od současného pronajímatele
(nebo doporučující dopis – volitelné, ale výhodné)
■ Doklad o pojistce odpovědnosti
■ Kontaktní údaje všech osob, které se nastěhují
Volitelně (pokud je relevantní):
■ Doklad o vedlejších příjmech
■ Důchodové rozhodnutí (u důchodců)
V okolí nemovitosti najdete
Stále hledáte to pravé?
Nastavte si hlídacího psa. Nabídky vybrané na míru dostanete souhrnně 1× denně e-mailem. S Premium profilem máte k ruce hlídačů rovnou 5 a když se něco objeví, informují vás obratem.















