
Prodej bytu 3+1 • 76 m² bez realitkyFichtestr. 13 Nürnberg Wöhrd Bayern 90489
Fichtestr. 13 Nürnberg Wöhrd Bayern 90489MHD 2 minuty pěšky • Výtah • GarážZde se prodává byt, který je vhodný jak pro vlastní užívání, tak i jako investiční nemovitost.
Byt nabízí veškeré moderní vybavení.
- Byt se nachází ve 4. patře z 5, takže si v létě můžete užívat krásné západy slunce.
- Vestavěná kuchyň s vybavením, chladnička byla před přibližně rokem nově zakoupena.
- Výtah
- Pouze dva byty na stejném patře.
- Jihozápadní orientace
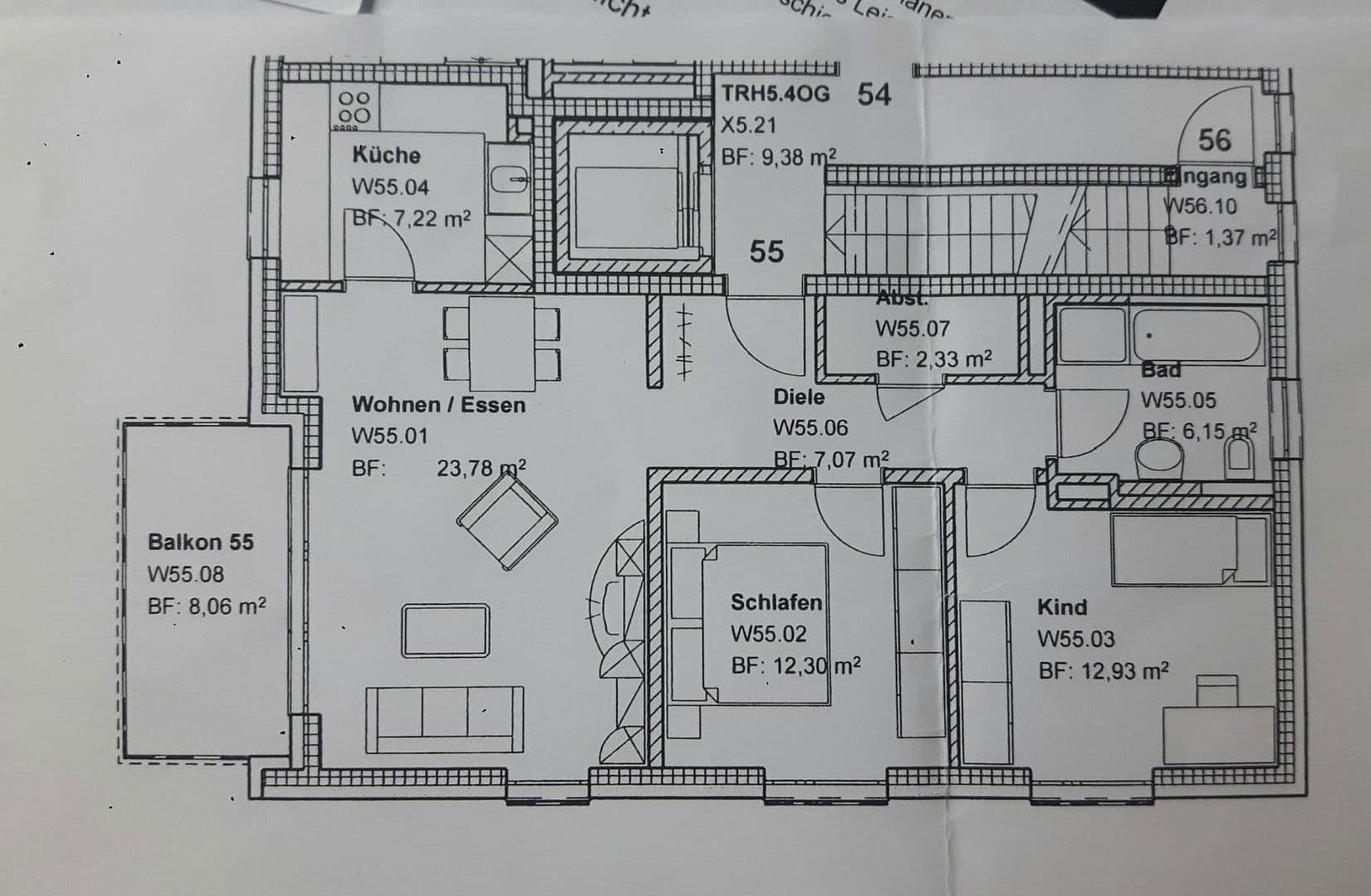
- Celková plocha bytu činí 75,81 m²
- Podlahové vytápění v každé místnosti
- Elektrické rolety v každé místnosti
- Prostorná terasa s výhledem na západ
- Terasa je zcela přístřešková a chráněná před větrem
- Markýza s dálkovým ovládáním
- Prostorný sklepní prostor s uzamykatelnou částí
- Boční závěsný zámek
- Ochranné sítě proti hmyzu na všech oknech
- Prádelna v podzemí
- Úložný prostor pro kola
- Dvě parkovací místa v podzemní garáži (součástí kupní ceny bytu)
Jedna z nejoblíbenějších obytných čtvrtí v Norimberku – Gärten bei Wöhrd.
V blízkosti centra města a jezera Wöhrd.
Blízko se nacházejí školy a školky, stejně tak lékaři a možnosti nákupů.
Doprava do centra je zajištěna tramvají, metrem a autobusem.
Nejbližší stanice metra je vzdálena cca 700–750 m, druhá cca 1 km.
Nejbližší zastávka autobusu a tramvaje je cca 200–250 m.
Jezero Wöhrd cca 300 m.
Prodej bytu je plánován po 01.04.2026.
V případě zájmu prosím zašlete úplné informace o sobě jako kupujícím.
Nenabízíme spolupráci s realitními kancelářemi.
Byt byl původně plánován jako 3-pokojový, avšak na přání prvního majitele byly provedeny úpravy, aby poskytl v každém ohledu více prostoru. Jak je znázorněno v půdorysu.
Samozřejmě může být dle chuti a přání dále upraven.
V okolí nemovitosti najdete
Stále hledáte to pravé?
Nastavte si hlídacího psa. Nabídky vybrané na míru dostanete souhrnně 1× denně e-mailem. S Premium profilem máte k ruce hlídačů rovnou 5 a když se něco objeví, informují vás obratem.

















