
Prodej bytu 2+kk • 100 m² bez realitkyBlissestraße 55 Berlin Wilmersdorf Berlin 10713
100 m² byt od soukromníka v žádané lokalitě Berlín-Wilmersdorf.
Byt se nachází v 2. patře udržovaného bytového domu z 40. let 20. století v ulici Blissestraße a okouzlí Vás prostorným, světlým a flexibilním uspořádáním místností.
V současné době má byt 2,5 pokoje. Mezi dvěma pokoji je nyní vytvořen průlom, který vytvořil velkorysý obývací a jídelní prostor.
Malou úpravou lze tento prostor opět oddělit, takže byt bude mít zase 3 oddělené pokoje.
Prostorné byty s přibližně 100 m² obytné plochy jsou v této lokalitě poměrně vzácné a nabízejí mnoho prostoru pro individuální koncept bydlení.
Byt je ideální pro páry, malé rodiny nebo pro ty, kteří chtějí kombinovat prostorné bydlení s oddělenou pracovnou.
Prodej probíhá přímo od vlastníka, a proto je bez provize.
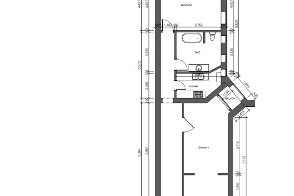
Rozvržení místností
Byt se vyznačuje velmi světlými místnostmi a příjemnou prostorností.
Ze široké chodby jsou všechny místnosti snadno přístupné.
Obývací prostor se skládá z:
• otevřené jídelny,
• prostorného obývacího pokoje,
• přilehlé zimní zahrady, která dovnitř bytu vnáší spoustu světla.
Ložnice je umístěna v klidné části a nabízí dostatek prostoru pro velkou manželskou postel, dodatečné úložné prostory a psací stůl.
Byt dále disponuje vestavěnou kuchyní, která již je vybavena.
⸻
Koupelna
Velká hlavní koupelna je velmi prostorná a obsahuje:
• samostatnou sprchu,
• samostatnou vanu,
• dvě umyvadla,
• připojení pro pračku.
Kromě toho zde najdete také prostorné hostinské WC.
Byt se nachází na adrese Blissestraße 55 v Berlín-Wilmersdorf, jedné z nejoblíbenějších rezidenčních lokalit v západním Berlíně.
Wilmersdorf se vyznačuje klidnými obytnými ulicemi, zavedeným sousedstvím a velmi dobrou infrastrukturou.
V bezprostředním okolí se nachází četné:
• kavárny a restaurace,
• supermarkety a obchodní příležitosti,
• školy a jesle,
• parky a zelené plochy.
Také spojení s veřejnou dopravou je výborné.
• cca 100 m² obytné plochy, velmi udržovaný byt,
• 2,5 pokoje, případně opět 3 pokoje,
• 2. patro,
• není zde výtah,
• zimní zahrada,
• vestavěná kuchyň,
• velká koupelna s vanou, sprchou a dvěma umyvadly,
• samostatné hostinské WC,
• laminátová podlaha (pokládka v roce 2010),
• okna renovována v roce 2010,
• velmi světlé místnosti,
• velká chodba,
• vlastní sklepní místnost,
• dodatečný podkrovní úložný prostor,
• udržovaný bytový dům.
Prodej probíhá přímo od vlastníka, a proto je bez provize.
Zprostředkovatelské žádosti nejsou vítány.
Prohlídky jsou možné po předchozí domluvě.
Vzhledem k vysoké poptávce prosíme zájemce o krátké představení při dotazech.
Veškeré relevantní dokumenty jsou k dispozici a mohou být po prohlídce nahlédnuty, pokud o to bude zájem.
V okolí nemovitosti najdete
Stále hledáte to pravé?
Nastavte si hlídacího psa. Nabídky vybrané na míru dostanete souhrnně 1× denně e-mailem. S Premium profilem máte k ruce hlídačů rovnou 5 a když se něco objeví, informují vás obratem.
























