
Prodej domu 4+1 • 133 m² bez realitkySilker Weiche 7, , Šlesvicko-Holštýnsko
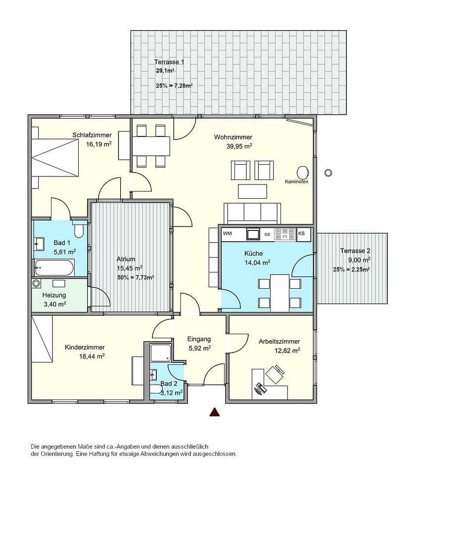
Silker Weiche 7, , Šlesvicko-HolštýnskoMHD 8 minut pěšky • Parkování • GarážSvětlem prosvětlený atriový bungalov z roku 1981 s jihozápadní orientací, umístěný na konci klidné slepé ulice přímo u přírodní rezervace, vám nabízí krásný nový domov o přibližně 133,3 m² obytné plochy. Přesto je stanice S-Bahn Wohltorf dostupná pěšky a školy i školky se nacházejí v blízkosti.
Bungalov je kompletně zmodernizován a disponuje dřevěnými okny s trojsklem, nově izolovanou střechou, novým plynovým topením se solární termií (teplá voda získávaná sluncem), novou elektroinstalací, moderní kuchyní se 6-plamenným sporákem, novou koupelnou a parketovou podlahou ve všech místnostech.
Dvě místnosti a sprchovací koupelna se nacházejí v přední části domu. Srdcem domu je otevřený obývací pokoj s krbovými kamny, okny od podlahy ke stropu a jižní terasou. Dalším vrcholem je útulná obytná kuchyně s přímým přístupem na západní terasu. Ložnice orientovaná k zahradě se dvěma okny, terasovými dveřmi vedoucími do atria a en suite koupelnou dokonale doplňují stylovou architekturu domu.
Na zeleň zasazeném pozemku o rozloze 850 m² s hezkým stromovým porostem vás navíc zve sauna s elektrickým kamenem k relaxaci.
K nemovitosti rovněž patří garáž s přilehlými místnostmi a stání (carport) a další parkovací místo, například pro obytný vůz.
Máte-li zájem, neváhejte nás kontaktovat pro sjednání prohlídky.
Obytná plocha: 133,3 m² (včetně podílových 17,3 m² terasové plochy
Místnosti: 4
Koupelny: 2
Terasy: 2
Garáž: 1
Carport: 1
Extra parkovací místo: 1
Zahradní sauna
Krbová kamna
Sklad s dílnou
Rok výstavby: 1981
Koncová spotřeba energie: 100,9 kWh/(m² ročně)
Energetická třída: D
Energetický štítek platný do: 28.04.2035
Plynové topení se solární termií – 2022
Fasádový nátěr – 2022
Izolace a hydroizolace střechy – 2018
Koupelna – 2018
Sauna – 2015 (saunový kamen z roku 2025)
Krbová kamna – 2014
Okna, dřevěná s trojsklem – 2012
Parketová podlaha – 2012
Elektroinstalace – 2012
Kuchyně – 2012
Dům se nachází přímo u přírodní rezervace Billetal nedaleko Sachsenwaldu.
Reinbek, oblíbené bydliště v okrese Stormarn, nabízí vynikající kvalitu života díky blízkosti přírody a dobrému spojením s Hamburkem. Infrastruktura je dobře rozvinutá s řadou obchodních možností, lékaři a školami. Doprava je zajištěna veřejnou dopravou a blízkostí dálnic, což je velkou výhodou pro dojíždějící. Řada zelených ploch a parků láká k odpočinku.
Krbová kamna
6-plamenný sporák
Zahradní sauna
2 koupelny se světlými prostory
Parketová podlaha ve všech místnostech
Velké atrium
2 terasy
Dřevěná okna s trojsklem






































