
Prodej domu 5+1 • 200 m² bez realitky, Braniborsko
, BraniborskoMHD 1 minuta pěšky • Parkování • GarážExkluzivní architektonický dům s vysokým standardem.
Tento okouzlující rodinný dům v žádané lokalitě Neuenhagen u Berlína nabízí vám i vaší rodině ideální domov s dostatkem prostoru a komfortu. Objekt se rozkládá na třech podlažích a přesvědčuje praktickým rozmístěním místností a přátelskou, vstřícnou atmosférou.
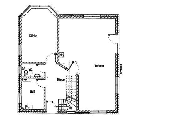
Přízemí
- Vstupní prostor: Prostorný a světlý vstupní prostor, který zanechává první pozitivní dojem.
- Chodba: Chodba vede do všech důležitých místností a disponuje malou komůrkou pro dodatečné úložiště.
- Kuchyně: Moderní, dobře vybavená kuchyně nabízí dostatek místa pro setkání při vaření a jídle.
- Obývací pokoj: Velký obývací pokoj je vybaven vlastním televizorem a audio zónou, ideální pro útulné večery s rodinou nebo přáteli.
- Koupelna: Praktická koupelna na tomto patře je vybavena sprchou.
Patro
- Ložnice: Prostorná ložnice s přístupem na vlastní balkon, který zve k relaxaci venku.
- Šatna: Stylový pokoj se zónou pro převlékání a přístupem k dalšímu balkon, ideální pro milovníky módy.
- Koupelna: Koupelna v patře je vybavena sprchovým koutem – ideální pro relaxační chvíle.
- Další pokoj: Další flexibilní místnost, kterou lze využít jako šatnu nebo dětský pokoj.
Podkroví
- Kancelář: Klidná kancelář s výhledem na předzahrádku, která se perfektně hodí pro práce z domova a nabízí vám soukromí.
- Pokoj: Další místnost, kterou lze využít různými způsoby, ať už jako pokoj pro hosty, nebo jako hobby místnost.
- WC: Praktické malé WC zajišťující dodatečný komfort a funkčnost v podkroví.
Atraktivní architektonický dům s kvalitním vybavením se nachází v západní části obce Neuenhagen, na dlážděné ulici v blízkosti staré tratě Trainierbahn. K metru U-Bahn Hönow je to přibližně 2,8 km (asi 10 minut na kole) a k S-Bahn stanici Hoppegarten (přibližně 1,7 km) se dostanete pěšky za cca 20 minut.
Dvě mateřské školy a základní škola s gymnáziem se nacházejí v docházkové vzdálenosti (900 metrů).
Obec Neuenhagen leží v bezprostřední blízkosti východního okraje Berlína. Berlínský kruhový dálnice A10 a spolková silnice 1/5 jsou dostupné již za několik kilometrů. Nová továrna Tesla v Grünheide-Freienbrink je dosažitelná za pouhých 20 minut autem. Neuenhagen je díky S-Bahn přímo spojen s hlavním městem, přičemž centrum Berlína je dostupné S-Bahn nebo autem přibližně za 40 minut. V obci i v přilehlých obcích působí autobusové linky. Neuenhagen má přibližně 19 000 obyvatel, jejichž počet stále roste, a díky rozptýlené zástavbě se spoustou zeleně je oblíbený jako zahradní město.
Chráněná krajinná oblast „Neuenhagener Trainierbahn“ se nachází pouhých 5 minut chůze od domu a vybízí k běhání či procházkám v přírodě, což je obzvláště oblíbené i mezi majiteli psů.
Mateřské školy, několik základních škol, odborná střední škola a gymnázium se nacházejí v obci a jsou dosažitelné pěšky, na kole nebo autobusem. Různá obchodní, službová a zdravotnická zařízení ještě více obohacují nabídku tohoto preferovaného místa k bydlení.
V zadní části pozemku se nachází praktická kůlna, která nabízí úložný prostor pro zahradní potřeby nebo nářadí.
Topení a energetická účinnost: Dům je vytápěn moderním tepelným čerpadlem, které zajišťuje energeticky úsporné a nákladově efektivní řešení topení a příjemné vnitřní klima – navíc je zde velký krb pro jídelní/obývací prostor.
V zadní části pozemku se nachází praktická kůlna, která poskytuje úložný prostor pro zahradní vybavení nebo nářadí.
Dostupnost:
– Dům může být předán přibližně ve 2. čtvrtletí roku 2026.
V okolí nemovitosti najdete
Stále hledáte to pravé?
Nastavte si hlídacího psa. Nabídky vybrané na míru dostanete souhrnně 1× denně e-mailem. S Premium profilem máte k ruce hlídačů rovnou 5 a když se něco objeví, informují vás obratem.