

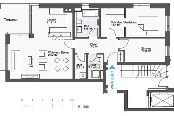
Pronájem bytu 2+1 • 55 m² bez realitkyHamburg Langenhorn Hamburg 22419
Hamburg Langenhorn Hamburg 22419MHD 7 minut pěšky • VýtahTento moderní, plně zařízený 2-pokojový byt se nachází v bezprostřední blízkosti stanice metra Ochsenzoll (1 minuta chůze).
Byt o rozloze cca 55 m² nabízí komfortní domov s vysoce kvalitním vybavením, ideální pro pracující profesionály, páry nebo expaty, kteří hledají „ready-to-move-in“ bydlení v Hamburku.
Otevřený obývací a jídelní kout je příjemně zařízen s podlahovými okny až ke stropu a přístupem na prostorný balkon.
Vestavěná kuchyň je plně vybavená – včetně myčky nádobí, lednice, sporáku, trouby, mikrovlnky, nádobí a kuchyňského náčiní.
Ložnice nabízí útulnou manželskou postel a velkou skříň s dostatkem úložného prostoru.
Moderní koupelna disponuje sprchou bez prahu a vysoce kvalitní sanitární technikou.
Zvláštním komfortním prvkem je podlahové vytápění ve všech místnostech, které zajišťuje příjemné klima bydlení.
V bytě se nachází také pračka.
Byt je pronajímán plně zařízený a kompletně vybavený – stačí se nastěhovat a cítit se jako doma.
Byt se nachází ve velmi žádané lokalitě v Hamburku-Langenhorn, jen minutu chůze od stanice metra Ochsenzoll (U1). Odtud se dostanete do centra Hamburku za přibližně 25 minut a na letiště Hamburg (HAM) za asi 10 minut – ideální pro každodenní dojíždění i cestování.
Bezprostřední okolí nabízí vynikající občanskou vybavenost:
Několik supermarketů (Edeka, Aldi, Rewe), pekáren, lékáren a ordinací je dosažitelných pěšky. Také kavárny, restaurace a fitness centrum se nacházejí v bezprostřední blízkosti.
Navzdory centrální dopravní dostupnosti je byt situován v klidné a zelené obytné čtvrti s vysokou kvalitou života.
V blízkosti se nachází trh Langenhorn, který nabízí další možnosti nákupu a víkendové trhy.
Pro odpočinek v přírodě jsou k dispozici Langenhorner Gärten, přírodní rezervace Raakmoor a různé pěší a běžecké stezky v okolí.
Automobilem je dálnice A7 (výsypka Schnelsen-Nord) dosažitelná během několika minut, což umožňuje rychlý a pohodlný přístup i k destinacím mimo Hamburk.
Celkově lokalita přesvědčuje dokonalou kombinací klidného bydlení, městské blízkosti a vynikající dopravní dostupnosti.
V okolí nemovitosti najdete
Stále hledáte to pravé?
Nastavte si hlídacího psa. Nabídky vybrané na míru dostanete souhrnně 1× denně e-mailem. S Premium profilem máte k ruce hlídačů rovnou 5 a když se něco objeví, informují vás obratem.




