
Prodej bytu 2+kk • 58 m² bez realitkyMünchen Forstenried Forstenried Bayern 81476
Diese stilvolle 2‑Zimmer-Wohnung befindet sich im obersten Geschoss eines 2014 erbauten, äußerst gepflegten Mehrfamilienhauses in einer ruhigen und beliebten Wohnlage von München‑Forstenried.
Tento elegantní 2‑pokojový byt se nachází v nejvyšším patře pečlivě udržovaného panelového domu postaveného v roce 2014, který se nachází v klidné a oblíbené rezidenční oblasti Mnichova-Forstenried.
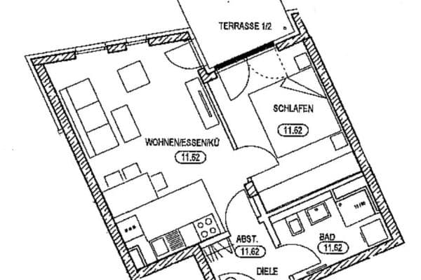
Auf 58 m² Wohnfläche überzeugt sie mit einem clever geplanten Grundriss und einem großzügigen, offenen Wohngefühl – ideal für Singles, Paare oder Kapitalanleger.
S obytnou plochou 58 m² vás okouzlí promyšleným dispozicím a prostorným, otevřeným pocitem bydlení – ideální pro jednotlivce, páry nebo investory.
Durch Raumhöhen von über 3,5 Metern entsteht ein außergewöhnlich luftiges und repräsentatives Ambiente.
Díky stropním výškám přes 3,5 metru vzniká neobvykle vzdušná a reprezentativní atmosféra.
Der helle Wohn- und Essbereich begeistert mit bodentiefen Fenstern, die viel Tageslicht hereinlassen und den Zugang zum sonnigen Balkon eröffnen – perfekt, um den Feierabend entspannt im Freien zu genießen.
Světlý obývací a jídelní prostor ohromuje podlahovými okny, která propouští spoustu denního světla a nabízejí vstup na slunný balkon – ideální pro pohodový relax po práci venku.
Die moderne, offene Küche fügt sich harmonisch in den Wohnbereich ein und bietet beste Voraussetzungen zum Kochen und Genießen.
Moderní, otevřená kuchyň se harmonicky spojuje s obývacím prostorem a poskytuje vynikající podmínky pro vaření a vychutnávání jídel.
Das ruhig gelegene Schlafzimmer verfügt über ausreichend Platz für ein Doppelbett und einen großen Kleiderschrank.
Klidně situovaná ložnice nabízí dostatek místa pro manželskou postel a velkou skříň.
Im eleganten Tageslichtbad erwarten Sie hochwertige Sanitärobjekte und eine komfortable Badewanne.
V elegantní koupelně osvětlené denním světlem na vás čeká špičkové sanitární vybavení a komfortní vana.
Ein praktischer Abstellraum in der Wohnung sorgt zusätzlich für Ordnung und Stauraum.
Praktický úložný prostor v bytě navíc zajišťuje pořádek a dodatečné úložné možnosti.
Hochwertige Ausstattungsdetails wie Echtholzparkett, dreifach verglaste Fenster und Fußbodenheizung schaffen ein behagliches Wohnklima zu jeder Jahreszeit.
Kvalitní detaily vybavení, jako je parketové dřevo, trojitě zasklená okna a podlahové vytápění, vytvářejí útulné bydlení v každém ročním období.
Ein Kellerabteil sowie ein optional erhältlicher Tiefgaragenstellplatz runden dieses attraktive Immobilienangebot ab.
K nabídce této atraktivní nemovitosti rovněž patří sklepní kóje a volitelně dostupné kryté garážové stání.
Die Immobilie liegt in einer der beliebtesten Wohngegenden Münchens, im ruhigen und gewachsenen Stadtteil Forstenried im Südwesten der Landeshauptstadt.
Nemovitost se nachází v jedné z nejžádanějších rezidenčních částí Mnichova, v klidné a ustálené čtvrti Forstenried na jihozápadě hlavního města Bavorska.
Die Derfflingerstraße 9 besticht durch ihre angenehm grüne Umgebung, eine gepflegte Nachbarschaft und eine erstklassige Infrastruktur – ideal für alle, die urbanes Wohnen mit hoher Lebensqualität verbinden möchten.
Adresa Derfflingerstraße 9 vyniká svou příjemně zelenou okolí, upraveným sousedstvím a prvotřídní infrastrukturou – ideální pro ty, kteří chtějí spojit městský život s vysokou kvalitou bydlení.
Forstenried gehört zum Stadtbezirk Thalkirchen-Obersendling-Forstenried-Fürstenried-Solln und ist bekannt für seine familienfreundliche, sichere und naturnahe Atmosphäre.
Forstenried patří do městského obvodu Thalkirchen-Obersendling-Forstenried-Fürstenried-Solln a je proslulý svou rodinnou, bezpečnou a přírodě blízkou atmosférou.
In der unmittelbaren Umgebung finden sich vielfältige Einkaufsmöglichkeiten des täglichen Bedarfs, Ärzte, Apotheken, Cafés sowie Kindergärten und Schulen – alles bequem zu Fuß erreichbar.
V bezprostředním okolí najdete širokou škálu obchodů se zbožím pro každodenní potřeby, lékaře, lékárny, kavárny, stejně jako mateřské školy a školy – vše pohodlně dostupné pěšky.
Auch die Verkehrsanbindung lässt keine Wünsche offen: Die U-Bahn-Station Forstenrieder Allee (U3) ist nur wenige Gehminuten entfernt und bringt Sie in etwa 15 Minuten direkt in die Münchner Innenstadt.
Dopravní spojení také nenechá nic přát: Stanice metra Forstenrieder Allee (U3) je vzdálena jen několik minut chůze a během přibližně 15 minut se dostanete přímo do centra Mnichova.
Über den nahegelegenen Mittleren Ring und die A95 gelangen Sie schnell sowohl in andere Stadtteile als auch ins bayerische Voralpenland.
Díky nedalekému Mittleren Ring a dálnici A95 se rychle dostanete jak do dalších čtvrtí, tak i do bavorské předhorí.
Für Naturliebhaber und Freizeitaktive bietet die Umgebung vielfältige Erholungsmöglichkeiten: Der Forstenrieder Park, das Walderlebniszentrum sowie zahlreiche Rad- und Wanderwege laden zu entspannten Stunden im Grünen ein – Erholung direkt vor der Haustür.
Pro milovníky přírody a volnočasové aktivity nabízí okolí řadu možností k odpočinku: Forstenrieder Park, Centrum pro zážitky v přírodě a četné cyklistické a pěší stezky vás zvou k relaxaci uprostřed zeleně – odpočinek přímo před vašimi dveřmi.
Diese Wohnung wird direkt vom Eigentümer verkauft – ohne Makler und ohne zusätzliche Provision.
Tento byt je prodáván přímo vlastníkem – bez zprostředkovatele a bez dalších provizí.
Für Sie als Käufer bedeutet das einen deutlichen Preisvorteil von ca. 19.000,- EUR, da keine Maklercourtage anfällt.
Pro vás jako kupce to znamená výraznou cenovou výhodu přibližně 19 000 EUR, protože není účtována žádná makléřská provize.
V okolí nemovitosti najdete
Stále hledáte to pravé?
Nastavte si hlídacího psa. Nabídky vybrané na míru dostanete souhrnně 1× denně e-mailem. S Premium profilem máte k ruce hlídačů rovnou 5 a když se něco objeví, informují vás obratem.














