
Prodej domu 5+1 • 132 m² bez realitkyMünchen Trudering Bayern 81827
München Trudering Bayern 81827MHD 4 minuty pěšky • GarážŘadový řadový dům, zahájení stavby 2008, dokončení 2009, byl postaven masivní cihlovou technikou.
Je součástí trojčlenné řady domů. U sousedních budov se jedná o dvojdomky a rodinné domy.
V přízemí se nachází vstupní prostor s předsíňovou skříní, hostinská toaleta, vestavěná kuchyň s posuvnými skleněnými dveřmi do obývacího a jídelního pokoje.
Z světlého obývacího pokoje s připojením krbu vedou dvě podlahou až ke stropu sahající dvojitá dveře na terasu a do zahrady.
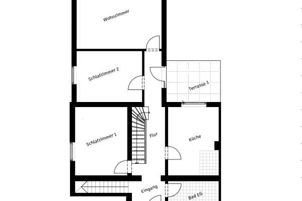
Horní patro nabízí jeden pokoj rovněž se dvěma podlahou až ke stropu sahajícími dvojitými dveřmi a dále ještě jeden další pokoj.
Koupelna je vybavena vanou a oddělenou sprchou.
Oba světlé pokoje v podkroví se vyznačují obzvlášť velkými střechovými okny (strešnicemi).
Pod podlahou jsou v této části připraveny všechny vodoinstalační přípojky pro případnou další koupelnu.
V suterénu se nachází hobby a hostinský pokoj s parketovou podlahou, podlahovým topením a dvěma velkými světlíky, sklep, velká prádelna a dílna, stejně jako topení (úsporně umístěné pod schodištěm).
Dům se nachází v jižní části čtvrti Waldtrudering.
Nejbližší autobusová zastávka Am Hochacker (3 autobusové linky) je vzdálena 100 m.
Odtud se dostanete ke dvěma stanicím metra a dvěma stanicím S-Bahn (za 5 až 10 minut).
Také 100 m od domu se nachází Waldtruderinger Forst, krajinně chráněná oblast.
Mateřská škola, předškolka a školy se nacházejí v okruhu 800 m.
Obchody denní potřeby jsou vzdáleny přibližně 800 m (dvě různé možnosti), další nákupní centrum je 1,2 km daleko a nákupní centra Life München a PEP jsou vzdálena 2,5 km (tj. 6–8 minut autobusem).
Orientace domu je jihozápadní.
Všechny místnosti v domě (s výjimkou sklepa a prádelny/dílny) jsou vybaveny podlahovým topením.
Všechny místnosti mají elektrické žaluzie.
Ve vstupní hale, kuchyni, koupelně, hostinské toaletě a sklepě jsou použity světlé dlaždice,
ve všech ostatních místnostech včetně chodeb je světlá parketová podlaha.
Terasa je krytá, avšak není uzavřená.
Garáž se jedná o samostatnou garáž (k doplátku 35.000 €).
Pozemek je skutečně oddělený.
V okolí nemovitosti najdete
Stále hledáte to pravé?
Nastavte si hlídacího psa. Nabídky vybrané na míru dostanete souhrnně 1× denně e-mailem. S Premium profilem máte k ruce hlídačů rovnou 5 a když se něco objeví, informují vás obratem.





















