
Prodej bytu 2+1 • 61 m² bez realitkyWien 2. Bezirk Wien 1020
Wien 2. Bezirk Wien 1020MHD do minuty pěšky • VýtahSTARŠÍ BYT | DOKONALE REKONSTRUOVANÝ | ZELEŇ DVORA | VENEDIGER AU
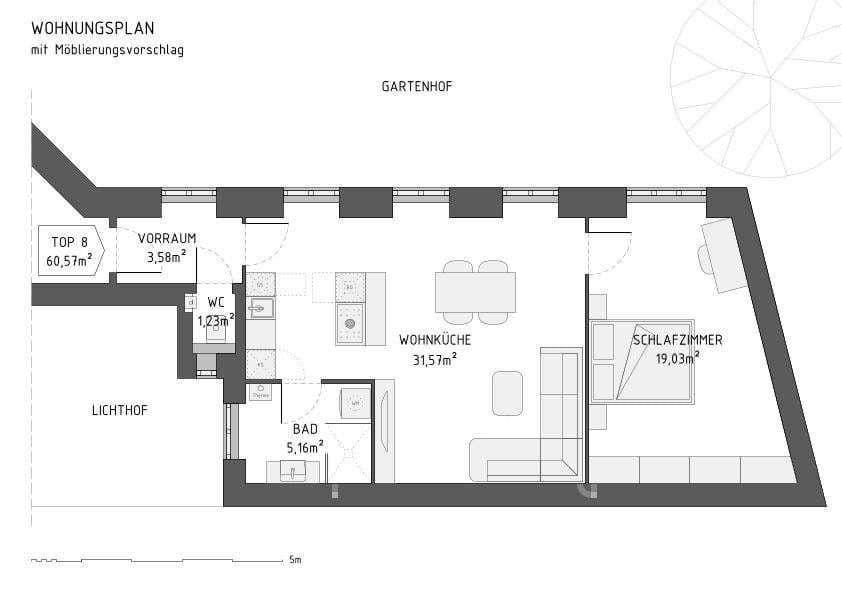
Přestavba a rekonstrukce bytu byla naplánována a provedena architektem. Při tom byl kladen velký důraz na kvalitu a precizní zpracování.
I ten impozantní roh budovy byl v oblasti soklu renovován a působí moderně.
Vybavení:
• Podlahové vytápění s přípravou na připojení k dálkovému vytápění
• Energeticky úsporná a zvukově izolační okna značky Rehau
• Dubová parketa Weitzer
• Koupelna se sprchou s italskou keramickou dlažbou, sušička ručníků
• Nastěnné WC s elektřinou a vodním připojením pro sprchové WC
• Masivní dveře Kunex
• Vestavěná kuchyň s kuchyňským ostrovem je objednána
• Bezpečnostní dveře
• Kondenzační kotel značky Wolf s přípravou pro tepelné čerpadlo či dálkové vytápění
• Kabelová televize / internet
• Elektrorozvody v okenních rámcích a mnoho dalšího
• Připojení komína v obývacím pokoji a ložnici
• Zeleň ve vnitřním dvoře
• Úložna pro kola, místnost pro kočárky a odpadková místnost v přízemí
• Rok výstavby cca 1900
• Velký výtah
• Suchý sklepní kóje o rozloze 3 m²
• Bezbariérový přístup
• 217 EUR měsíčně na provozní náklady včetně rezervního fondu
BEZ ZÁVAZKŮ A BEZ VĚCNÝCH BŘEMEN
Rád vám osobně předvedu svůj krásný byt, abyste se mohli přesvědčit, jak se liší od srovnatelných nabídek.
Okolí:
Metro, příměstské vlaky, Markt před domem, WU, FH, BFI, Webster University, čtvrť Zwei, OMV, ÖBB, Town-Town, Prater, Augarten, Dunaj, Riesenrad, Stadionbad, Austria Campus, Das Muth, veletrh ve Vídni, cyklistické stezky, dálnice, Kieser Training, Bilal, Penny, Reinthaler, Das Stuber, Mochi Brösel, The Cake Tree …
Vysoce kvalitní provedení:
• Okna, podlahy a dveře z domácí výroby.
• Koupelna a WC: italská jemná keramická dlažba
• Vestavěná kuchyň je objednána, dodací lhůta 6–8 týdnů
• Parkování pro obyvatele přímo před domem.
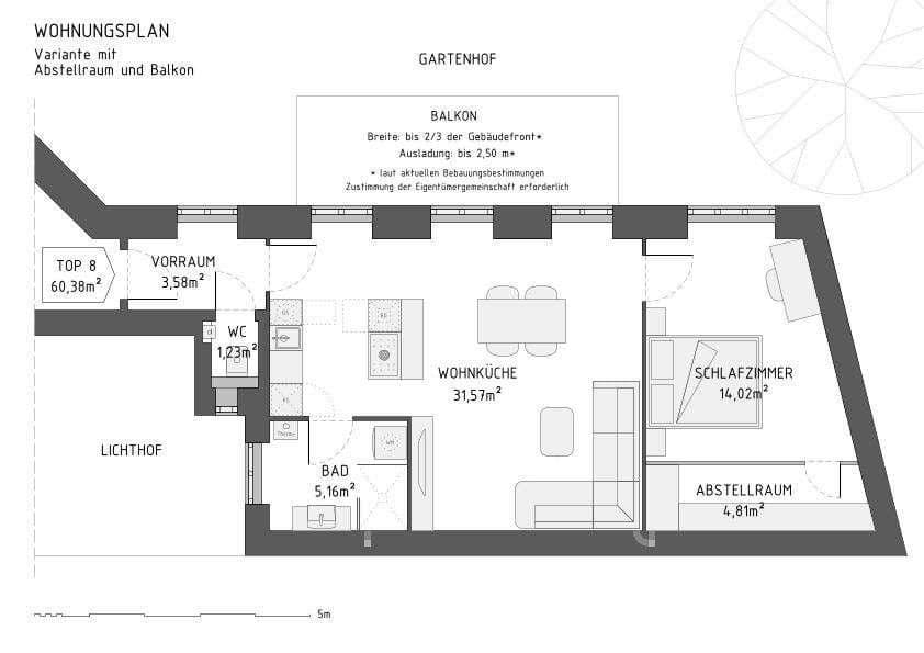
• Přístavba balkonu: „V zásadě musí všichni spoluvlastníci souhlasit s přístavbou balkonu. V současnosti však existuje možnost, jak prostřednictvím takzvané ‚místní zvykovosti‘ právně obejít nutnost získávat jednotlivé souhlasy.“ S narůstajícím počtem dodatečných úprav balkonů tak právní realizace takového projektu stále více usnadňuje.
V okolí nemovitosti najdete



Prodej bytuWithalmstraße Wolkersdorf Wolkersdorf im Weinviertel Niederösterreich 2120- 3+1
- 87 m²
415 000 € + 383 €

Stále hledáte to pravé?
Nastavte si hlídacího psa. Nabídky vybrané na míru dostanete souhrnně 1× denně e-mailem. S Premium profilem máte k ruce hlídačů rovnou 5 a když se něco objeví, informují vás obratem.












