
Prodej bytu 2+1 • 51 m² bez realitkyPassauerstraße 31 München Sendling-Westpark Bayern 81369
Frisch Renovierte 2-Zimmer-Wohnung am Westpark – top angebunden
(Čerstvě zrekonstruovaný 2-pokojový byt u Westparku – skvěle dostupný)
V jednom velmi udržovaném bytovém domě, umístěném lehce nad úrovní přízemí (v tzv. "hochparterre"), čeká tento kompletně zmodernizovaný 2-pokojový byt na nové obyvatele – situován v klidné lokalitě, ale přitom s vynikající dostupností v Sendling-Westpark. Metro „Harras“ je dosažitelné za pár minut chůze.
Pro majitele i investory
Ideální pro okamžité nastěhování pro jednotlivce nebo páry bez nutnosti rekonstrukce. Jako investice je rovněž atraktivní – v závislosti na speciálním pronájmu je reálně dosažitelná hrubá výnosnost kolem 3,8 %.
Fakta a přednosti:
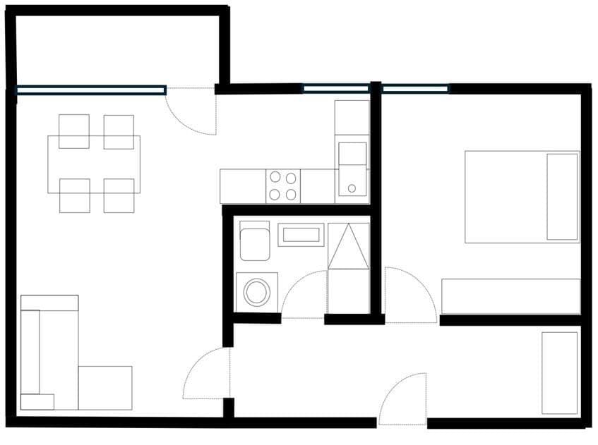
- Promyšlené dispozice: cca 51 m² s propojenou kuchyňskou částí (kuchyň zatím není instalována), dobře uspořádanou ložnicí a balkonem.
- Kvalitní podlaha: dubové parkety s designem sedlových prken ve venkovském stylu, délka prkna cca 2,2 m.
- Koupelna nově z roku 2025: kompletně zrenovovaná, moderní a nadčasová.
- Balkon orientovaný na východ: dopolední slunce a příjemný výhled.
- Pohodlný přístup: „hochparterre“ s pouhými 8 schody – komfortní pro všechny věkové kategorie.
Stručně: Stylové bydlení s pevnou perspektivou – ať už pro vlastní bydlení nebo jako výnosná investice.
Vítejte v Sendling-Westpark – město a příroda v dokonalé rovnováze
Mezi městským životem a relaxační zelení nabízí Sendling-Westpark vyspělou čtvrť se snadnou dostupností centra, klidem v každodenním životě a zřejmým pocitem pohody.
Všechno rychle dostupné
Jen pár minut pěšky vás odděluje od supermarketů, lékáren, ordinací lékařů a pekáren. Navíc jsou v okolí i útulné kavárny a restaurace. Vše zvládnete snadno pěšky nebo na kole – efektivně, bez komplikací a v uvolněné atmosféře.
Rodinné prostředí
Mateřské školy a základní školy jsou prakticky na dosah, dále pak střední školy jsou rychle dostupné. Tato čtvrť je považována za klidnou, bezpečnou a komunitní – ideální pro každého, kdo ocení dobře organizované a harmonické bydlení.
Zelené plochy pro načerpání energie
Westpark je dosažitelný během několika minut a láká rozsáhlými loukami, vodními plochami, hřišti a sportovními zónami. Ať už si chcete užít pohodovou procházku, běžeckou trasu nebo piknik – zde je dostatek místa pro každou formu relaxace na čerstvém vzduchu.
Rychlé spojení
Díky linkám metra U3 a U6 a několika autobusovým spojením se rychle dostanete do centra Mnichova. Po dálnicích A95 a A96 se pohodlně přesunete do předměstí – například k jezeru Starnberger – a k dalším cílům.
Budoucnost zajišťující lokalita
Sendling-Westpark patří mezi nejžádanější obytné lokality v Mnichově. Kombinace vynikající infrastruktury, vysoké kvality života a stabilního růstu hodnoty přesvědčí jak majitele, tak investory.
Infrastruktura v okruhu cca 3 km
Obchody s potravinami, lékárny, zdravotnická zařízení, mateřské školy, základní i střední školy, několik stanic metra a široká nabídka volnočasových, kulturních a gastronomických zařízení.
Nemovitost se představuje s moderním vybavením, které suverénně spojuje komfort a styl:
- Kompletně zrenovovaná koupelna s podlahovým vytápěním a přípojkou pro pračku
- Originální dubové parkety (délka 2,2 m) v prostorných deskách ve všech obytných prostorách
- Všechny vnitřní dveře byly vyměněny a provedeny v luxusním designu
- Elektroinstalace na úrovni novostavby, včetně moderní multimediální distribuce pro router
- Motorizované rolety pro pohodlné ovládání
- Jemně omyté, nově natřené stěny
- Snadno udržovatelná plastová okna s efektivním tepelným sklem
- Otevřený koncept prostoru: kuchyň (kuchyň momentálně není instalována) s plynulým přechodem do obývací a jídelní části
- Světlý, příjemně orientovaný balkon pro uvolněné chvíle
Vytápění
Ústřední topení
Kontakt a prohlídka
Prohlídky jsou možné výhradně po předchozí individuální domluvě. Máte-li zájem, kontaktujte přímo vlastníka pro sjednání osobního termínu.
Důležitá informace
Dotazy makléřů nejsou vítány.
Nežádané kontakty od makléřů bez výslovného souhlasu vlastníka jsou dle § 7 UWG (zákon proti nekalé soutěži) nepřípustné.
V okolí nemovitosti najdete
Stále hledáte to pravé?
Nastavte si hlídacího psa. Nabídky vybrané na míru dostanete souhrnně 1× denně e-mailem. S Premium profilem máte k ruce hlídačů rovnou 5 a když se něco objeví, informují vás obratem.

















