
Prodej bytu 3+1 • 75 m² bez realitkyFrankfurt am Main Gutleutviertel Hessen 60329
Frankfurt am Main Gutleutviertel Hessen 60329MHD do minuty pěškyTento světlý, sluncem zalitý byt se nachází ve druhém patře velmi udržovaného historického domu a vyniká svým výjimečným šarmem. Jedná se o pečlivě udržovaný byt, který nabízí tři pěkné pokoje (každý cca 20 m², přístup z chodby), vestavěnou kuchyň a parketovou podlahu. Z kuchyně vede vstup do koupelny, samostatná toaleta je přístupná z chodby. Nemovitost se nachází v domě postaveném v roce 1910 a je vytápěna plynovým podlažním vytápěním. Byt má energetickou třídu C – i přes rok výstavby 1910 nejsou nutná žádná okamžitá opatření ohledně změny topení. K bytu je rovněž přidělen sklep.
V současné době je byt pronajímán za měsíční nájem ve výši 930,00 € (nabízí se velmi vysoký potenciál pro zvýšení nájemného), lze však na přání kupce krátkodobě uvolnit a vhodný je jak pro vlastní bydlení, tak i jako investice. Prodáváme rovněž podobné (zrcadlové) byty v 1. a 4. patře – neváhejte nás kontaktovat.
Prosíme pouze zájemce, kteří disponují zajištěným financováním, tj. již proběhly příslušné jednání s bankou nebo finančním poradcem a jejich bonita/čistý příjem postačuje k financování nemovitosti.
Prodej probíhá přímo od majitelů a je bez provize pro kupující.
Nemovitost se nachází v příjezdové ulici ve čtvrti Gutleut ve Frankfurtu nad Mohanem, v blízkosti Baseler Platz, pouhých 5 minut od Mohanu. Díky centrální poloze a vysokému počtu současných i budoucích developerských projektů (například nová centrála firmy Nestlé Deutschland), které přispívají k modernizaci a urbanizaci oblasti kolem Baseler Platz, tato lokalita disponuje velmi vysokým potenciálem pro zhodnocení. V bezprostředním okolí naleznete několik restaurací, kaváren, pekáren, lékařů a nákupní centrum. Rovněž je dosažitelných několik zelených ploch a parků, barů, knihkupectví, fitness center a módních obchodů. Hlavní nádraží je vzdáleno 700 m.
• Dubové parkety ve formě prken
• Vysoké stropy typické pro historické budovy (3,50 m), částečně se stučovými prvky
• Vestavěná kuchyně
• Koupelna s denním světlem (s vanou)
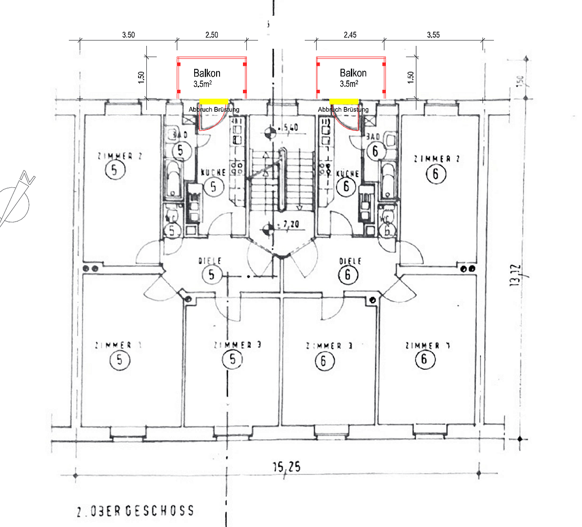
• Schváleno povolení pro přístavbu balkonů
• Sklep
• Místo pro uložení jízdního kola
• Plynová kotelna (plynové podlažní vytápění) z roku 2021
PROSÍME, ŽÁDNÉ DOTAZY REALITNÍCH MAKLÉŘŮ.
V okolí nemovitosti najdete
Stále hledáte to pravé?
Nastavte si hlídacího psa. Nabídky vybrané na míru dostanete souhrnně 1× denně e-mailem. S Premium profilem máte k ruce hlídačů rovnou 5 a když se něco objeví, informují vás obratem.
















