
Prodej bytu 3+kk • 112 m² bez realitky, Hessen
, HessenMHD 1 minuta pěšky • Parkování**Anglicky mluvící jsou vítáni – informační materiály v angličtině jsou k dispozici**
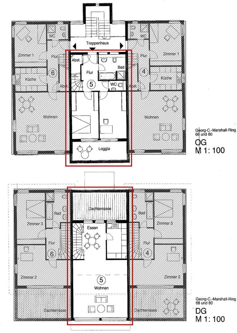
Moderní, světlý a prostorně uspořádaný 3–4 pokojový byt rozložený na dvou úrovních. Nachází se v prvním patře a podkroví malého bytového domu, který obsahuje pouhých 6 bytů. V tomto architektonickém domě jsou vnitřní příčky většinou nenosné, což vám umožní přizpůsobit dispozici podle vašich představ a případně integrovat dokonce čtvrtý pokoj * (na konci galerie najdete několik návrhů dispozic).
Obytná plocha o rozloze 111,40 m² je opravdu prostorná. Byt disponuje vlastním carportem a parkovacím místem pro osobní automobil. Ke světlému bytu náleží v 1. patře velká loggia, vstupní prostor, 2 samostatné místnosti vhodné jako ložnice, pracovní pokoj nebo dětský pokoj, koupelna se samostatným hostinským WC a uzavřená komora. V podkroví bez šikmých stropů se nachází prostorný obývací pokoj se samostatnou jídelní částí, kuchyně a velká střešní terasa s výhledem na nedaleký les. Dřevěné terasové desky na střešní terase a loggii byly v roce 2021 kompletně renovovány (včetně podkonstrukce). Zelený pás před domem poskytuje klid a příjemnou odstup od další řady domů, což na střešní terase zajišťuje jedinečné soukromí.
Veřejná parkovací místa pro návštěvníky jsou k dispozici v dostatečném množství. K bytu patří také vlastní sklep o rozloze 14,8 m², dále společná prádelna se sušárnou a samostatně přístupná místnost pro kola. Výhodné uspořádání bytu je vhodné pro páry, ale i pro rodiny až do 4 osob.
* Právní upozornění: Přestavba dle vašich představ prodávající neprovádí. Náklady na požadované přestavby nese kupující a nejsou výslovnou součástí nabídky. Nelze převzít záruku za proveditelnost navržených přestavbových možností.
Oberursel v okrese Hochtaunuskreis, spolu s okresním městem Bad Homburg, patří k nejžádanějším rezidenčním oblastem v oblasti Rýn–Main. Díky vynikající dopravní dostupnosti k Frankfurtu nad Mohanem a letišti na jedné straně a nedalekému Taunusu na druhé straně je zajištěna optimální rovnováha mezi prací a volným časem.
Váš nový domov se nachází v žádané rezidenční oblasti „Camp King“, jedné z posledních uzavřených stavebních čtvrtí města Oberursel. Poloha nabízí:
• Vysokou hodnotu pro volný čas
• Vynikající dopravní spojení (stanice metra a přístup k dálnici v bezprostřední blízkosti, blízkost letiště bez hlučných letů)
• Nákupní centrum (velký supermarket, pošta, banka, lékárna, optika, kadeřnictví, různí lékaři a další obchody)
• Několik dětských hřišť
• Mateřskou školu a základní školu
• Nezávislou Waldorf školu a Waldorf mateřskou školu
• Mezinárodní školu v bezprostřední blízkosti
• Velký centrální park
Jedná se o klidnou rezidenční oblast s příjemnými sousedy, bez tranzitní komunikace a s vysokou volnočasovou hodnotou. Blízký Taunus a lesní koupaliště jsou snadno dostupné. Přiléhající les zve k běhání a procházkám.
Ve všech obytných a ložnicových místnostech najdete světlý parket z masivního dřeva. Vstupní prostor/chodba a schody vedoucí do horního patra přechází na příjemnou plochu s vysoce kvalitními světlými dlaždicemi. Velká koupelna, hostinské WC a kuchyň jsou obloženy bílým mramorovaným obkladem. Koupelna je vybavena vanou, oddělenou sprchou a dvěma umyvadly. Ve všech obytných a ložnicových místnostech jsou instalovány elektrické venkovní žaluzie, jež umožňují individuální regulaci přirozeného světla.
Dům má nízkou spotřebu energie. Podrobnější informace naleznete v přiloženém energetickém štítku.
V okolí nemovitosti najdete
Stále hledáte to pravé?
Nastavte si hlídacího psa. Nabídky vybrané na míru dostanete souhrnně 1× denně e-mailem. S Premium profilem máte k ruce hlídačů rovnou 5 a když se něco objeví, informují vás obratem.


























