
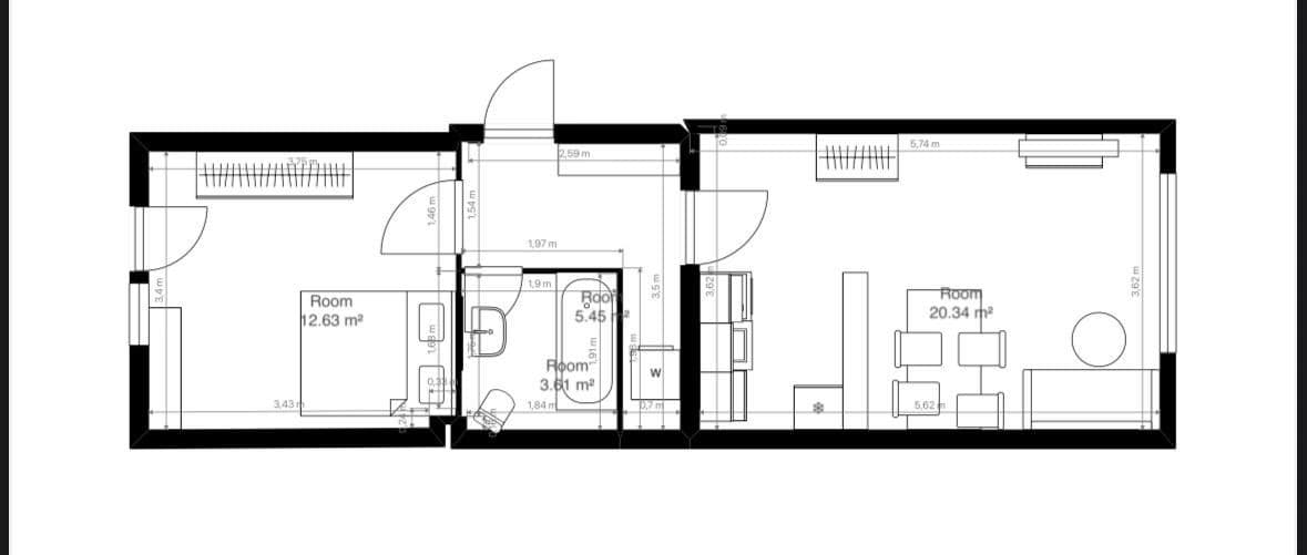
Pronájem bytu 2+1 • 43 m² bez realitkySperberstraße 19 Nürnberg Steinbühl Bayern 90461
Sperberstraße 19 Nürnberg Steinbühl Bayern 90461MHD 2 minuty pěškyTento atraktivní, světlý 2-pokojový byt o přibližné obytné ploše 44 m² se nachází ve 3. patře udržovaného vícepodlažního domu v Nürnbergu-Südstadt. Budova pochází z roku 1962 a v roce 2024 prošla rozsáhlou rekonstrukcí. Byt je prezentován v moderním, příjemném stavu a zaujme promyšleným dispozicí a slunným balkonem s výhledem do klidného vnitřního dvora.
Obývací pokoj je vybaven novou a kvalitní kuchyní. Samostatná ložnice s přístupem na balkon nabízí dostatek místa pro manželskou postel a velkou skříň. Balkon láká v létě ideálně k odpočinku. Koupelna je vybavena sprchovým koutem. Ve všech obytných prostorách byl položen nový vinylový podlahový kryt s dřevěným vzhledem. Dále je vybaven praktickým připojením pro pračku.
Byt je ideální pro jednotlivce, páry nebo dojíždějící, kteří hledají světlý a klidný městský byt s dobrou dopravní dostupností.
Byt je momentálně ještě v rekonstrukci. Fotografie bytu ukazují byt před rekonstrukcí a bez kuchyně.
Byt se nachází v klidné cyklistické ulici v oblíbené Südstadt – centrálně, ale příjemně odstíněn od dopravy. Zastávky tramvaje a autobusu jsou vzdálené jen asi 2 minuty chůze a Frankenschnellweg (A73) je dosažitelný během 5 minut jízdy. Možnosti nákupu se nacházejí přímo před domem: supermarket Edeka, pekárna a další obchody každodenní potřeby jsou vzdálené jen 1 minutu chůze. Okolí navíc nabízí široký výběr restaurací, zelených ploch a volnočasových aktivit – ideální pro všechny, kdo chtějí kombinovat městský život s klidem a komfortem.
• Nové nastěhování po částečné rekonstrukci
• Světlý obývací/jídelní prostor
• Otevřená, moderní vestavěná kuchyň (trouba, lednička, indukční varná deska, digestoř)
• Samostatná ložnice
• Krásný balkon směřující na sever/západ
• K dispozici je připojení pro pračku
• Kvalitní vinylová podlaha s dřevěným vzhledem ve všech obytných prostorech
• Samostatný skladovací prostor v suterénu
• Krytá cyklistická stání ve vnitřním dvoře
V okolí nemovitosti najdete
Stále hledáte to pravé?
Nastavte si hlídacího psa. Nabídky vybrané na míru dostanete souhrnně 1× denně e-mailem. S Premium profilem máte k ruce hlídačů rovnou 5 a když se něco objeví, informují vás obratem.














