Pronájem bytu 3+kk • 92 m² bez realitkyV Horkách, Praha - Nusle
Máte o nabídku zájem?
Ušetřete 34 000 Kč na provizi a komunikujte se všemi majiteli.
Dovolujeme si Vám nabídnout k pronájmu vybavený byt 3+kk v Praze, který se nachází na druhém patře skeletové novostavby z r. 2017 ve výborném stavu. Byt je v osobním vlastnictví a je připraven k vašemu nastěhování od prosince 2025.
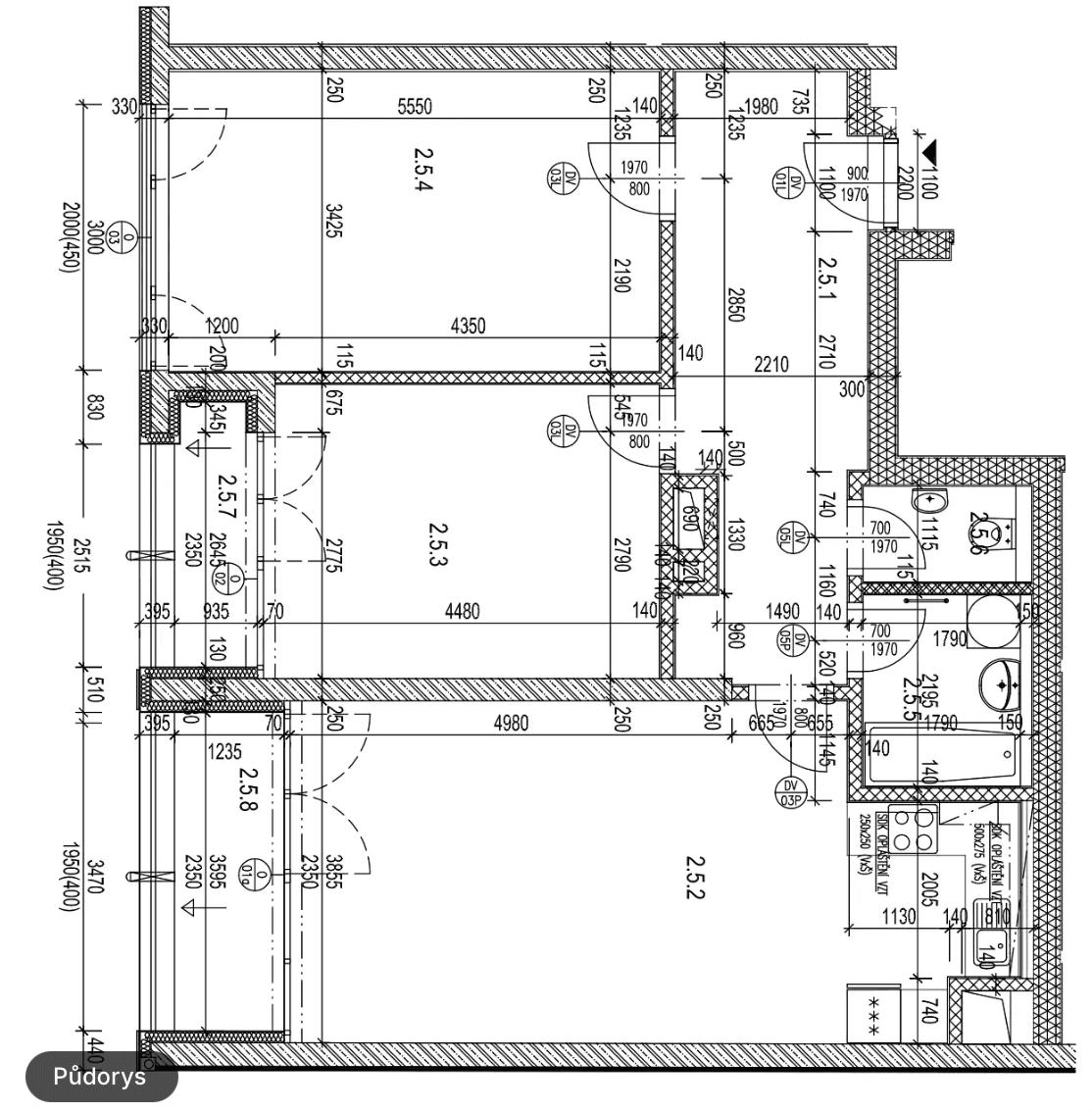
Tento prostorný byt o užitné ploše 82 m² nabízí komfortní bydlení s moderním uspořádáním. K dispozici jsou navíc dvě lodžie v celkové ploše 8 m², které poskytují příjemný prostor pro relaxaci. Součástí bytu je i sklep o ploše 2 m², poskytující praktický úložný prostor.
Pronájem bytu činí 35 000 Kč měsíčně + náklady na bydlení 5 500 Kč. Vratná kauce je stanovena na 40 000 Kč. Nájemce si převede elektřinu, jejíž odhadované měsíční náklady činí 1 000 až 1 500 Kč dle spotřeby. Byt je pronajímán jako jednopodlažní, poplatky zahrnujícími pojištění nemovitosti, zálohy na TUV, vytápění, odpad a úklid domu, údržba zahrady.
Internet je řešený prostřednictvím pevného připojení (Vodafone).
K bytové jednotce je k dispozici uzavřený vnitroblok přístupný pouze po vlastníky jednotek, kde je zahrada s posezením, možností grilování a dětské hřiště s pískovištěm.
Bytová jednotka je kompletně vybavena:
- kuchyň vč. spotřebičů, myčka, varná deska, digestoř, mikrovlnná trouba
- pračka
- klimatizační jednotky v každé obytné místnosti
- palanda v dětském pokoji
- vestavěné skříně
- jídelní stůl s židlemi
- pohovka, TV stěna, koupelnový nábytek, botník
Na fotografii je akvárium nad pohovkou - to je demontováno vč. osobních a dílčích zařizovacích předmětů, stěhování probíhá v průběhu listopadu, byt k dispozici od 1. prosince.
Pokud Vás byt zaujal, neváhejte nám napsat nebo zavolat a rádi Vám vše ukážeme osobně.
Byt nabízený přímým majitelem - neplatí se provize realitní kanceláři!
Realitní kanceláře - nemám zájem nabízet nemovitost prostřednictvím RK, nevolat!
We are pleased to offer you a furnished 3+kk apartment for rent in Prague, located on the second floor of a new skeletal building from 2017 in excellent condition. The apartment is privately owned and will be ready for move-in from December 2025.
This spacious apartment with a usable area of 82 m² offers comfortable living with a modern layout. In addition, there are two balconies with a total area of 8 m² that provide a pleasant space for relaxation. The apartment also includes a 2 m² cellar, providing practical storage space.
The monthly rent for the apartment is 35,000 CZK plus living expenses of 5,500 CZK. A refundable deposit is set at 40,000 CZK. The tenant will arrange electricity, with estimated monthly costs ranging from 1,000 to 1,500 CZK depending on consumption. The apartment is rented as a single-floor unit, with fees covering property insurance, advance payments for hot water, heating, waste disposal and building cleaning, and garden maintenance.
Internet is provided via a fixed connection (Vodafone).
The apartment benefits from an enclosed inner courtyard accessible only to the unit owners, featuring a garden with a seating area, grilling facilities, and a children's playground with a sandpit.
The apartment is fully equipped:
- Kitchen including appliances, dishwasher, cooktop, extractor, and microwave
- Washing machine
- Air conditioning units in every living room
- Bunk bed in the children's room
- Built-in wardrobes
- Dining table with chairs
- Sofa, TV wall unit, bathroom furniture, shoe cabinet
In the photograph, there is an aquarium above the sofa – it is now dismantled along with personal and additional furnishing items. The move will take place in November, and the apartment will be available from December 1st.
If you are interested in the apartment, please do not hesitate to write to us or call, and we will be happy to show you everything in person.
The apartment is offered directly by the owner – no commission is paid to any real estate agency!
Real estate agencies – I am not interested in offering the property through an agency, please do not call!
Parametry nemovitosti
| Stáří | Do 10 let |
|---|---|
| Stav | Novostavba |
| Dispozice | 3+kk |
| Podlaží | 2. podlaží z 7 |
| Vytápění | Ústřední |
| PENB | B - Velmi úsporná |
| Užitná plocha | 92 m² |
| Dostupné od | 20. 11. 2025 |
|---|---|
| Konstrukce budovy | Skeletová |
| Vybaveno | Vybaveno |
| Provedení | Luxusní |
| Číslo inzerátu | 966837 |
| Umístění | Centrum |
| Cena za jednotku | 370 Kč / m2 |
Co tato nemovitost nabízí?
| Bezbariérový přístup | |
| Lodžie 8 m² |
| Sklep 2 m² | |
| Výtah | |
| Parkování |
V okolí nemovitosti najdete
Máte o nabídku zájem?
Ušetřete 34 000 Kč na provizi a komunikujte se všemi majiteli.
Stále hledáte to pravé?
Nastavte si hlídacího psa. Nabídky vybrané na míru dostanete souhrnně 1× denně e-mailem. S Premium profilem máte k ruce hlídačů rovnou 5 a když se něco objeví, informují vás obratem.



















