
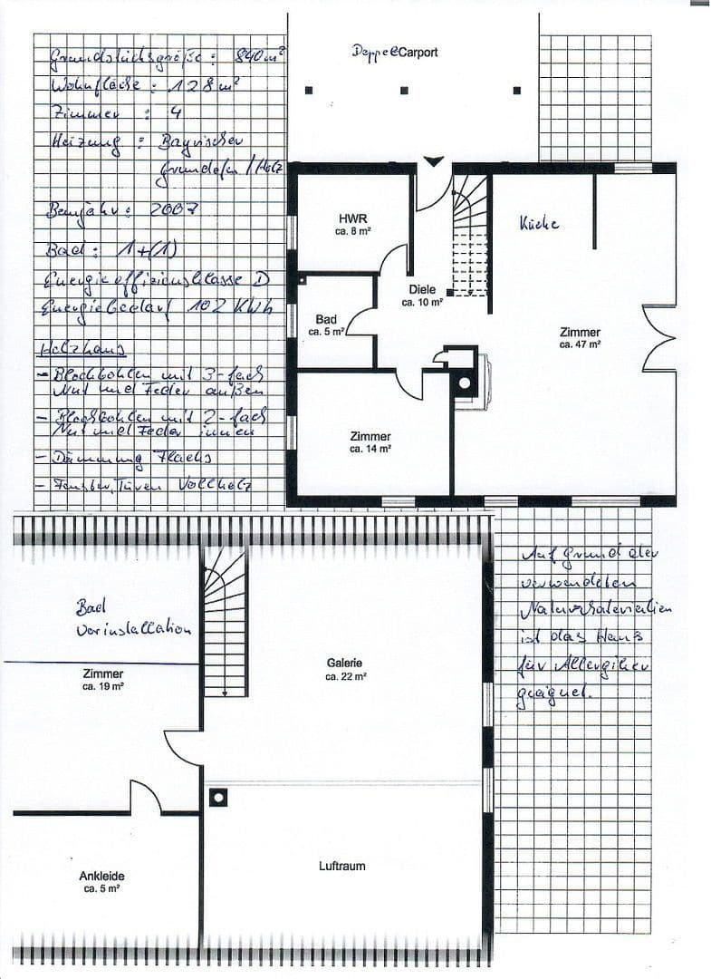
Prodej domu 4+1 • 128 m² bez realitkyWeidenweg 25b, , Braniborsko
Weidenweg 25b, , BraniborskoMHD 10 minut autem • ParkováníDřevěný dům postavený z masivních desek v roce 2007 se nachází na konci ulice u bočního ramene řeky Havel v nádherné obci Birkenwerder. Nepřekrytý výhled na vodu a za tím rozsáhlou louku dává majiteli domu pocit dovolené v přírodě. Idylicky umístěný soukromý koupací a rybářský mole ještě více umocňuje dojem žití v souladu s přírodou. Rozlehlý pozemek o rozloze 840 m² s přístavbou malého bungalovu navíc nabízí kupci příležitosti, jak se realizovat. Vyvýšené záhony, chodníky a vyhrazené plochy jsou postaveny z přírodního kamene. K dispozici je také vlastní zahradní fontána. Dům byl převážně postaven podle požadavků bezalergenního bydlení a interiér byl vybaven za použití přírodních materiálů bez škodlivých látek.
Vzdálenost od veřejné dopravy činí 2,3 km k zastávce S-Bahn (linky S1, S8 a regionální vlak) a 730 m k autobusové zastávce. K dálnici A10 se autem dostanete za 1,4 km a státní silnice B96 a B96a vedou obcí přímo do hlavního města, takže zde můžeme hovořit o velmi dobrém spojení. Dále je zajištěna kompletní občanská vybavenost v okruhu 2–3 km, včetně obchodů, škol a mateřských škol, lékařů a lékáren, volnočasových zařízení a gastronomických služeb.
Dům je po 18 letech ve velmi dobrém stavu a je ihned k nastěhování, nicméně na několika místech vyžaduje renovaci a opravy. Příslušné rozpočtové odhady již jsou k dispozici pro kalkulaci. Druhá koupelna v horním patře by měla být rozšířena; přípojky, dokonce i pro saunu, jsou již připraveny. Vnější fasáda by měla být naolejována.
V okolí nemovitosti najdete
Stále hledáte to pravé?
Nastavte si hlídacího psa. Nabídky vybrané na míru dostanete souhrnně 1× denně e-mailem. S Premium profilem máte k ruce hlídačů rovnou 5 a když se něco objeví, informují vás obratem.































