
Prodej bytu 2+1 • 75 m² bez realitkySucystraße 14, , Bádensko-Württembersko
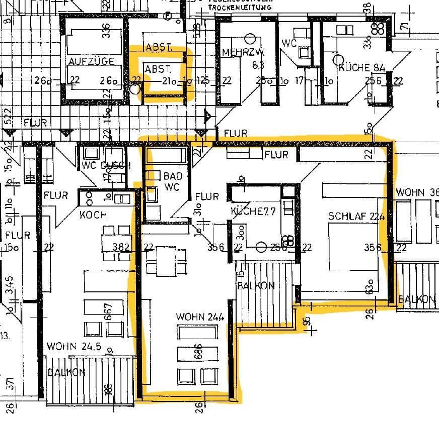
Sucystraße 14, , Bádensko-WürttemberskoMHD 1 minuta pěšky • Výtah • GarážProstorný 2+kk byt se nachází v pátém patře vícebytového domu ve vyhledávané čtvrti Buch v klidné okrajové části Bietigheim-Bissingen. Prodává se bez provize a bez makléře. Přístup je bezbariérový prostřednictvím dvou výtahů.
Velkorysý obývací a jídelní prostor tvoří srdce bytu. Velká okna zajišťují spoustu denního světla a příjemnou atmosféru domova.
Z obývacího pokoje i ložnice se dostanete přímo na balkon, který nabízí dostatek místa a je ideální pro relaxaci na čerstvém vzduchu. Koupelna s vanou navíc obsahuje přípojku pro pračku.
Novodobá vestavěná kuchyň je v ceně zahrnuta.
Samostatná, praktická a uzamykatelná skladovací místnost se nachází mimo byt, ale na stejném patře, což poskytuje dodatečný úložný prostor. Další skladovací místnost se nachází ve sklepě.
K dispozici je také podzemní parkovací místo, které je zahrnuto v kupní ceně.
Byt je momentálně prázdný a ihned k nastěhování.
Byt nabízí následující vybavení:
- Novodobá vestavěná kuchyň (instalována v roce 2024)
- Nové podlahy instalované v letech 2022/2023 (vinyl v obývacím/jídelním pokoji, kuchyni; kobercový Tretford v ložnici)
- Obnova topných těles v roce 2022
- Instalace proti hmyzu na balkonových dveřích v roce 2023
- Instalace protipožárních vstupních dveří
Na samotném vícebytovém domě již proběhly rozsáhlé rekonstrukce, například na vnější fasádě, ve schodišti, ve výtazích, vstupní oblasti nebo v podzemní garáži.
Byt se nachází v obytné čtvrti Buch v Bietigheim-Bissingen – v rodinně přátelském a skvěle vybaveném okolí. Obchody se základními potřebami, lékaři, lékárna a pekárny jsou snadno dostupné. Také mateřská škola, školy i autobusová zastávka jsou v blízkosti. Nádraží je dosažitelné za přibližně 10 minut chůze. Pro mobilnější cesty je dálniční přípojka (např. k A 81) vzdálena asi 3 km.
Dopravní infrastruktura (v okruhu 5 km):
Lékárna, diskontní prodej potravin, praktický lékař, mateřská škola, základní škola, střední škola, reálná škola, gymnázium, veřejná doprava
V okolí nemovitosti najdete



Prodej bytuirisweg 10 Stuttgart (Bad Cannstatt) Bad Cannstatt Baden-Württemberg 70374- 2+1
- 65 m²
225 000 € + 460 €

Stále hledáte to pravé?
Nastavte si hlídacího psa. Nabídky vybrané na míru dostanete souhrnně 1× denně e-mailem. S Premium profilem máte k ruce hlídačů rovnou 5 a když se něco objeví, informují vás obratem.








