
Pronájem bytu 2+kk • 78 m² bez realitkyHeißener Straße 88 Mülheim an der Ruhr Mülheim an der Ruhr Nordrhein-Westfalen 45468
Heißener Straße 88 Mülheim an der Ruhr Mülheim an der Ruhr Nordrhein-Westfalen 45468MHD 2 minuty pěšky • VýtahAnkommen. Durchatmen. Zuhause sein.
(Dorazíte. Vydechněte si. Budete doma.)
#Helle 2,5-pokojový byt se zády na jihozápad a výtahem v srdci Mülheimu.
Někdy už při vstupu ucítíte, že zde můžete zůstat.
Tento pečlivě udržovaný 2,5-pokojový byt v Mülheim-Eppinghofen propojuje městský život s únikem do zelene – ideální pro ty, kdo ocení krátké vzdálenosti a zároveň si chtějí vychutnat klid.
Být doma s citem
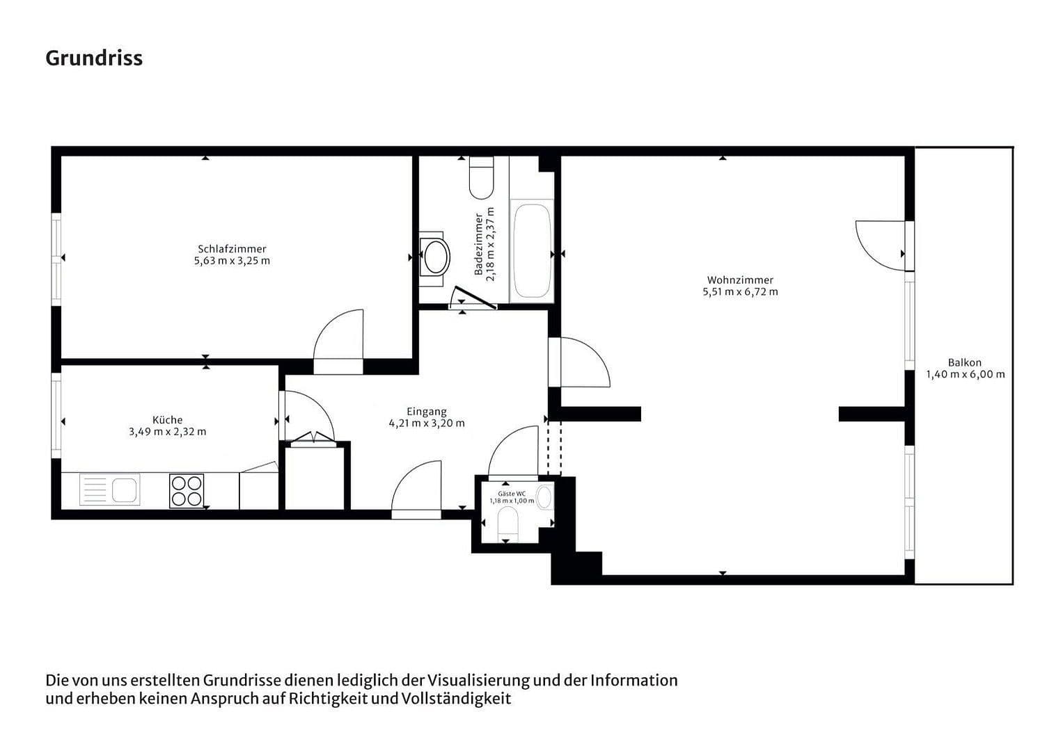
Na 77,4 m² vás čeká promyšlený půdorys s dostatkem světla a prostoru pro pohodlí. Prostorný obývací pokoj se otevírá do jihozápadního balkónu, kde si můžete vychutnat slunečné odpoledne i poklidné večery. Parketové podlahy v obývacím pokoji a chodbě vytvářejí příjemnou atmosféru, zatímco velká, moderní kuchyň je již připravena k společnému vaření, povídání a kulinářským zážitkům.
K dispozici je koupelna s vanou, samostatné návštěvnické WC, úložná komora v bytě i vlastní sklep, což výrazně zvyšuje komfort každodenního života. Byt se nachází v 1. patře velmi udržovaného domu s výtahem. Zejména se vyplatí, že:
Podlaha ložnice i stěny budou renovovány dle vašich představ. Můžete si vytvořit další místnost oddělením v obývacím pokoji, nebo si užívat opravdu prostorný obývací pokoj – zde se skutečně můžete cítit jako doma a přizpůsobit si prostor podle sebe.
Pro koho je tento byt ideální?
• Páry všech věkových kategorií
• Malé rodiny s jedním dítětem
• Pracující nebo důchodci
Žít tam, kde je všechno nablízku
Lokalita spojuje to nejlepší ze dvou světů: centrální umístění a zároveň zelené prostředí.
Nákupy zvládnete během několika minut chůze, centrum Mülheimu se svými obchody, kavárnami a restauracemi je dosažitelné přibližně za 15 minut.
Ať už vás láká kino, městská hala, Ringlokschuppen či procházka v MüGa-parku – vše máte prakticky na dosah ruky. Podél řeky Ruhr mají milovníci přírody a aktivní lidé ideální podmínky pro procházky, běh nebo cyklistiku.
Díky výbornému spojení MHD (autobus cca 500 m, hlavní nádraží cca 800 m) jsou také města Essen, Duisburg, Oberhausen (každé cca za 20 minut) a Düsseldorf (cca za 30 minut) velmi snadno dostupná – ideální pro dojíždějící.
Vybavení na první pohled
• 2,5 pokoje, s možností přestavby na 3 samostatné místnosti
• Velký balkon se směrem na jihozápad
• Velká, moderní vestavěná kuchyň
• Koupelna s vanou
• Samostatné návštěvnické WC
• Prostorná úložná komora v bytě
• Sklep
• Prádelna
• Velmi udržovaný dům a schodiště
• Pohodlný výtah
Proč tento byt?
Protože nabízí víc než jen obytnou plochu.
Zde si vychutnáte slunečná odpoledne na jihozápadním balkoně, prostorný obývací pokoj s teplým parketem a velkou, moderní kuchyň připravenou pro společné chvíle. Prostory jsou promyšleně řešeny, dům je velmi udržovaný a díky výtahu snadno dostupný.
Centrální poloha usnadňuje každodenní život, zatímco zelené nádvoří, řeka Ruhr a MüGa-park poskytují relaxaci a rovnováhu. Zejména navíc: Byt bude renovován podle vašich přání – domov, který se přizpůsobí vašemu životu.
Nyní se ozvěte
Tento byt může být přesně to, co jste hledali.
Neváhejte a zašlete nám již dnes svůj dotaz – těšíme se, až vám tento krásný byt osobně ukážeme.
V okolí nemovitosti najdete


Pronájem bytuRellinghauser Straße 115 Essen Südviertel Nordrhein-Westfalen 45128- 2+kk
- 66 m²
980 € + 160 €


Stále hledáte to pravé?
Nastavte si hlídacího psa. Nabídky vybrané na míru dostanete souhrnně 1× denně e-mailem. S Premium profilem máte k ruce hlídačů rovnou 5 a když se něco objeví, informují vás obratem.



















