
Prodej bytu 3+1 • 75 m² bez realitkyFrankfurt am Main Gutleutviertel Hessen 60329
Tento světlý, světlem naplněný byt se nachází ve druhém patře velmi udržovaného starého domu a okouzluje svým jedinečným šarmem. Jedná se o velmi udržovaný byt, který vyniká třemi pěknými pokoji (každý cca 20 m², vstup z chodby), vestavěnou kuchyní a parketovou podlahou. Z kuchyně se dostanete do koupelny, samostatná toaleta je přístupná z chodby.
Nemovitost se nachází v domě postaveném v roce 1910 a je vytápěna plynovým podlahovým topením. Byt má energetickou náročnost třídy C – i přes rok výstavby 1910 nejsou nutná žádná okamžitá opatření pro modernizaci topení. K dispozici máte také sklepní místnost.
V současnosti je byt pronajat za měsíční nájemné 930,00 € (existuje velmi vysoký potenciál pro navýšení nájemného), nicméně podle přání kupce může být byt brzy uvolněn a je vhodný jak pro vlastní bydlení, tak i jako investice. Prodáváme také podobné (zrcadlově symetrické) byty v 1. a 4. patře – neváhejte nás kontaktovat.
Prosíme, aby nás kontaktovali pouze zájemci, kteří disponují zajištěným financováním, tj. kteří již vedli příslušné rozhovory s bankou nebo finančním poradcem a jejich úvěruschopnost/čistý příjem jsou dostačující pro financování nemovitosti. Prodej probíhá přímo od majitelů a je bez provize pro kupujícího.
Nemovitost se nachází v klidné ulici ve čtvrti Gutleut ve Frankfurtu nad Mohanem, nedaleko od Baseler Platz, 5 minut od Mohan. Díky centrální poloze a velkému počtu současných i nadcházejících developerských projektů (např. nové sídlo Nestlé Německo), které přispívají k modernizaci a urbanizaci oblasti kolem Baseler Platz, má tato lokalita velmi vysoký potenciál růstu hodnoty. V bezprostředním okolí najdete několik restaurací, kaváren, pekáren, lékaře a nákupní centrum. Také zde najdete několik zelených ploch a parků, barů, knihkupectví, fitness center a módních obchodů, které jsou dostupné pěšky. Hlavní nádraží je vzdálené 700 m.
• Dubové lištové parkety
• Vysoké stropy typické pro starší domy (3,50 m), částečně se stukovými prvky
• Vestavěná kuchyň
• Koupelna s dostatkem denního světla (s vanou)
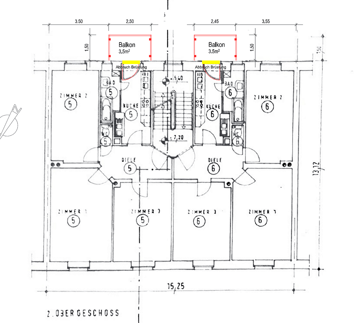
• Je k dispozici povolení k přístavbě balkonů
• Sklep
• Stojan na kola
• Plynový kotel (plynové podlažní topení) z roku 2021
PROSÍM, ŽÁDNÍ DOTAZY OD REALITNÍCH AGENTUR.
V okolí nemovitosti najdete
Stále hledáte to pravé?
Nastavte si hlídacího psa. Nabídky vybrané na míru dostanete souhrnně 1× denně e-mailem. S Premium profilem máte k ruce hlídačů rovnou 5 a když se něco objeví, informují vás obratem.
















