
Prodej domu 6+1 • 137 m² bez realitkyHugo-Lang-Bogen 13 München Neuperlach Bayern 81735
Tento moderní novostavěný řadový dům s obytnou plochou přibližně 137 m² vás zaujme promyšleným uspořádáním místností, světlými obytnými prostory a vysoce kvalitním vybavením. Dům se rozprostírá na dvou podlažích a nabízí ideální kombinaci pohodlí, funkčnosti a stylového bydlení.
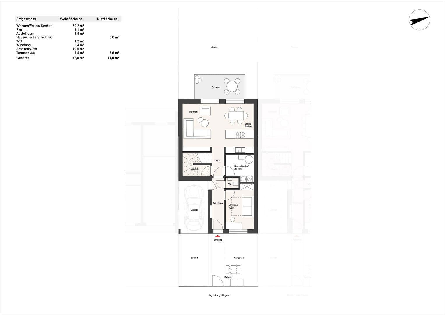
V přízemí vás přivítá prostorný otevřený obývací a jídelní kout spojený s otevřenou kuchyní. Velká okna sahající až ke zemi zajišťují dostatek denního světla a přímý výhled na terasu a zahradu, čímž se harmonicky propojují vnitřní a venkovní prostory. Samostatná toaleta a pokoj pro hosty poskytují další flexibilitu. Integrovaná garáž spolu se samostatným chodebním a technickým prostorem dokončují tuto úroveň a zajišťují praktické pohodlí v každodenním životě.
Na patře se nacházejí dva dětské pokoje, prostorná ložnice pro rodiče, koupelna a pracovna, kterou lze flexibilně využít jako domácí kancelář či hobby místnost. I zde velká okna přispívají k světlé a přívětivé atmosféře.
Dům disponuje vlastní zahradou, prostornou terasou a balkonem s venkovním posezením, kde si můžete vychutnat západní odpolední slunce – ideální pro relaxační chvíle na čerstvém vzduchu.
Tento řadový dům spojuje moderní bydlení s promyšlenou architekturou, světlými interiéry a soukromým venkovním prostorem. Kombinace otevřeného uspořádání místností, velkých oken a vysoce kvalitního vybavení z něj činí ideální domov pro rodiny a páry, kteří si cení městského bydlení s vysokou kvalitou života.
Nemovitost se nachází v městské a dobře dostupné obytné lokalitě Neuperlach, která zaujme krátkou vzdáleností k obchodům, školám a veřejné dopravě. Okolí se vyznačuje vyváženou kombinací moderních obytných komplexů, zelených ploch a dobře vybudované infrastruktury pro každodenní potřeby. Čtvrť nabízí příjemnou městskou kvalitu bydlení s vysokou praktickou využitelností.
V docházkové vzdálenosti se nachází řada obchodních možností, supermarketů, pekáren, lékáren a rozličných služeb. V bezprostředním okolí je také několik mateřských škol a škol, což činí lokalitu obzvlášť atraktivní pro rodiny. Parky a zelené plochy v okolí poskytují příjemná místa k odpočinku a nabízejí možnosti pro volnočasové aktivity venku.
Dopravní dostupnost veřejné hromadné dopravy je vynikající: autobusová zastávka se nachází jen několik minut chůze. Odtud jsou k dispozici rychlá spojení na stanice metra Neuperlach Zentrum a Neuperlach Süd, které zajišťují přímé spojení do centra Mnichova. Díky Karl-Marx-Ringu a Zehntfeldstraße je lokalita navíc skvěle napojena na městskou silniční síť. Dálnice A8 a střední kruhová silnice jsou dosažitelné během krátké jízdy, což poskytuje flexibilitu jak dojíždějícím, tak podnikatelům.
Neuperlach patří k největším a nejlépe rozvinutým obytným oblastem na východ od Mnichova. Čtvrť se vyznačuje širokou nabídkou nákupních center, sportovních zařízení, zdravotnických služeb a gastronomických podniků. Současně je zde zajištěno dobré spojení s okolními čtvrtěmi i s předměstím Mnichova.
Tato lokalita nabízí dobře dostupné bydlení s excelentní infrastrukturou v každodenním životě. Kombinace zelených ploch, moderního rozvoje města a rychlé dostupnosti činí tuto adresu mimořádně atraktivní jak pro rodiny, tak pro pracující a poskytovatele služeb.
Vysoce kvalitní vybavení:
• Masivní monolitická cihlová konstrukce zajišťující vynikající tepelnou izolaci a dlouhověkost
• Standard KfW 55 pro nízké náklady na energii
• Podlahové vytápění ve všech místnostech
• Vysoce kvalitní parkety z masivního dřeva
• Velkoformátové dlaždice v koupelnách a na toaletách
• Okenní parapety z přírodního kamene (granitu)
• Elektrické rolety pro zvýšení komfortu a bezpečnosti
• Sanitární vybavení předních značek od renomovaných výrobců
Jedná se o exkluzivní realizaci stavebního konceptu s právně zajištěným územním plánem – vyvinutou ve úzké spolupráci se zkušenými architekty, certifikovanými odhadci nemovitostí a znalci pozemků, marketingovými experty a stavebním poradcem i dohlížejícím zástupcem stavební firmy.
Stavební vedlejší náklady vztahující se k pozemku, jako jsou například poplatky za připojení, zemní práce, demolice stávající stavby nebo úprava venkovních prostor, jsou již zahrnuty v ceně domu. To znamená, že „výtah hotový ke klíči“ opravdu znamená, že se nemusíte starat o další náklady či organizaci výstavby.
Náš poradenský tým vám k dispozici poskytne nezávislého finančního experta, který pro vás připraví individuálně přizpůsobený finanční koncept. Tím získáte nejvýhodnější tržní podmínky a optimální využití všech aktuálních dotačních možností. Tato exkluzivní služba je součástí našeho servisu a je poskytována zdarma.
Všechny informace, které jsme uvedli, vychází z údajů prodávajícího a jejich správnost a úplnost nelze zaručit. Předčasný prodej a chyby v zadání jsou vyhrazeny. Vizualizace obsahují prémiové doplňkové vybavení, na které se vztahují dodatečné poplatky.
V okolí nemovitosti najdete
Stále hledáte to pravé?
Nastavte si hlídacího psa. Nabídky vybrané na míru dostanete souhrnně 1× denně e-mailem. S Premium profilem máte k ruce hlídačů rovnou 5 a když se něco objeví, informují vás obratem.

















