
Prodej bytu 3+1 • 76 m² bez realitkyStuttgart Botnang Baden-Württemberg 70195
Ahoj,
prodáváme náš krásný třípokojový byt ve Stuttgartu - Botnang. Byt se nachází v klidné vedlejší ulici.
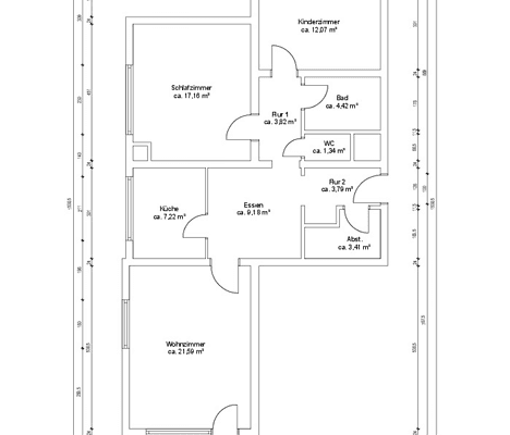
Byt se nachází v suterénu osmipodlažního domu a má rozlohu 76 m², rozdělenou do 3 pokojů.
Menší pokoj (8 m²) momentálně využíváme jako dětský pokoj.
Ložnice o obytné ploše 16,8 m² má dvě okna do zadního dvora, takže je velmi tichá a i s otevřenými okny se v ní dá spát.
Dva radiátory v ložnici byly obnoveny v roce 2025.
Koupelna sice není obrovská – je ale vybavena vanou. Toaleta byla v roce 2025 obnovena.
Obývací/jídelna má celkem šest oken a je velmi světlá a prostorná.
K ní se váže i kuchyňská linka. Kuchyň byla instalována v roce 2021 a prodává se spolu s bytem. Dále může v bytě zůstat i lednice, pokud to bude potřeba.
Osmdesát z deseti oken bytu bylo v roce 2023 vyměněno. Jde o plastová okna s dvojskly. U ložnicových oken, dětského pokoje, malých oken v kuchyni a koupelnového okna jsou navíc instalovány moskytiéry.
V celém bytě se nachází parkety z masivního dřeva.
K domu patří společná zahrada, kterou mohou využívat všichni obyvatelé domu.
Zde se nachází i plocha s venkovním stolem a židlemi, které lze v létě využít při grilování.
Byt se nachází centrálně ve Stuttgartu Botnang, jen pár minut chůze od zastávky MHD Beethovenstraße. Supermarkety, lékárny, lékaři i školky jsou dosažitelné pěšky.
Prodej probíhá soukromě.
Realitním makléřům se neozývejte.
V okolí nemovitosti najdete
Stále hledáte to pravé?
Nastavte si hlídacího psa. Nabídky vybrané na míru dostanete souhrnně 1× denně e-mailem. S Premium profilem máte k ruce hlídačů rovnou 5 a když se něco objeví, informují vás obratem.

















