
Prodej domu • 775 m² bez realitkyDuisburg Hochheide Nordrhein-Westfalen 47198
Duisburg Hochheide Nordrhein-Westfalen 47198MHD 1 minuta pěšky • ParkováníBYTOVÝ A KOMERČNÍ DŮM K PRODEJI JAKO ČÁSTEČNÉ VLASTNICTVÍ, NA LEVÉM NIEDERRHEINU, OD SOUKROMNÍKA.
Uvedená kupní cena 580 tis. € se vztahuje na část bytového a komerčního domu !!!
Tato část je následující: ČÁST 1 (DŮM A / 53)
PATRO: IMBISS / ZMRZLÁRNA / BISTRO cca 160 m² (pronajaté)
– Velká provozní kuchyně, odsávací systém
– WC, vlastní plynové topení (plynová jednotka)
– ISO okna, NOVĚ renovováno
****************************************************************
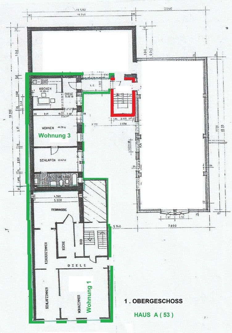
1. PŘÍRUČNÉ PATRO přední části domu (může být při koupi uvolněno)
– 3,5 místnosti, koupelna se sprchou, předsíň, kuchyň, velká terasa cca 80 m²
2. PŘÍRUČNÉ PATRO přední části domu (VOLNÉ)
– 3,5 místnosti, koupelna se sprchou, předsíň, kuchyň cca 65 m²
Oba byty společně disponují vlastním plynovým topením a vlastním vstupem se samostatným schodištěm.
Obě byty mohou být při koupi uvolněny.
****************************************************************
1. PŘÍRUČNÉ PATRO / PŘÍSTAVBA vzadu (pronajaté)
– 2,5 místnosti, koupelna s vanou, předsíň, kuchyň, balkon cca 65 m²
2. PŘÍRUČNÉ PATRO / PŘÍSTAVBA vzadu
– Možnost přestavby cca 55 m²
****************************************************************
SUTÉL / UŽITNÁ PLOCHA: cca 150 m²
Podíl na pozemku: cca 316 m²
Renovováno v roce 1990:
– Nová střecha, nové elektroinstalace, nové plynové topení,
– Nová okna, nová fasáda s přírodní břidlicí a bílým hollandským cihlovým obkladem, nové koupelny a další.
Měsíční nájemné: 2.700 € / ročně 32.400 €
Kupní cena: 580.000 € OD SOUKROMNÍKA / BEZ REALITNÍ KANCELÁŘE
******************************************************************
ČÁST 2 (DŮM B / 53a) Z BYTOVÉHO A KOMERČNÍHO DOMU:
PŘÍZEMÍ – HRACÍ MÍSTNOST cca 210 m² (pronajatá)
(inkl. sklep cca 20 m²)
– WC, přilehlé místnosti, kuchyň, ISO okna, vlastní plynové topení pro přízemí + 1. patro dohromady,
– NOVĚ renovováno
****************************************************************
1. PŘÍRUČNÉ PATRO – KOMERČNÍ PROSTORY cca 190 m² (VOLNÉ)
– WC, přilehlé místnosti, ISO okna,
– 2 VSTUPY
***Původní schodiště mezi přízemím a 1. patrem může být opět obnoveno*** – poté bude k dispozici více než 400 m² komerčních prostorů. V takovém případě 4 vstupy.
**Nebo může být prostor využit jako byt.**
*****************************************************************
2. PŘÍRUČNÉ PATRO / PŮKOP (PODSTROPÍ) cca 55 m²
– Možnost přestavby
*****************************************************************
Podíl na pozemku: cca 316 m²
Rok výstavby: 1990
Měsíční nájemné: 2.700 € / ročně 32.400 €
Kupní cena: 590.000 € OD SOUKROMNÍKA / Bez realitní kanceláře
Centrální poloha
Hlavní ulice
Přímo napojen na obchodní centrum
Dálniční uzel BAB A 40 / 57 je dosažitelný během několika minut.
Prodej z důvodu věku a zdravotních důvodů po desetiletích v soukromém vlastnictví
SOUKROMÝ PRODEJ
Energetický průkaz je zajištěn na základě zakázky, jelikož všechny jednotky mají vlastní plynové topení.
Parametry nemovitosti
| Stáří | Nad 50 let |
|---|---|
| Číslo inzerátu | 988364 |
| Plocha pozemku | 632 m² |
| Cena za jednotku | 748 € / m2 |
| Stav | Dobrý |
|---|---|
| Užitná plocha | 775 m² |
| Celkem podlaží | 2 |
Co tato nemovitost nabízí?
| Balkón | |
| MHD 1 minuta pěšky |
| Sklep | |
| Parkování | |
| Terasa |
V okolí nemovitosti najdete
Stále hledáte to pravé?
Nastavte si hlídacího psa. Nabídky vybrané na míru dostanete souhrnně 1× denně e-mailem. S Premium profilem máte k ruce hlídačů rovnou 5 a když se něco objeví, informují vás obratem.









































