
Prodej domu 4+1 • 127 m² bez realitky, Severní Porýní-Vestfálsko
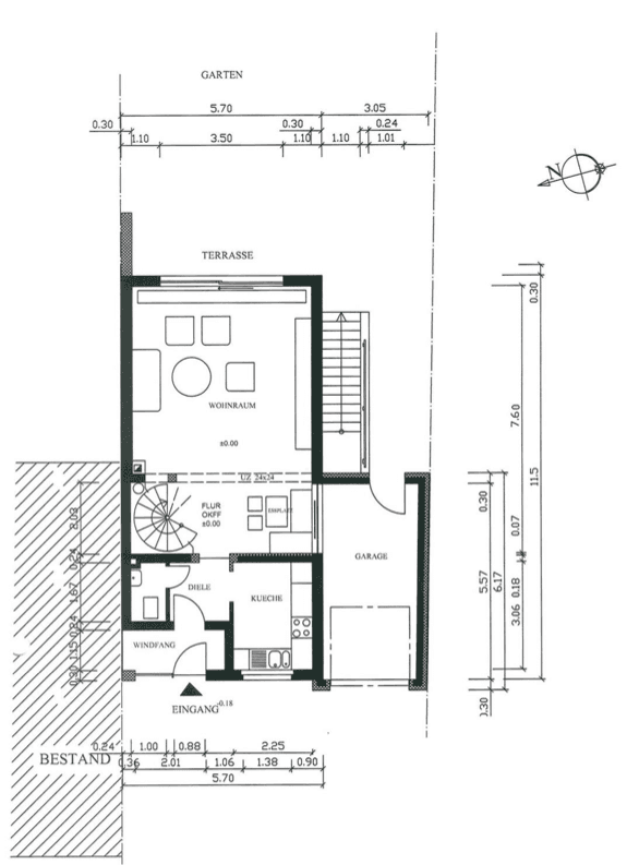
, Severní Porýní-VestfálskoMHD 1 minuta pěšky • Parkování • GarážVstup do vašeho nového domova začíná větrníkem – praktické, když je pes mokrý a boty špinavé. Odtud pokračujete do chodby, odkud vedou hostinský záchod a kuchyně. Tyto prostory jsou obloženy dlaždicemi.
Přímo se dá jít do propojeného obývacího a jídelního prostoru. Tam se nachází masivní dubová parketa a také je k dispozici připojení krbu (na fotografii je vidět krb, který se však neprodává), takže si tak můžete v zimě zařídit další úroveň útulnosti.
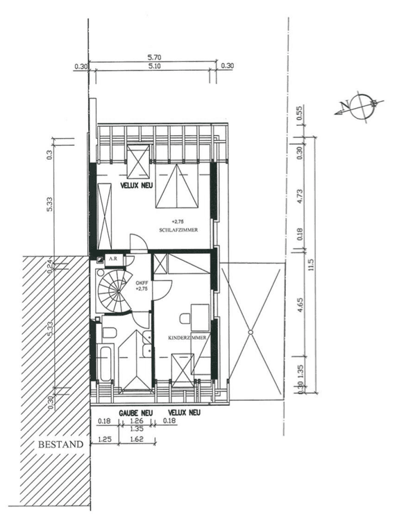
Šikmou (vířivou) chodbou se dostanete do horních pater. V přízemí se nacházejí dvě ložnice, z nichž jedna je velmi prostorná a případně jí lze přepážkou rozdělit na dvě samostatné části. Koupelna byla v roce 2018 kompletně zrekonstruována a vybavena špičkovým materiálem. Bylo zde položeno podlahové topení. I horní patro je vybaveno parketou z masivního dřeva.
Vytříbené podkroví nabízí dostatek místa pro další ložnici nebo domácí kancelář.
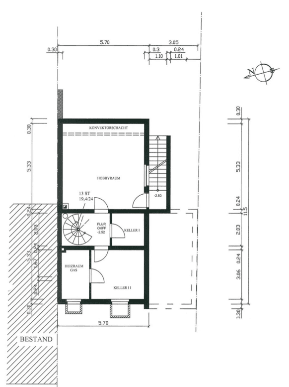
Sklep disponuje velkým prostorem s vlastním vstupem do zahrady, oknem a topením, který využíváme jako druhou kancelář. Jednoduchou stavbou přepážky byl vytvořen další úložný prostor. Kromě toho se ve sklepě nachází i zásobovací místnost, prádelna (včetně sprchy) a malý kotelovna. Připojení pro optické vlákno již bylo zavedeno.
Z obývacího pokoje se dostanete na krytou terasu a do zahrady. Zahrada byla před dvěma lety oddělena plotem od souseda a stále se upravuje – zde je proto spousta místa pro vaše vlastní nápady na zelenou oázu. Zavlažování zajišťuje studna a dalším zajímavým prvkem je rigola – stručně řečeno, snižuje náklady na odvod srážkové vody.
V zahradě se rovněž nachází velký zahradní domek z masivního dřeva, který však potřebuje šikovnou péči. Tento domek patří k tomuto domu. Jelikož se nachází přímo na nové hranici pozemku, dostal soused dobrovolně malý koutek jako úložný prostor. Ze zahrady se dá vstoupit i do garáže.
Před domem jsou čtyři parkovací místa. Už žádné obtěžující hledání parkoviště – dokonce i obytné auto by se sem vešlo.
Kdo zná Neuss, ví o přednostech oblíbené čtvrti Reuschenberg.
Dopravní spojení:
– Přímé napojení na dálnice A57 a A46.
– Dobré spojení s veřejnou dopravou: autobusové a vlakové linky jsou dosažitelné pěšky.
Rozvoj čtvrti:
Reuschenberg prochází změnami:
• Stále více mladých rodin se stěhuje do této čtvrti.
• Mnoho domů se modernizuje.
• Všechna věková skupina zde žijí společně.
Nákupní možnosti:
• Obchody s běžnými potřebami jsou dosažitelné pěšky.
• Za pár minut jízdy dosáhnete velkých obchodních řetězců.
• Centrum Neuss je vzdálené přibližně deset minut, Rheinpark-Center asi deset autominut.
Vzdělávací a pečovatelské nabídky (pro rodiny):
• V čtvrti se nacházejí dvě jesle a dvě základní školy.
• Přes dálnici rychle (jen krátká „hopser“) do Pomony, kde jsou další jesle a střední školy.
Volnočasové aktivity pro děti:
• Dětská farma Selikum (v docházkové vzdálenosti).
• Bazén, ledová hala a četná dětská hřiště v bezprostřední blízkosti.
• Reuschenberger Busch zve ke společným procházkám.
Volnočasové aktivity pro dospělé:
Oblíbený saunový wellness komplex WellNeuss (u Reuschenberger jezera) je dostupný během několika minut.
Lokalita domu:
• Dům se nachází v tiché uličce na Lupinenstraße bez průjezdu, což je ideální, aby si děti mohly bezpečně hrát na ulici.
• Náš pes si pravidelně užívá večerní slunce před domem.
Celkově lokalita nabízí nejen optimální infrastrukturu, ale také živé prostředí pro rodiny, páry a milovníky zvířat.
Stručně a výstižně:
• Nejde o novostavbu, ale o již osvědčený a solidně postavený dům.
• Většina plánovaných prací je kosmetického rázu (malování, drobné úpravy).
• Kdo chce investovat více, může objekt samozřejmě dále podle vlastních představ modernizovat.
Proč jsme si dům zamilovali:
• Nastěhování a pohodlí: Dům se dá s minimálním úsilím ihned nastěhovat – základní kostra domova je již připravena a nabízí útulné prostředí.
• Komfort podle ročních období: V zimě si můžete zapálit krb, v létě si pak užívat slunce na zahradě.
Renovace a modernizace:
• Veškeré změny lze provádět při běžném provozu domu, jakmile se s ním člověk sžije. Můžete se tedy nejprve nastěhovat a poté rozhodnout, co chcete upravit.
• Poslední energetická rekonstrukce proběhla v roce 2003.
• Obnova horní koupelny proběhla v roce 2018.
Tímto dům nabízí nejen solidní základ, ale také možnost jej dle vlastního vkusu vylepšit – a to bez nutnosti složitých prací spojených s novostavbou.
Jedná se o řadový dům umístěný mírně posunutě na konci řady. K tomu příslušný pozemek je dle společenství vlastníků jednotně rozdělen – toto rozdělení je notářsky potvrzené.
Reálné rozdělení pozemku by mohlo okamžitě zvýšit jeho hodnotu. Tento krok jsme si však vědomě neudělali, protože by bylo nutné zbourat zahradní domek, který se nachází přesně na hranici.
Máte-li zájem:
• Prohlídka: Pokud vás dům zaujal, prosím kontaktujte nás, domluvíme si termín prohlídky.
• Kvůli karnevalovým dnům zahájíme prohlídky od 20. února.
• Další postup: Všechny další kroky probíhají po osobní domluvě.
Těšíme se na vaši zprávu!
V okolí nemovitosti najdete
Stále hledáte to pravé?
Nastavte si hlídacího psa. Nabídky vybrané na míru dostanete souhrnně 1× denně e-mailem. S Premium profilem máte k ruce hlídačů rovnou 5 a když se něco objeví, informují vás obratem.































