
Pronájem bytu 2+1 • 79 m² bez realitkyKrefelder Str. 10 Köln Innenstadt Nordrhein-Westfalen 50670
Krefelder Str. 10 Köln Innenstadt Nordrhein-Westfalen 50670MHD do minuty pěškyModernizovaný, světlý a energeticky úsporný 2+kk byt s elegantně zařízenou kuchyní a 20 m² slunnou terasou, který se nachází v klidné, ale přitom velmi centrální části vyhledávaného kolínského Agnesviertelu.
Byt se nachází ve velmi udržovaném čtyřpodlažním domě (postaveném v roce 2002) s nízkými energetickými náklady a dobrou klimatickou bilancí (připojení do dálkového vytápění).
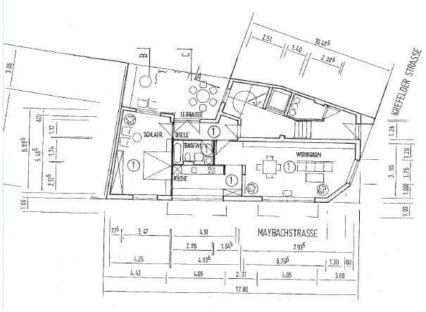
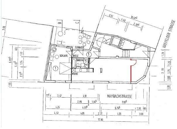
V současnosti je byt rozdělen na 2 pokoje. Na žádost může pronajímatel v obývacím pokoji vyčlenit další místnost, takže byt by bylo možné využít i jako 3+kk.
Byt se nachází velmi centrálně v oblíbeném Agnesviertelu, v docházkové vzdálenosti od zastávky Hansaring (ovšem bez hlučných vlaků!), což z něj dělá také vynikající volbu pro dojíždějící. Pěšky se dostanete k několika restauracím, kavárnám, supermarketům, pekárnám a lékařům. Jen asi minutu pěšky od bytu se nachází jedna z nejoblíbenějších italských restaurací v Kolíně. Dále jsou v okolí rozličné zelené plochy a parky, bary, módní butiky, fitness centra a knihkupectví. Přestože je byt centrálně umístěn, je velmi tichý – nabízí totiž ložnici s výhledem do vnitřního dvora a velkou terasu rovněž směřující do vnitřního dvora.
Dopravní dostupnost je ideální. V docházkové vzdálenosti se nachází zastávka S-Bahn Hansaring od Deutsche Bahn s četnými linkami S-Bahn a regionálních vlaků, dále nedaleké linky KVB 12, 15, 16 a 18 a mnoho autobusových linek. Hlavní nádraží v Kolíně je dosažitelné pěšky za cca 10 minut a automobilovou dopravou se za 2 minuty dostanete k Zoobrücke a přilehlým dálnicím.
Byt nabízí vše, po čem si můžete přát:
• Kompletní modernizaci bytu
• Vysoce kvalitní vybavení s dřevěnými podlahami a podlahovým vytápěním v celém bytě, zrekonstruovanou koupelnou s vanou
• 20 m² terasu, klidně situovanou ve vnitřním dvoře, pro výlučné užívání
• Velmi hezkou vestavěnou kuchyň s moderními spotřebiči (již zahrnuta v nájmu)
• Vlastní sklep přístupný výtahem a velkou společnou místnost pro kola, kočárky atd.
• Velmi příjemné sousedství
• Ideální dostupnost MHD, restaurací a všech nákupních možností
• Nízké náklady na vytápění díky podlahovému vytápění, moderní stavbě (2002) a připojení do dálkového vytápění
• Rychlý internet (až do 1 000 Mbit/s), ideální pro home office
• Další lákadlo představuje fasádu domu, kterou znovu vytvořil renomovaný kolínský umělec
Byt je pronajímán soukromým vlastníkem, není zde tedy účtováno žádné makléřské provize.
Byt bude k dispozici od 1. 3. 2026, přičemž je možný i pozdější termín nastěhování.
Podlahová plocha: cca 79 m²
Základní nájem: 1.650,00 EUR
Provozní náklady: 195,00 EUR
Náklady na vytápění: 130,00 EUR
Celkový nájem: 1.975,00 EUR
Velice rádi s Vámi dohodneme co nejdřívější termín prohlídky, například 11. 2. 2026 nebo 13. 2. 2026. Těšíme se na Váš zájem.
V okolí nemovitosti najdete
Stále hledáte to pravé?
Nastavte si hlídacího psa. Nabídky vybrané na míru dostanete souhrnně 1× denně e-mailem. S Premium profilem máte k ruce hlídačů rovnou 5 a když se něco objeví, informují vás obratem.













