
Prodej bytu 2+1 • 49 m² bez realitkyArnethgasse 63 Wien 16. Bezirk Wien 1160
Arnethgasse 63 Wien 16. Bezirk Wien 1160MHD 2 minuty pěšky • VýtahByt se aktuálně nachází v rekonstrukci a bude dokončen v dubnu. Všechny fotografie pocházejí z již dokončeného bytu se stejným vybavením a přibližně podobným dispozicím.
Byt zaujme uceleným konceptem vybavení, moderní technikou a funkčním rozložením prostoru.
V rámci celkové rekonstrukce budou kompletně obnovena všechna rozvody (elektroinstalace a instalatérství), budou instalovány nové vnitřní dveře a nově vytvořená stylově obložená koupelna s oddělenou toaletou – obě prostory jsou vybaveny moderními dlaždicemi z jemného kamene o rozměrech 30 × 60 cm.
Obývací místnosti se pyšní elegantní podlahou z venkovských dřevěných prken, která vytváří teplou a útulnou atmosféru. Nová trojitě zasklená okna a moderní LED stropní osvětlení v předsíni, kuchyni a koupelně dokonale doplňují promyšlené interiérové řešení.
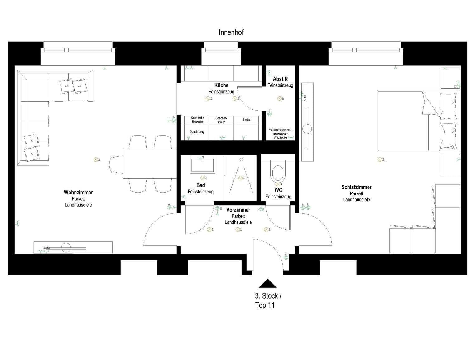
Dispozice bytu je přehledně strukturovaná: Pokoje jsou centrálně přístupné z vstupní haly. Odtud se dostanete přímo do ložnice, obývacího pokoje, koupelny a toalety. Kuchyni je navíc připojena skladovací místnost s připojením pro pračku, což poskytuje dodatečný úložný prostor.
I praktická stránka bytu vás přesvědčí: K bytu náleží prostorná sklepní komora pro další úložné prostory.
Kuchyně je vybavena všemi potřebnými přípojkami, takže si můžete svůj kuchyňský prostor přizpůsobit podle vlastních představ. Na přání může být k dispozici návrh kuchyně.
Nemovitost na Arnethgasse č. 63 vyniká výborným spojením s veřejnou dopravou: V pěší vzdálenosti naleznete několik prostředků veřejné dopravy, které zajišťují přímý přístup do centra města i do dalších částí.
Dopravní spojení:
• V přibližně 150 metrech se nachází tramvajová zastávka „Redtenbachergasse“, ze které se dostanete přímo do centra (Schottentor).
• S autobusovými linkami 46A a 46B se rychle dostanete do nedaleké rekreační oblasti Wilheminenberg.
• Stanice metra a rychlovlaku Ottakring je vzdálena jen několik minut chůze (cca 500 m). Za 7 minut jízdy se dostanete do Bahnhofcity WienWest a na nákupní ulici Mariahilferstraße.
Nakupování v okolí:
• Jen pár minut chůze vás dělí od Ottakringer Straße a Thaliastraße, jedné z nejoblíbenějších ulic pro každodenní nákupy v 16. okrese, kde naleznete rozmanitou nabídku obchodů.
Rekreační oblast Ottakringer Wald:
• Bezprostředně v okolí bytu se nachází řada zelených oáz, jako například Ottakringer Wald s rozsáhlou sítí tras, a také přístup k městské turistické trase č. 4. Tato oblast nabízí řadu dětských hřišť, grilovacích míst a zajímavých lokalit, jako je zámek Wilhelminenberg či Jubileewarte.
Další vybavení:
• HARO parketová podlaha z dubového dřeva v designu venkovských dřevěných prken
• Moderní keramický kámen v koupelně, toaletě, kuchyni a skladovací místnosti
• Stropní osvětlení s LED-SPOUTY v předsíni, koupelně a kuchyni
• Nová trojitě zasklená okna
• LAUFEN Pro značková sanitární keramika
• Sprchový systém od Grohe s termostatem, dešťovou sprchou a ruční sprchou
• Moderní LAUFEN Pro sprchový vaniček
• Dveřní sklo se speciální nanovrstvou a bezpečnostním sklem (ESG)
• Vypínače, zásuvky a síťové zásuvky od společnosti Berker
MNPV GmbH
Prodej a nákup nemovitostí,
Pronájem a poradenství v oblasti nemovitostí
FN 649248b
Obchodní soud: Obchodní soud ve Vídni
E-mailový kontakt: office (at) mnpv.at
V okolí nemovitosti najdete
Stále hledáte to pravé?
Nastavte si hlídacího psa. Nabídky vybrané na míru dostanete souhrnně 1× denně e-mailem. S Premium profilem máte k ruce hlídačů rovnou 5 a když se něco objeví, informují vás obratem.





















