
Prodej bytu 3+kk • 98 m² bez realitkyLudwig-Feuerbach-Straße 43 Nürnberg Wöhrd Bayern 90489
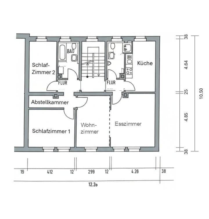
Diese helle und gut geschnittene 3,5-Zimmer-Wohnung mit ca. 98 m² Wohnfläche befindet sich im 3. Obergeschoss eines gepflegten Mehrfamilienhauses im beliebten Nürnberger Stadtteil Schoppershof.
Tento světlý a prostorně dispozičně řešený byt s 3,5 pokoji a přibližně 98 m² obytné plochy se nachází ve 3. podlaží udržovaného bytového domu v oblíbené norimberské čtvrti Schoppershof.
Die Wohnung überzeugt durch einen großzügigen Grundriss, zwei Badezimmer und einen Wohn-/Essbereich mit viel Tageslicht – ideal für Paare, Familien oder Anleger.
Byt zaujme velkorysým dispozicím, dvěma koupelnami a obývací/jídelnou s dostatkem denního světla – ideální pro páry, rodiny nebo investory.
Es handelt sich um einen Privatverkauf ohne Maklerprovision.
Jedná se o soukromý prodej bez makléřské provize.
Ausstattung & Aufteilung
Vybavení a uspořádání
- Großzügiges Wohn- und Esszimmer
Prostorná obývací/jídelna
- Zwei Schlafzimmer
Dvě ložnice
- Küche mit angrenzendem, 2018 saniertem Badezimmer
Kuchyň se sousedící koupelnou, zrekonstruovanou v roce 2018
- Zweites Badezimmer
Druhá koupelna
- Holzdielenboden
Dřevěná podlaha
- Neuer Gas-Etagenheizkessel aus 11/2018
Nová plynová kotelna (umístěná v bytě) z listopadu 2018
- Fenster der Südseite 2015 erneuert, alle mit Rollläden
Jižní okna z roku 2015 renovována, všechna vybavena rolety
- Kellerabteil zur Wohnung zugehörig
Sklepní kóje přidružená k bytu
- Einbauküche mit Elektrogeräten
Vestavěná kuchyňská linka s elektrospotřebiči
- Planungen für Balkonanbau liegen vor
Jsou k dispozici plány na přístavbu balkonu
Die Wohnung wurde seit 2016 vom Eigentümer selbst genutzt und steht ab dem 1. April 2026 zur Verfügung.
Byt je vlastněn a užíván majitelem od roku 2016 a bude k dispozici od 1. dubna 2026.
Nürnberg-Schoppershof: ruhig, zentral und hervorragend angebunden
Norimberk-Schoppershof: klidné, centrální a výborně dostupné
Der Stadtteil Schoppershof gehört zu den begehrten Wohnlagen östlich der Nürnberger Altstadt.
Čtvrť Schoppershof patří k žádaným rezidenčním oblastem východně od norimberského starého města.
Er verbindet eine ruhige, grüne Umgebung mit einer hervorragenden Infrastruktur und idealer Anbindung.
Spojuje klidné, zelené okolí s výbornou infrastrukturou a ideální dopravní dostupností.
Vorteile der Lage:
Výhody polohy:
Zentrumsnah: ca. 10 Minuten mit dem Fahrrad oder ÖPNV in die Nürnberger Innenstadt
Blízkost centra: přibližně 10 minut na kole nebo MHD do centra Norimberku
Sehr gute ÖPNV-Anbindung: Straßenbahn (Deichslerstraße) und U-Bahn (Rennweg) in wenigen Minuten erreichbar
Výborné spojení MHD: tramvaj (Deichslerstraße) a metro (Rennweg) jsou dosažitelné během několika minut
Nähe zur Natur: Der Wöhrder See und weitläufige Grünflächen wie der Stadtpark und der Rechenbergpark liegen praktisch vor der Haustüre – perfekt für Spaziergänge, Jogging oder Erholung am Wasser
Blízkost přírody: jezero Wöhrder a rozlehlé zelené plochy jako městský park a park Rechenberg se nachází prakticky přímo před dveřmi – ideální pro procházky, jogging nebo odpočinek u vody
Einkaufsmöglichkeiten: Supermärkte, Bäckereien, Apotheken und Cafés befinden sich in direkter Umgebung
Obchodní vybavenost: supermarkety, pekárny, lékárny a kavárny se nacházejí v bezprostředním okolí
Familienfreundlich: Schulen, Kitas und Spielplätze befinden sich im nahen Umfeld. Der Fenitzerplatz und der Mammutspielplatz sowie AKI sind nur einen Katzensprung entfernt.
Přátelské k rodinám: školy, mateřské školy a dětská hřiště se nacházejí v těsné blízkosti. Fenitzerplatz, Mammutspielplatz a AKI jsou jen kousek odtud.
Ärztepraxis im Haus schräg gegenüber gut erreichbar.
Lékařská ordinace v domě naproti je snadno dostupná.
Beliebte Wohngegend: Ruhige Seitenstraßen, grünes Umfeld und eine angenehme Nachbarschaft prägen den Charakter von Schoppershof.
Oblíbená rezidenční oblast: Klidné vedlejší ulice, zelené okolí a příjemné sousedství vymezují charakter Schoppershofu.
Die Kombination aus zentraler Lage, hoher Lebensqualität und guter Infrastruktur macht diese Wohnung sowohl für Eigennutzer als auch für Kapitalanleger äußerst attraktiv.
Kombinace centrální polohy, vysoké kvality života a dobré infrastruktury činí tento byt mimořádně atraktivním jak pro vlastní bydlení, tak pro investory.
V okolí nemovitosti najdete
Stále hledáte to pravé?
Nastavte si hlídacího psa. Nabídky vybrané na míru dostanete souhrnně 1× denně e-mailem. S Premium profilem máte k ruce hlídačů rovnou 5 a když se něco objeví, informují vás obratem.















