
Prodej bytu 2+1 • 60 m² bez realitkyBoschetsrieder Str. 63 München Obersendling Bayern 81379
Boschetsrieder Str. 63 München Obersendling Bayern 81379Výtah • Parkování • GarážVítejte ve vašem stylově zmodernizovaném 2-pokojovém bytě v žádané mnichovské čtvrti Thalkirchen!
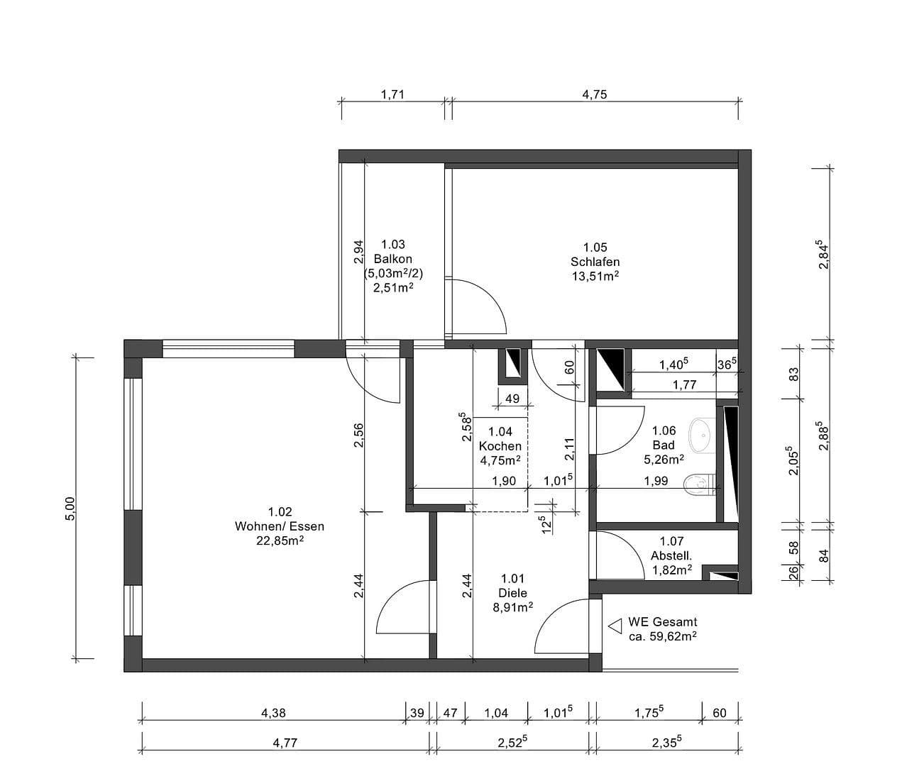
Tato nadčasová nemovitost z 90. let se nachází ve 2. nadzemním podlaží velmi udržované obytné budovy a přesvědčí vás harmonickou kombinací komfortu, světla a městské kvality života.
Již při vstupu cítíte příjemnou atmosféru domova: velká okna až ke podlaze v obývacím pokoji vytvářejí ohromně světlé prostředí a dodávají bytu otevřený a přátelský pocit.
Zvláštní atrakci představuje zcela nově zrekonstruovaná koupelna, která okouzlí nejen svými kvalitními armaturami a moderním vybavením, ale také poskytne maximální komfort.
Okolí mluví samo za sebe: Tichá a přesto centrálně situovaná obytná budova se pyšní špičkovou infrastrukturou. Pouhých asi 5 minut chůze vás dovede k metru, čímž je centrum Mnichova dostupné rychle a pohodlně.
Osobní výtah vás pohodlně doveze přímo z přidruženého parkovacího místa v podzemní garáži až ke dveřím bytu. K dispozici je také samostatná sklepní místnost.
Byt je aktuálně spolehlivě pronajímán a dosahuje měsíčního nájemného 1.760 €, což jej činí velmi atraktivním pro investory.
Lokalita – Městsky propojeno, zasazeno do zeleně
Ulice Boschetsriederstraße patří mezi nejvyhledávanější rezidenční adresy jižního Mnichova – a výjimečně spojuje městskou dynamiku s příjemným klidem.
Jedním z klíčových kvalit této lokality je chráněný, zeleně upravený vnitřní dvůr, který obyvatelům nabízí soukromé útočiště. Vzniká zde pocit bydlení, který se v Mnichově stává stále vzácnějším: uvolněný, klidný a přesto přímo u dění.
Výborná dopravní dostupnost
Stanice metra a S-Bahn jsou dosažitelné během několika minut chůze a zajišťují rychlé, přímé spojení do centra Mnichova i do celého města. I autem máte výhodu – optimální dostupnost k prostřednímu okruhu a okolním dálnicím.
Nejlepší infrastruktura v bezprostředním okolí
Blízké občanské vybavení je komfortní a různorodé:
Supermarkety, pekárny, lékárny a další obchody se nacházejí v bezprostřední blízkosti. Nabídku doplňuje atraktivní výběr restaurací, kaváren a místních trhů, které dodávají čtvrti živost a autentičnost.
Kvalita života pro všechny generace
Kombinace zelených útočišť, ustáleného sousedství a městské infrastruktury činí z Boschetsriederstraße prvotřídní rezidenční lokalitu pro všechny věkové skupiny – ať už pro vlastní bydlení nebo pro investory.
Velkorysá okna až ke podlaze v obývacím pokoji
Pro mimořádně světlou atmosféru s velkým množstvím denního světla a otevřeným pocitem prostoru.
Slunný balkon s vchodem z obývacího či ložnice
Ideální pro relaxaci venku – flexibilně využitelný a harmonicky začleněný do konceptu bydlení.
Plynové centrální topení s klasickými radiátory
Efektivní a osvědčená topná technika se spolehlivým zdrojem tepla.
Laminátová podlaha ve vzhledu kvalitního parketu
Snadno udržovatelná, odolná a vizuálně atraktivní – spojuje estetiku s praktickostí.
Moderní sprchová koupelna s WC
Funkční a současně navržená – přehledně strukturovaná a pohodlná na využití.
Integrovaná vestavěná kuchyň
Harmonicky začleněná do obytného prostoru – ideální pro společenské bydlení a optimální využití prostoru.
Osobní výtah s přímým přístupem do podzemní garáže
Pohodlné dosažení bytu – bez bariér a usnadnění každodenního života.
Duplexní parkovací místo v podzemní garáži
Chráněné parkování v budově – obzvlášť v Mnichově představuje významnou výhodu místa a hodnoty (plus 19.500 EUR).
V okolí nemovitosti najdete
Stále hledáte to pravé?
Nastavte si hlídacího psa. Nabídky vybrané na míru dostanete souhrnně 1× denně e-mailem. S Premium profilem máte k ruce hlídačů rovnou 5 a když se něco objeví, informují vás obratem.


















