
Prodej bytu 1+kk • 44 m² bez realitkyMünchen Berg am Laim Bayern 81673
München Berg am Laim Bayern 81673MHD 1 minuta pěškyTento světlý a šikovně rozdělený byt je skvěle pronajatý a k okamžitému odkupu.
Klíčové údaje o bytě:
• Rok výstavby: 1966
• 1. patro
• 44 m²
• Měsíční poplatky: 214 €
• Centrální topení
• Krátká cesta k zastávce metra „Josephsburgstrasse“ (U2)
• Balkon k dispozici
• Žaluzie na oknech a balkonových dveřích
• Velká sklepní místnost
• Kuchyň renovována v roce 2023 – granitová pracovní deska včetně zpětné stěny
• Parkety renovovány v roce 2023 – dubové dřevo
• Přípojka pro pračku v koupelně nebo minipráčka v domě
• Energetický štítek je k dispozici při prohlídce
Byt je velmi dobře pronajatý.
Čistý výnos činí 4,9 %.
Byt se nachází v Munichu na východě, čtvrť Berg am Laim.
Byt je klidný, protože balkon směřuje do malé boční uličky.
Zastávka metra „Josephsburg“ (U2) a zastávka metra „Kreillerstrasse“ (U2) jsou vzdáleny cca 6 minut chůze. V blízkosti jezdí autobusové a tramvajové linky 187, 21 a N19. Do Marienplatz / hlavního nádraží (centrum města) vás U2 doveze za 10 minut. Metro jezdí každých 5–10 minut, v závislosti na denní době.
Obchodní možnosti:
Supermarkety, banky a obchody se nachází přímo v bezprostřední blízkosti bytu. Dále máte k dispozici pekárny, lékaře, restaurace, supermarkety a dvě kavárny. Také fitness centra, čistírny, dva fyzioterapeuty a knihovnu.
Školy a mateřské školy:
Školy a mateřské školy se nachází přímo v okolí bytu.
Volnočasové aktivity:
Pěšky dosažitelný je Ostpark s pivní zahrádkou „Michaelibad“, který se nachází přímo u malého jezera. V bezprostřední blízkosti jsou také venkovní bazén a krytý bazén (Michaelibad).
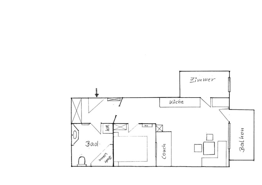
Rozložení bytu:
Obytná plocha cca 44 m² okouzlí funkčním a dobře promyšleným dispozicí.
Přes vstupní halu s prostornou vestavěnou skříní a šatní skříní vstoupíte do bytu.
Velký, světlý obývací pokoj zahrnuje kuchyň, jídelní stůl se židlemi a pohovku, rovněž televizní přípojku. Je středobodem bytu a nabízí přístup na balkon.
K dispozici je samostatná místnost s oknem, která slouží jako ložnice pro jednolůžkovou či dvoulůžkovou postel, rovněž s televizní přípojkou.
Další místnost s oknem může sloužit pro dítě nebo jako kancelář.
Koupelna je vybavena vanou, WC a umyvadlem. Je zde také ručníkovač a přípojka pro pračku.
K bytu náleží velká sklepní místnost.
Byt je prodáván zařízený.
Byt je prodáván bez realitní kanceláře – na dotazy od makléřů neodpovídáme!
Vezměte prosím na vědomí, že i přes ověření údajů, fotografií a informací nemůžeme převzít odpovědnost za přesnost uvedených údajů. Mohou se vyskytnout i chyby.
Prosíme také o pochopení, že dokumenty zasíláme pouze zájemcům, kteří nám poskytnou své kompletní kontaktní údaje (jméno, adresa, telefonní číslo a e-mailová adresa) a kteří si byt prohlédli.
V okolí nemovitosti najdete


Prodej bytuConstanze-Hallgarten-Straße 12 München Obersendling Bayern 81379- 1+1
- 36 m²
359 900 € + 147 €


Stále hledáte to pravé?
Nastavte si hlídacího psa. Nabídky vybrané na míru dostanete souhrnně 1× denně e-mailem. S Premium profilem máte k ruce hlídačů rovnou 5 a když se něco objeví, informují vás obratem.













