
Prodej domu • 400 m² bez realitky, Hessen
, HessenMHD 1 minuta pěšky • Výtah • ParkováníTento udržovaný bytový dům z roku 1998 zaujme svou atraktivní polohou přímo v srdci Langen, v samotném (pěším) centru. Všechny obchody denní potřeby, restaurace, kavárny i veřejná doprava jsou dosažitelné pěšky.
Budova nabízí celkem cca 275 m² obytné plochy a cca 130 m² komerční plochy v přízemí a prvním patře. Dům proto zahrnuje čtyři bytové jednotky a jednu komerční jednotku (restauraci). Objekt je plně obsazený, a tudíž představuje solidní investici. Roční čistý nájem činí cca 54 240 €.
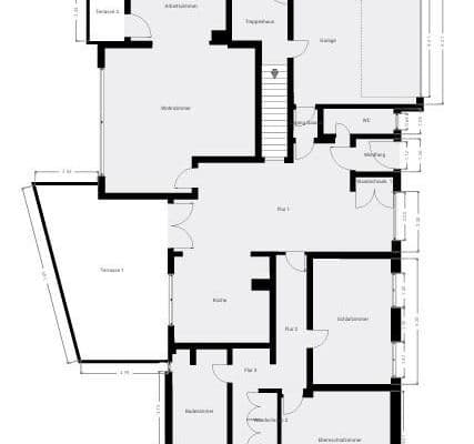
Bytový dům se skládá ze dvou prostorných 4-pokojových bytů, každý o přibližně 85 m² obytné plochy, a ze dvou prakticky řešených 2-pokojových bytů, každý o přibližně 52–54 m² obytné plochy. Všechny byty jsou vybaveny dlažbou a podlahovým vytápěním. Obytné prostory jsou světlé a moderně navržené s okny orientovanými na jih. Komerční jednotka (restaurace) rozprostřená v přízemí a prvním patře má přibližně 130 m² užitné plochy. Na dvou úrovních se zde nachází jídelny, dvě kuchyně, toalety a odpočinková místnost. Slunná venkovní terasa doplňuje nabídku.
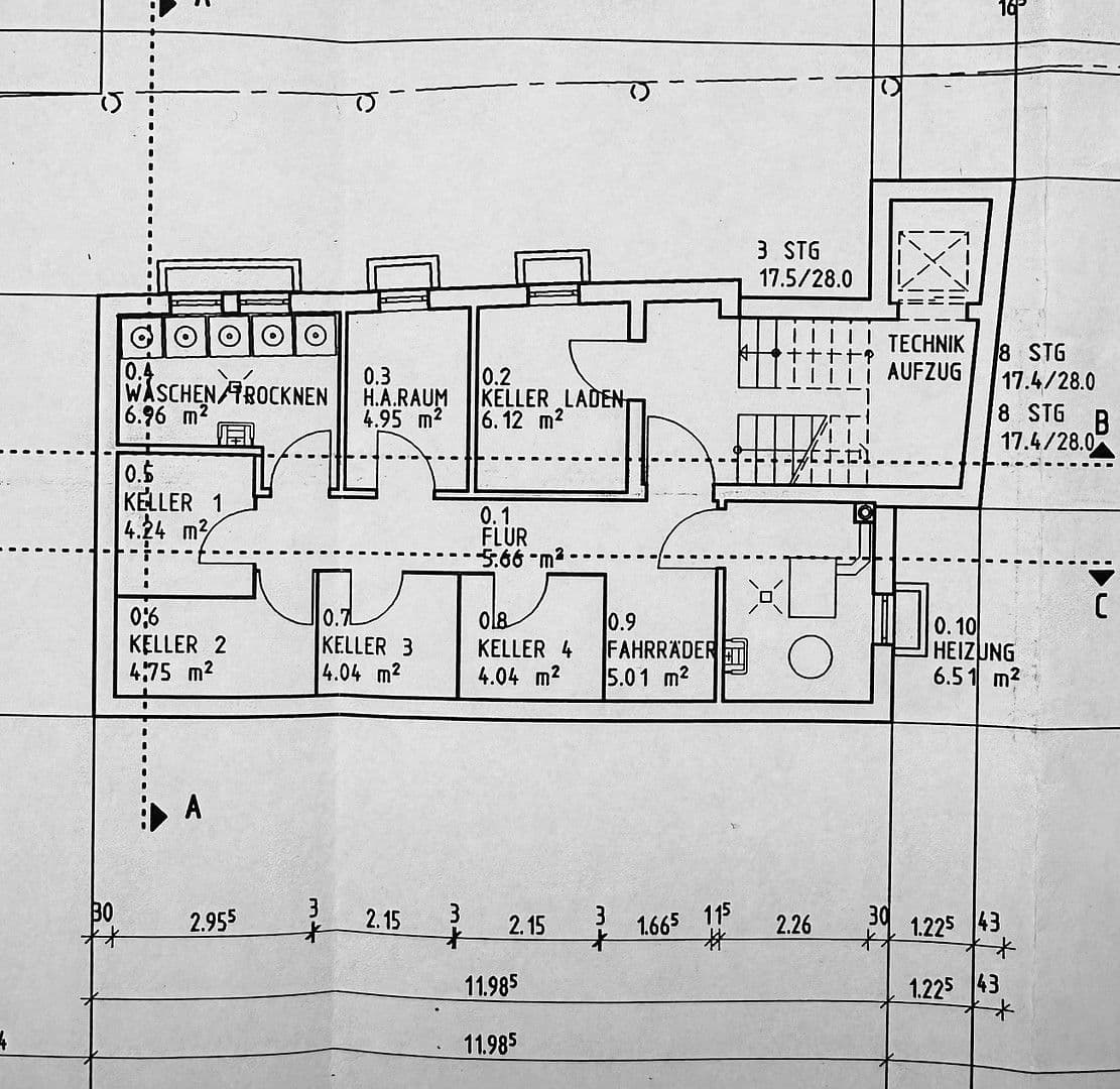
Každá bytová jednotka disponuje vlastním sklepním kójem a venkovními parkovacími místy přímo u domu.
• Centrální poloha v centru Langen
• Přímo v (pěším) centru
• Veškeré obchody, lékaři, školy a gastronomie v bezprostřední blízkosti
• Velmi dobré dopravní spojení do Frankfurtu, Darmstadtu a Offenbachu
• Výtah – všechna patra jsou pohodlně dostupná (včetně přístupu do polo-patra)
• Podlahové vytápění ve všech jednotkách
• Plynové centrální topení (rok výstavby 2005)
• Moderní, světlé dispozice – ideální pro samostatné obyvatele, páry a rodiny
• Udržovaný celkový stav
Parametry nemovitosti
| Stáří | Nad 50 let |
|---|---|
| Číslo inzerátu | 958019 |
| Užitná plocha | 400 m² |
| Celkem podlaží | 5 |
| Stav | Dobrý |
|---|---|
| PENB | E - Nehospodárná |
| Plocha pozemku | 259 m² |
| Cena za jednotku | 3 375 € / m2 |
Co tato nemovitost nabízí?
| Sklep | |
| Výtah | |
| MHD 1 minuta pěšky |
| Parkování |
V okolí nemovitosti najdete
Stále hledáte to pravé?
Nastavte si hlídacího psa. Nabídky vybrané na míru dostanete souhrnně 1× denně e-mailem. S Premium profilem máte k ruce hlídačů rovnou 5 a když se něco objeví, informují vás obratem.






























