
Prodej bytu 2+1 • 56 m² bez realitkyBloch-Bauer-Promenade 30 Wien 10. Bezirk Wien 1100
2-pokojový investiční byt s balkonem – novostavba 2018, pronajatý, Helmut-Zilk-Park, poblíž hlavního nádraží – bez provize
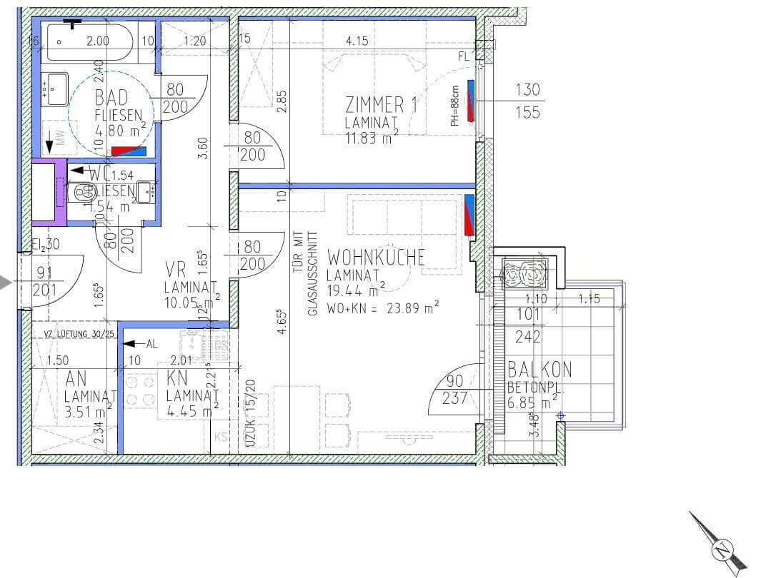
Světlý 2-pokojový byt (55,6 m² + 6,5 m² balkon) v 5. patře s výtahem, orientován na jihovýchod. Moderní novostavba z roku 2018, ve velmi dobrém stavu, plně vybavená kuchyně, koupelna s vanou a přípojkou na pračku, úložný koutek, sklep, dálkové vytápění, soukromé hřiště pro obytný dům.
Skvělá poloha v Helmut-Zilk-Park (Sonnwendviertel), v bezprostřední blízkosti hlavního nádraží
Všechny každodenní potřeby do několika minut:
- Supermarket
- Trafika
- Restaurace
- Pekárny
- Mateřské školy a školy
- Zdravotní péče a další
Veřejná doprava:
- Tramvaj D – cca 3 minuty chůze
- Tramvaje 11 a 6 – cca 6 minut chůze
- Autobus 14A – cca 5 minut chůze
- Hlavní nádraží – cca 10 minut chůze (U1, regionální expres, S-Bahn)
Poloha patří k nejlepším lokalitám pro pronájem ve Vídni – ideální pro spolehlivou obsazenost a nízké riziko prázdných bytů.
- 2 pokoje, 55,6 m² obytné plochy, 6,5 m² balkon
- Orientace na jihovýchod – světlý a klidný
- Moderní novostavba (2018)
- Ve velmi dobrém stavu
- Plně vybavená kuchyně
- Koupelna s vanou, toaletou a přípojkou na pračku
- Úložný koutek + sklep
- Dálkové vytápění a izolační okna
Moderní, světlý a vynikající investiční 2-pokojový novostavbový byt s balkonem, ideální pro investory, kteří si cení následujícího:
- Bezpečnost
- Okamžitý výnos
- Novostavba 2018
- Skvělá poloha
Perfektní pro investory:
- Pronajatý – nájem €715,39 (čisté, od 01.2026 se zvýší na €751,12) / měsíc (smlouva na 3 roky, vyprší 11.2026)
- Okamžité příjmy, žádné riziko volných bytů
- Novostavba = nízké náklady na údržbu
- Bez provize přímo od majitele
PROSÍM ŽÁDNÉ POŽADAVKY PRO REALITNÍ AGENTURY!
V okolí nemovitosti najdete
Stále hledáte to pravé?
Nastavte si hlídacího psa. Nabídky vybrané na míru dostanete souhrnně 1× denně e-mailem. S Premium profilem máte k ruce hlídačů rovnou 5 a když se něco objeví, informují vás obratem.














