
Prodej bytu 4+1 • 111 m² bez realitkyBerlin Friedenau Berlin 12161
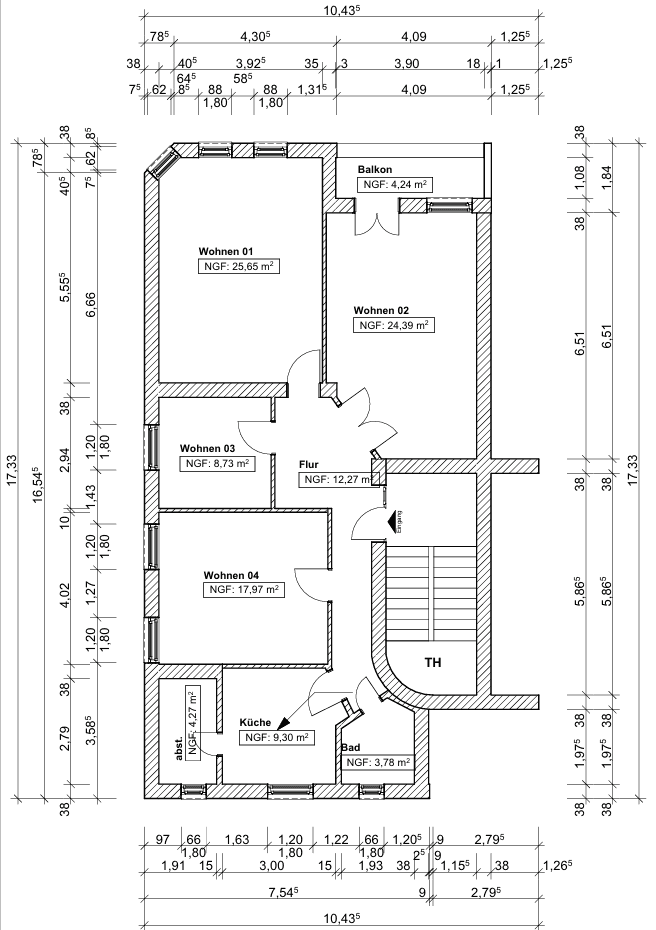
Tento klasický klenot staré výstavby se nachází v reprezentativním bytovém domě z roku 1910 s bohatě členěnou sádrovou fasádou, výklenkovým/tourovým prvkem a malou předzahrádkou. Dům je udržovaný; vstupní hala a schodiště si zachovávají krásné historické detaily, jako dekorativní vazby, dřevěná zábradlí a zdobená okna. Byt o rozloze přibližně 110,6 m² se skládá ze čtyř pokojů, kuchyně a sprchové koupelny s denním světlem. Balkon rozšiřuje obytný prostor ven. Původní vybavení, jako jsou dvojitá okna s dřevěným rámem, parkety/dřevěné podlahy a sádrové detaily, podtrhuje kouzlo celého bytu. Topení je zajištěno pomocí plynového podlahového topení a k dispozici je také interkom. Celkově je budova udržovaná; volný k nastěhování byt byl již zmodernizován, nicméně podle individuálních požadavků může vyžadovat další renovaci. Tím nabízí atraktivní možnosti pro uživatele i investory a zároveň vyhlídku na zhodnocení hodnoty prostřednictvím vkusné úpravy. Klasická dispozice bytu se hodí pro rodiny, páry s možností home office nebo pro reprezentativní bydlení v klidné, ale zároveň městské lokalitě. Společná památková ochrana budovy zachovává její architektonický charakter a činí z celého objektu vzácnou příležitost v žádané lokalitě.
Friedenau, část okresu Tempelhof-Schöneberg, je považováno za zelenou adresu doby Gründerzeit s drobným sousedským životem. Stromy lemovaný Südwestkorso nabízí příjemnou městskou atmosféru. Café (cca 20 m), restaurace (cca 50 m) a obchody se základními potřebami (cca 450 m) jsou v docházkové vzdálenosti; nedaleký Breslauer Platz dále obohacuje nabídku týdenním trhem. Pro odpočinek slouží zelené plochy v bezprostředním okolí (cca 280 m), dále pak Volkspark Wilmersdorf a Fennsee. Dopravní dostupnost je vynikající: stanice metra Friedrich-Wilhelm-Platz (U9, cca 500 m) rychle spojuje s oblastí City West a Schloßstraße. Autobusové linky najdete na nejbližší zastávce (cca 150 m). Přes uzel Innsbrucker Platz jsou dálnice A100/A103 (cca 1,5 km) snadno dosažitelné; dálkové nádraží Südkreuz je vzdáleno přibližně 4 km a letiště BER asi 23 km. Obchody a gastronomie podél Bundesallee, Rheinstraße a Schloßstraße jsou snadno dostupné – jedná se o lokalitu, která spojuje klidné bydlení s krátkými cestami do centra města.
V okolí nemovitosti najdete
Stále hledáte to pravé?
Nastavte si hlídacího psa. Nabídky vybrané na míru dostanete souhrnně 1× denně e-mailem. S Premium profilem máte k ruce hlídačů rovnou 5 a když se něco objeví, informují vás obratem.
























