
Prodej domu 5+1 • 122 m² bez realitkyChristine-Siegberg-Straße 3, , Severní Porýní-Vestfálsko
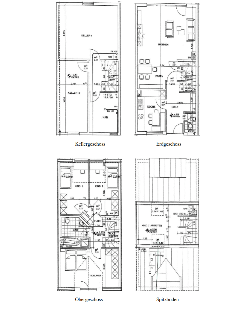
Tato nemovitost byla postavena v roce 2004 s masivní konstrukcí na pozemku o rozloze 141 m². Dům se nachází v oblíbené rezidenční oblasti Troisdorf-Bergheim v klidné dopravní čtvrti.
Nemovitost nabízí přibližně 122 m² obytné plochy, takže poskytuje dostatek místa pro rodinu.
- Nemovitost je ihned k dispozici a může být ihned zabydlena
Masivní konstrukce
přibližně 141 m² pozemku
přibližně 122 m² obytné plochy
plynové topení
zastřešená terasa
garáž
- Bez provize
- Exteriérová prohlídka je možná kdykoli
- Christine-Siegberg-Straße 3, 53844 Troisdorf-Bergheim
- Energetický průkaz je ve zpracování
- Pro dotazy volejte: 0174 73 96 191
V okolí nemovitosti najdete
Stále hledáte to pravé?
Nastavte si hlídacího psa. Nabídky vybrané na míru dostanete souhrnně 1× denně e-mailem. S Premium profilem máte k ruce hlídačů rovnou 5 a když se něco objeví, informují vás obratem.






































