
Prodej bytu 3+1 • 94 m² bez realitkyMünchen Johanneskirchen Bayern 81927
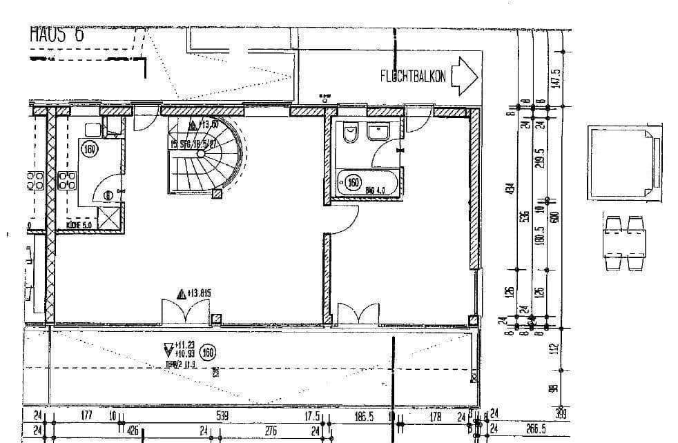
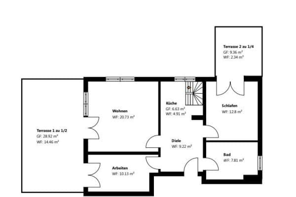
Světlem prosvětlený mezonétový byt se třemi pokoji ve 3. a 4. patře udržovaného vícegeneračního domu na adrese Preziosastr. 5a nabízí s přibližně 93,3 m² obytné plochy ideální domov pro rodiny, páry s potřebou prostoru či náročné jednotlivce. Okouzlí vás inteligentním a prostorným uspořádáním místností, množstvím denního světla a prvotřídním vybavením. Koncepce bydlení je jasně zaměřená na pocit pohodlí.
Srdcem bytu je světlý obývací pokoj ve 4. patře (cca 30 m²) s vysokým stropem a přímým přístupem na prostornou terasu na střeše, kterou lze využít téměř jako čtvrtou místnost. 4. patro je přístupné pomocí závitového schodiště uvnitř bytu a samo o sobě nemá venkovní vstup. Díky orientaci na východ je i v horkých letních dnech v místnosti příjemné klima. Dvě prostorně rozmístěné markýzy navíc poskytují stín a soukromí – ideální pro snídani nebo relaxaci po práci.
Samostatná kuchyň je vybavena kvalitní vestavěnou kuchyňskou linkou značky Schüller (2010), granitovou pracovní deskou a elektrospotřebiči značek Siemens a Miele. Většina zařízení byla v posledních pěti letech obnovena.
Obě prostorné ložnice (19,6 m² a 16,2 m²) se nacházejí na východní straně a lze je flexibilně využít jako dětské pokoje či pracovni místnosti. Od původního půdorysu byl ve 4. patře odstraněn příčka mezi místností, jež byla v půdorysu označena jako „šatna“, a ložnicí, což výrazně zlepšilo pocit prostornosti. Ke každé ložnici patří vlastní koupelna se sprchou, umyvadlem, zrcadlovou skříní a toaletou. Obě koupelny byly důkladně zmodernizovány v letech 2012 a 2013. Koupelna s denním světlem ve 4. patře nabízí dostatek místa pro pračku a sušičku (v ceně). Vnitřní koupelna ve 3. patře je větrána motorovým vývěrem a je dobře osvícena pěti LED stropními lampami.
K bytu patří také sklepní kóje a parkovací místo (není dvojité). Pro parkovací místo již existuje povolení k instalaci Wallboxu.
Byt i budova byly průběžně modernizovány a nacházejí se ve velmi dobrém stavu. Tento půvabný mezipatrový byt promyšleně kombinuje prostor, světlo a funkčnost a je atraktivní jak pro uživatele vlastního bydlení, tak pro investory.
Ulice Preziosastraße se nachází ve vyhledávané mnichovské čtvrti Bogenhausen, ve čtvrti vhodné pro rodiny – Johanneskirchen. Oblast je známá moderním městským plánováním, prostornými zelenými plochami, klidnými dopravními zónami a živým sousedským prostředím.
Bytový komplex Freischützstraße, navržený společností Steidle + Partner, je považován za architektonickou perličku městské bytové kultury. V přímém okolí najdete hřiště, sportoviště, mateřské školy a základní školu, které jsou všechny dosažitelné bez nutnosti přecházet rušné silnice. Reálná škola a gymnázium jsou vzdáleny asi 15 minut chůze a Waldorfska škola je dostupná za šest minut autem nebo osm minut na kole.
Pro každodenní potřeby jsou k dispozici dvě nedaleká nákupní centra s hypermarkety, obchody, restauracemi a pivnicí. Anglická zahrada je též jen na krátkou procházku – za 20 minut se dostanete k Emmeramsmühle, bráně do Isarských luk a rozsáhlým zeleným plochám.
Dopravní dostupnost je vynikající: stanice S-Bahn Johanneskirchen (osmi minut chůze) spojuje během přibližně 20 minut s hlavním nádražím a letištěm. Blízko se nacházejí také autobusové a tramvajové linky. Automobilově se za 10 minut dostanete na dálnici A9 směřující k Norimberku. Navzdory vynikající dostupnosti je lokalita příjemně klidná.
Pro volnočasové aktivity lákají severní oblast u jezera Feringa, západní břeh řeky Isar či jižní Cosimabad, které jsou snadno dostupné na kole či tramvají.
Johanneskirchen a bytový komplex Freischützstraße představují moderní, udržitelné a rodinné bydlení, ideální pro ty, kteří chtějí kombinovat městský život s přírodní atmosférou.
Součástí kupní ceny je vestavěná kuchyň, markýzy, pračka se sušičkou (Miele) a několik zakázkových vestavěných kusů nábytku a zařízení.
Byt je k nastěhování počátkem března.
V okolí nemovitosti najdete
Stále hledáte to pravé?
Nastavte si hlídacího psa. Nabídky vybrané na míru dostanete souhrnně 1× denně e-mailem. S Premium profilem máte k ruce hlídačů rovnou 5 a když se něco objeví, informují vás obratem.


























