
Prodej bytu 2+1 • 86 m² bez realitkyNaunynstr. 68 Berlin Kreuzberg Berlin 10999
Naunynstr. 68 Berlin Kreuzberg Berlin 10999MHD 3 minuty pěškyDvě patra, dva balkony, spousta světla a prostoru na oddech – přímo v rušném Kreuzbergu. Tento zmodernizovaný historický byt je individuálně a kvalitně vybavený a nachází se v zeleném, klidném vnitřním dvoře. Prodej bez provize, bez makléře a ihned k nastěhování.
VRCHOLNOSTI BYTU
- Maisonette v 1. a 2. patře boční části
- Dva balkony orientované na západ
- Klidná poloha ve vnitřním dvoře
- Nepronajatý, ihned volný
- Prodej bez provize přímo od vlastníka
- Kvalitní vestavěná kuchyň s přírodním kameninovým deskou a integrovaným posezením od berlínského umělce
- Úložný koutek vedle kuchyně
- Koupelna s denním světlem se sprchou, vanou, umyvadlem z přírodního kamene a značkovou armaturou (Steinberg)
- Prostorná šatna
- Dřevěná okna s dvojitým zasklením – úsporná a půvabná
- Vysoké stropy (3,06 m / 2,98 m) s místy velkými stropními světly
- Historické litované železné okno a zábradlí
- Dubová parketa ve všech obytných místnostech
- Suchá sklepní přihrádka
- Videointerkom
Dům A KOMUNITA
- Udržovaný, zrekonstruovaný historický dům, kompletně renovován v roce 2014
- Krásně a zeleně upravený vnitřní dvůr
- Velká společná střešní terasa v podkroví
- Topení a teplá voda zajišťovány prostřednictvím dálkového vytápění
- Tepelně izolovaná fasáda
- Dobře vybudovaný fond na údržbu
- Velmi příjemná komunita obyvatel
Živá čtvrť s mnoha kavárnami, restauracemi, malými obchody a vynikající dostupností městské dopravy. Sama ulice je příjemně klidná, vnitřní dvůr pak ještě klidnější. Zde je slyšet spíše zpěv ptáků než městský hluk.
ZAŘÍZENÍ
Byt může – ale nemusí – být koupený zařízený. Veškerý nábytek viditelný na fotkách lze zakoupit individuálně nebo jako balíček za výhodnou cenu k okamžitému nastěhování. Červená lednice značky Bosch a samozřejmě kuchyňský ostrůvek s posezením jsou součástí vestavěné kuchyně a již jsou zahrnuty v kupní ceně.
SCHÁZECÍ POPLATEK
Měsíční poplatek, který aktuálně činí 337 €, zahrnuje veškeré náklady na topení, teplou vodu a vodu! Dále jsou v poplatku zahrnuty náklady na příspěvek do fondu na údržbu.
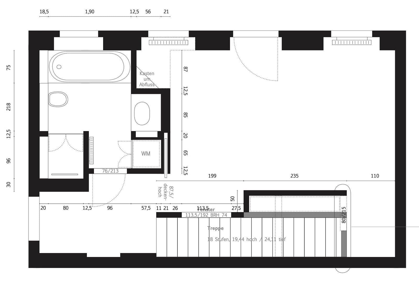
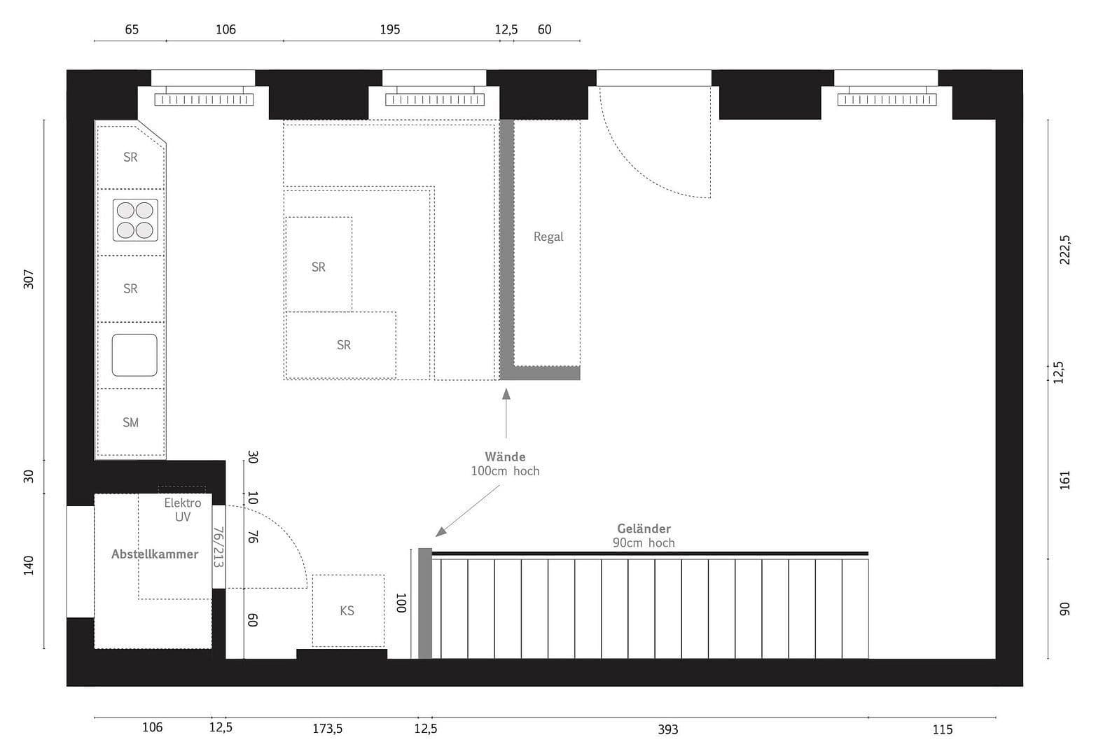
PODLAŽNÍ PLÁNY
Ukázané podlažní plány nezahrnují oba balkony. Ty se nacházejí na obou patrech mezi dvěma středními okny.
V okolí nemovitosti najdete
Stále hledáte to pravé?
Nastavte si hlídacího psa. Nabídky vybrané na míru dostanete souhrnně 1× denně e-mailem. S Premium profilem máte k ruce hlídačů rovnou 5 a když se něco objeví, informují vás obratem.


































