
Prodej bytu 3+1 • 79 m² bez realitkySchillerstraße München Ludwigsvorstadt Bayern 80336
Tato okouzlující 3+ pokoje byty s optimálním dispozicemi se nachází v 1. patře udržované bytové budovy na nejlepší lokalitě Mnichova (Ludwigsvorstadt).
Hlavní přednosti nemovitosti:
- Kompletní rekonstrukce do konce května 2026
- Velmi centrálně mezi hlavním nádražím a historickým centrem
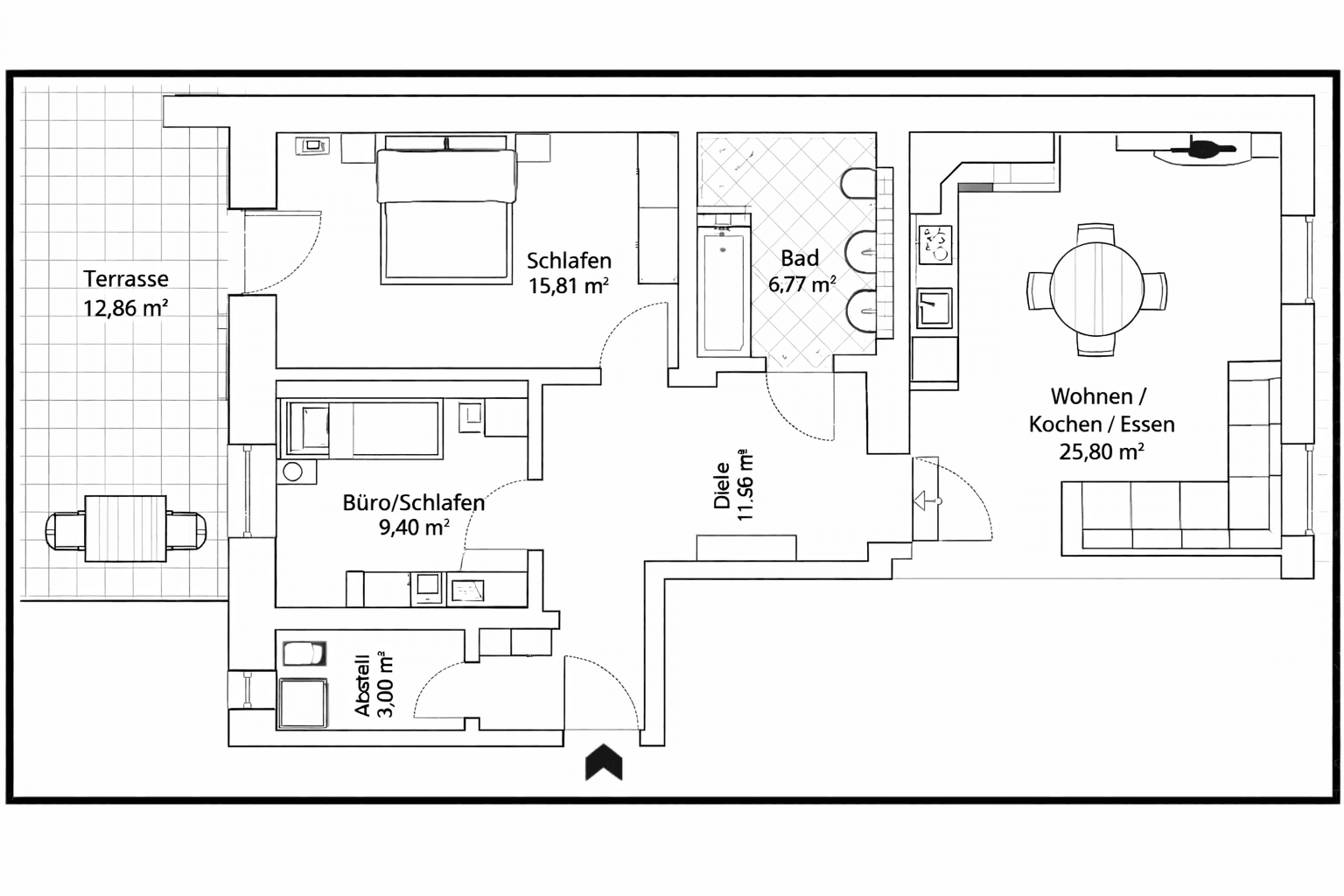
- Prostorný, klidný balkon o rozloze cca 12 m² orientovaný do vnitřního nádvoří
- Kupující může při včasném nákupu spolurozhodovat o vnitřním designu a materiálech (výběr vzorků)
- Sestavené závěsné stropy na chodbě a v koupelně (LED světla)
- Úložný kout (cca 3 m²) v bytě a sklep (cca 5 m²) zajišťují dodatečný úložný prostor
Díky promyšlenému dispozicím a kvalitním materiálům nabízí byt moderní a útulnou atmosféru. Byt se prodává bez nábytku, kompletně zrekonstruovaný a na přání může být předán s novou kuchyní – nastěhujte se a užívejte si domov!
Společenství vlastníků:
- V roce 2006 provedena renomovanou mnichovskou stavební firmou kompletní rekonstrukce starší budovy
- Udržovaný celkový stav
- Žádné opožděné údržbové zásahy
Nemovitost se nachází v centrální části Mnichova – v částech Ludwigsvorstadt-Isarvorstadt – živé a městské čtvrti s vynikající infrastrukturou. Obchody, supermarkety, lékárny, kavárny a restaurace se nacházejí v bezprostřední blízkosti. Školy, mateřské školy i zdravotnická zařízení jsou dosažitelná pěšky. Veřejná doprava je skvěle zajištěná: stanice metra jako Theresienwiese a hlavní nádraží, několik autobusových a tramvajových linek spolu s mnichovským hlavním nádražím poskytují optimální dopravní spojení do všech částí města. Lokalita spojuje městský život s krátkými vzdálenostmi a vysokou každodenní funkčností.
- Nová koupelna včetně kompletní výměny vodovodních rozvodů
- Kvalitní sanitární vybavení a nadčasové keramické obklady
- Volitelně koupelnová vana se sprchovým koutem nebo přístupná skleněná sprcha
- Nová elektroinstalace v celém bytě
- Nové datové rozvody (LAN zásuvka v každé místnosti)
- Kvalitně omítnuté stěny pro moderní pocit domova
- Nové dveře a obklady rámů v nadčasovém designu
- Kvalitní parket v celém obytném prostoru (venkovské dubové dřevěné podlahy)
- Nová vestavěná kuchyň včetně moderních elektrospotřebičů
Další vybavení:
- Prostorná terasa pro relaxaci venku (cca 12 m²)
- Sklepní kóje (cca 5 m²) pro dodatečné úložné prostory
Celková cena činí 895 000,– €. Bez realitní provize.
Zařazený inventář, který zůstává: nová vestavěná kuchyň, závěsné svítidla, zrcadlo a spodní skříňka v koupelně.
Není zahrnuto parkovací místo, ale v budově je k dispozici podzemní garáž (veřejná garáž).
V okolí nemovitosti najdete
Stále hledáte to pravé?
Nastavte si hlídacího psa. Nabídky vybrané na míru dostanete souhrnně 1× denně e-mailem. S Premium profilem máte k ruce hlídačů rovnou 5 a když se něco objeví, informují vás obratem.















