
Prodej bytu 2+1 • 58 m² bez realitky, Dolní Sasko
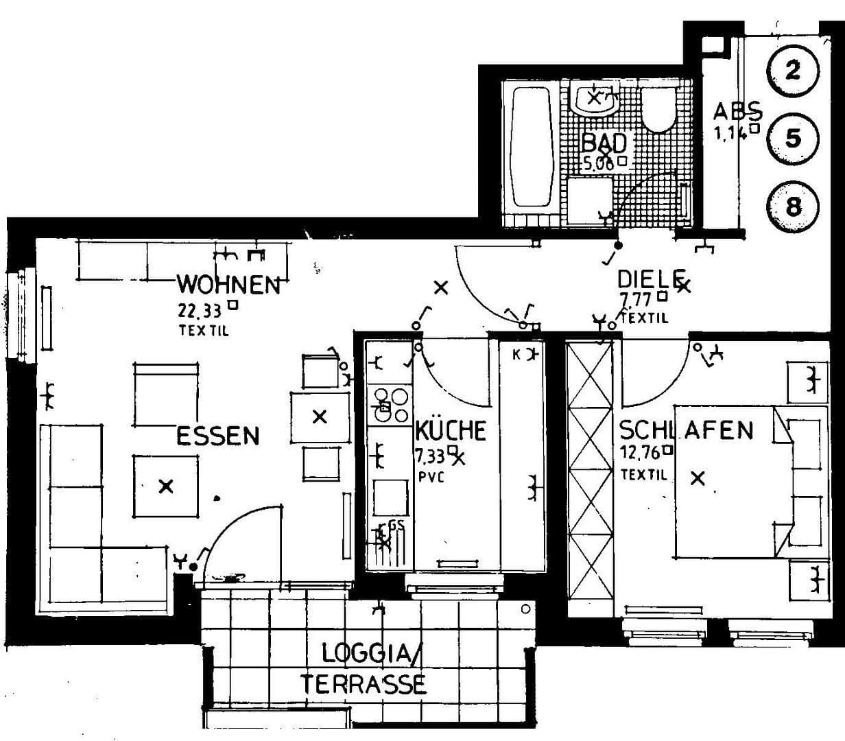
Tento komplexně zrekonstruovaný dvoupokojový byt se nachází ve 2. patře udržovaného bytového domu. S přibližně 58 m² obytné plochy a orientací na jihozápad nabízí světlé a funkční dispozice.
Slunná obývací část má přímý přístup na jižní balkon, který je vybaven elektrickou markýzou. Velký strom zajišťuje v létě příjemnou ochranu před zvědavými pohledy.
V rámci modernizace byla kompletně přestavěna všechna obytná místa – obývací pokoj, chodba a ložnice byly vybaveny novým parketovým podlahovým krytem. Všechny vnitřní dveře byly vyměněny. V kuchyni byly položené kvalitní podlahové dlaždice.
Dále je novinkou i vestavěná kuchyňská linka, která nabízí mnoho zásuvek a úložného prostoru spolu s elektrospotřebiči od výrobců Miele a Bosch. I sprchové koupelna byla v rámci rekonstrukce modernizována.
Navíc došlo k technickému zlepšení – byla instalována nová domovní vysílačka, byly vyměněny vypínače světel a zásuvky. Stávající zakázkový vestavěný šatník v chodbě byl zrekonstruován.
Rekonstrukce balkonu je momentálně v závěrečné fázi. Byly provedeny podlahové práce, nový dlaždicový povrch je již položen. Nyní probíhají poslední malířské a opravárenské práce.
Byt je spojen s vlastním parkovacím stáním. Velkorysý pozemek je zateplen starým stromovým porostem a má funkční členění. Obyvatelé mají k dispozici společnou zahradu, vlastní sklep a společný sklep pro kola a sušení prádla. Pro likvidaci odpadu je vyhrazeno samostatné, oddělené místo.
Byt je vhodný pro jednotlivce nebo páry. Díky atraktivní poloze je zajímavý také pro investory. Prodej probíhá bez provize.
Nemovitost se nachází v žádané obytné čtvrti Hannover-Ricklingen, jen asi deset minut pěšky od zeleného Leinemaschu. Poloha spojuje klidné, přírodou obklopené bydlení s blízkostí centra města. V bezprostředním okolí domu se nachází rozsáhlé, zelené hřiště.
Doprava veřejnou dopravou je vynikající: konečný bod autobusových linek na August-Holweg-Platz, zastávka S-Bahn Bf. Linden/Fischerhof a zastávka městské dráhy Schünemannplatz jsou snadno dostupné a umožňují rychlý přístup do centra a do okolí. Díky blízkosti hlavních dopravních tepen (mimo jiné B6 / Westschnellweg) existuje rychlé spojení směrem k centru, Linden, Herrenhausen i k dálnicím A2 a A7.
Všechny denní potřeby jsou v dosahu: lékaři, lékárny, školy a jesle i nákupní možnosti – od týdenního trhu, přes supermarkety až po diskontní obchody – jsou snadno dosažitelné.
Vybavení a přednosti:
- Slunný dvoupokojový byt ve 2. patře
- Přibližně 58 m² obytné plochy
- Orientace na jihozápad se světlým obytným prostorem
- Prostorný jižní balkon s elektrickou markýzou a výhledem do zeleně, cca 6 m²
- Nově položené kvalitní parkety
- Nové vnitřní dveře
- Nové podlahové dlaždice v kuchyni
- Kvalitní, nová vestavěná kuchyňská linka s dostatkem úložného prostoru a elektrospotřebiči od Miele/Bosch
- Modernizovaná sprchová koupelna, bezprahová sprcha
- Praktický, prostorný vestavěný šatník v chodbě
- Společná zahrada
- Vlastní sklep
- Společný sklep pro kola/sušení prádla
- Vlastní parkovací místo na pozemku
Prodej bytu probíhá bez provize pro kupujícího.
V okolí nemovitosti najdete
Stále hledáte to pravé?
Nastavte si hlídacího psa. Nabídky vybrané na míru dostanete souhrnně 1× denně e-mailem. S Premium profilem máte k ruce hlídačů rovnou 5 a když se něco objeví, informují vás obratem.





















