
Prodej domu 5+1 • 127 m² bez realitkyHintergasse / Am Martinsberg, , Porýní-Falc
Celkem bude na přibližně 1580,00 m² velkém pozemku realizován 1 dvojdům a 2 řadové domy.
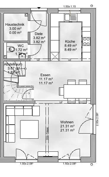
Jedná se o jeden ze čtyř řadových koncových domů s vlastním pozemkem.
Vlastník pozemku získal stavební povolení a nyní si přeje tento pozemek zastavět a prodat spolu s obytným domem.
Společnost Lebensplatz Projekte GmbH zajistí všechny potřebné stavební práce.
Domy budou postaveny v dřevěné konstrukci s odpovídající tepelnou izolací a s fotovoltaickým systémem.
Tím je umožněna podpora KfW.
Domy zaujmou velkým prostorem, nízkými náklady na vytápění a množstvím doplňků.
Obec Siefersheim se nachází v západní části Rheinhessenu, v okrese Alzey-Worms, a patří do sdružení obcí Wöllstein v Porýní-Falci. Vinné město se nachází asi 10 km západně od Alzey a přibližně 15 km východně od Bad Kreuznach, zasazené do kopcovité krajiny mezi vinohrady, loukami a chráněnými územími.
Tato poloha činí místo atraktivním i z turistického hlediska – například turistická stezka Hiwweltour „Heideblick“ prochází tímto územím.
Dopravně je Siefersheim dobře dostupný díky nedaleké dálnici A61. Regionální autobusové linky a občanský autobus zajišťují spojení s okolím a se správou sdružení obcí ve Wöllstein.
Ve Wöllstein (asi 4 km vzdáleném) naleznete pestrý výběr obchodních možností: REWE, ALDI, Netto, drogerii, několik pekáren a řeznictví. Dále máte k dispozici lékaře, lékárny a řadu menších služeb.
Následující služby jsou zahrnuty v kupní ceně:
– Zemní práce pro základovou desku a úpravu venkovních prostor
– Veškeré inženýrské sítě pro domy
– Veškeré odvodňovací potrubí
– Dlažba pro cesty, terasy a vymezené prostory
– Úložné prostory a příčné zdi na terasách
– Zakrytí odpadkových kontejnerů
– Plot s tyčovým mřížovým designem po celé délce hranice pozemku
– Horní vrstva půdy se setím trávníku
– 2x venkovní parkovací místa s wallboxem
– Dům v dřevěné konstrukci s minerální izolací
– Tepelné čerpadlo pro vytápění a ohřev vody
– Centrální ventilační systém s rekuperací tepla
– Podlahové vytápění
– Podlahové krytiny dle vlastního výběru
– Fotovoltaický systém o výkonu cca 5 kWp a bateriový úložný systém o kapacitě cca 5 kWh
– Plastová okna s elektrickými roletami
– Vysoce kvalitní hliníkové vstupní dveře
– Masivní schodiště s dřevěnými stupni (Eche)
– Stavební náklady a služby energetického poradce
Do kupní ceny nejsou zahrnuty kupní náklady ani náklady spojené s prohlášením o dělení.
V okolí nemovitosti najdete
Stále hledáte to pravé?
Nastavte si hlídacího psa. Nabídky vybrané na míru dostanete souhrnně 1× denně e-mailem. S Premium profilem máte k ruce hlídačů rovnou 5 a když se něco objeví, informují vás obratem.








