
Prodej bytu 3+kk • 77 m² bez realitkyTreptower Strassse 92 Hamburg Rahlstedt Hamburg 22147
Treptower Strassse 92 Hamburg Rahlstedt Hamburg 22147MHD 1 minuta pěšky • ParkováníTato vysoce kvalitní a komplexně zrenovovaná 3-pokojová bytová jednotka se nachází v horním přízemí pečlivě udržovaného činžovního domu se šesti byty. Budova stojí na prostorném pozemku, který nabízí dostatek prostoru, odstup a příjemně otevřené obytné prostředí.
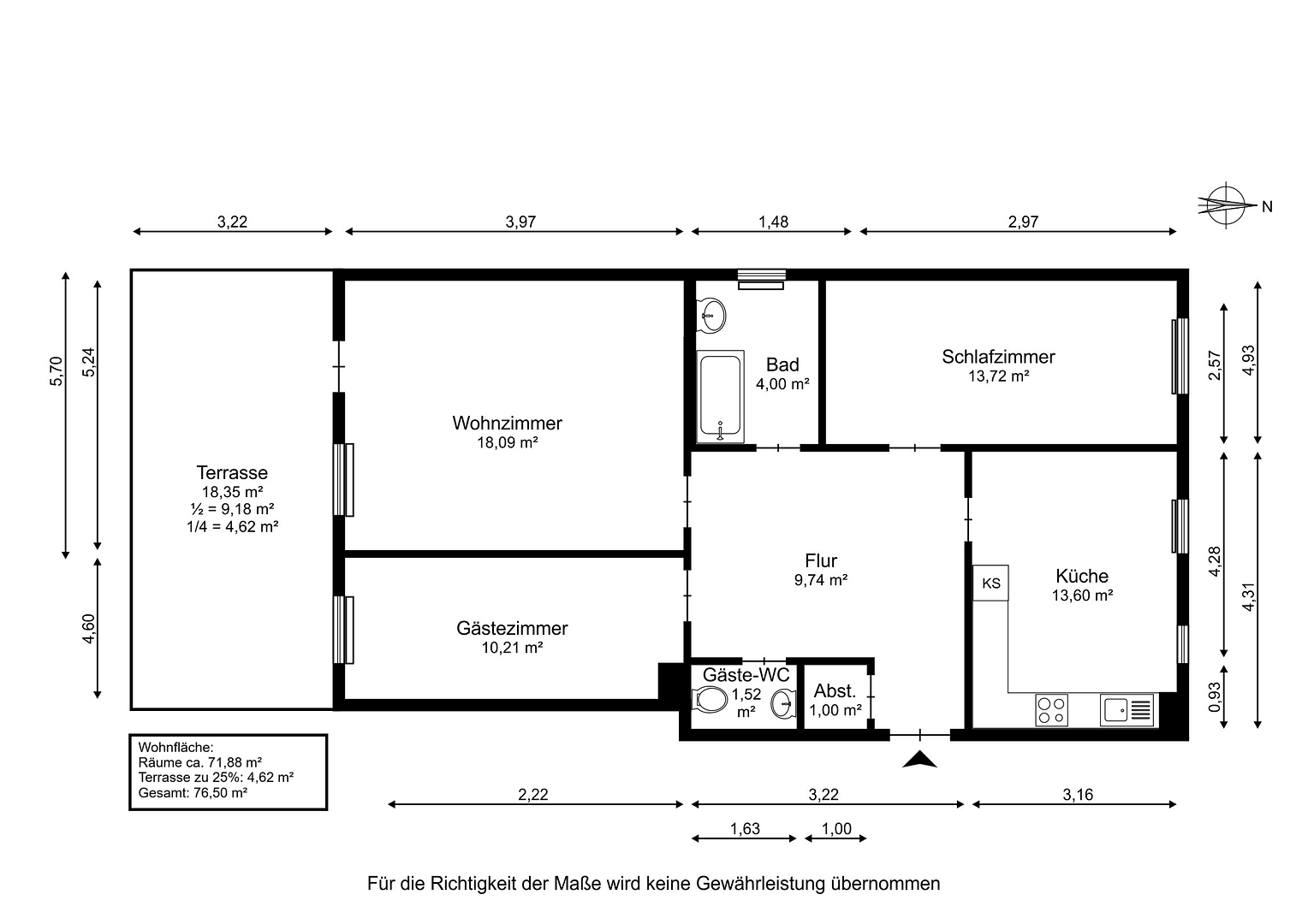
Byt zaujme svou velmi dobře promyšlenou dispozicí. Disponuje útulnou ložnicí, světlým dětským pokojem / pracovnou, velkorysou kuchyňskou částí sloužící i jako jídelna a prostorným obývacím pokojem s přímým vstupem na slunnou jižní terasu.
Tato kombinace vytváří ideální mix obytného komfortu, denního světla a vysoké kvality života.
K dispozici je koupelna s vanou, samostatné WC a praktický úložný prostor, které rozumně doplňují nabídku místností.
Navíc poskytuje vlastní sklepní místnost další prostor pro uskladnění.
K dispozici je rovněž místo v carportu.
Dům je vytápěn plynovým centrálním topením, které bylo obnoveno v roce 2016, což přispívá k efektivnímu a spolehlivému provozu topení. Dále se v suterénu nachází udržovaná prádelna a sušárna, které jsou dostupné ke společnému využití.
Byt je ideální jak pro vlastníka, tak pro investory hledající nemovitost v hodnotné lokalitě s dobrou možností pronájmu.
Byt se nachází v klidné a zároveň dobře dostupné obytné oblasti v oblíbené hamburské čtvrti Rahlstedt.
Okolí je charakterizováno udržovanou směsí rodinných domů a menších činžovních domů, které vytvářejí příjemné, harmonické obytné prostředí.
Zelené okolí s parky a rekreačními oblastmi nabízí vysokou míru volnočasových možností – ideální pro procházky, jogging nebo sportovní aktivity venku.
Infrastruktura je vynikající:
Obchody pro každodenní potřeby, mateřské školy, školy, lékaři a lékárny jsou dosažitelné pěšky nebo na kole.
Městská hromadná doprava je optimálně propojena. Několik autobusových linek a blízká stanice S-Bahn zajišťují rychlé spojení do okolních čtvrtí i do centra Hamburku, které je dosažitelné zhruba za 20 minut.
Kombinace přírody, vyspělé infrastruktury a velmi příjemného obytného prostředí činí tuto lokalitu ideální pro páry, malé rodiny i všechny, kteří chtějí spojit městský život s klidnou obytnou atmosférou.
- Vysoce kvalitní a kompletně zrenovovaný byt
- Prostorná kuchyňská část – ideální jako jídelní prostor a centrum domu
- Prostorný obývací pokoj s přístupem na jižní terasu
- Ložnice a dětský pokoj, oba dobře řešení
- Koupelna s vanou a umyvadlem
- Samostatné WC
- Praktický úložný prostor v bytě
- Vlastní sklepní místnost s dalším úložným prostorem
- Místo v carportu
- Udržované společné prostory: prádelna a sušárna
- Plynové centrální topení, obnoveno v roce 2016
- Klidný obytný komplex s příjemnou domovní komunitou
- Prostorný, udržovaný pozemek (cca 1 481 m²)
V měsíčním poplatku jsou již zahrnuty fond oprav (183 € / měsíčně) i náklady na topení.
V okolí nemovitosti najdete
Stále hledáte to pravé?
Nastavte si hlídacího psa. Nabídky vybrané na míru dostanete souhrnně 1× denně e-mailem. S Premium profilem máte k ruce hlídačů rovnou 5 a když se něco objeví, informují vás obratem.























