
Prodej bytu 3+1 • 95 m² bez realitkyGrafing bei München Grafing bei München Bayern 85567
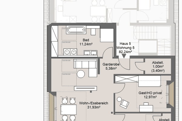
Grafing bei München Grafing bei München Bayern 85567MHD 1 minuta pěšky • Výtah • GarážOba rodinné domy se šesti byty se vyznačují moderní architekturou a konceptem bydlení, který vyhovuje různým potřebám. Světlé byty nabízejí promyšlené dispozice, prostorná okna a – podle konkrétní jednotky – balkony, terasy nebo střešní terasy pro relaxaci na čerstvém vzduchu.
Zvláštní důraz byl kladen na energetickou účinnost a udržitelnou výstavbu, takže zde bydlíte nejen komfortně, ale i s ohledem na budoucnost. Další komfort zajišťují parkovací místa v podzemní garáži, úložné prostory a moderní technické vybavení domu, které dělá bydlení co nejpříjemnějším.
Ulice Hesselfurterstraße se vyznačuje příjemným klidem a nízkou dopravní zátěží. Přestože je blízko centra města, příroda je stále přítomna: četné pěší stezky vybízejí k výletům do přírody. Současně je centrum Grafingu dosažitelné během několika minut chůze – najdete zde vše, co denně potřebujete. Výhodou těchto nemovitostí je také vynikající dostupnost veřejné dopravy: Nádraží Grafing Stadt je rychle dosažitelné pěšky a nabízí spojení S-Bahn i autobusových linek do regionu. Nádraží Grafing Bahnhof s konceptem „Park & Ride“, nadregionálním dopravním uzlem se spojením S-Bahn, regionální i dálkové dopravy, se nachází jen několik minut jízdy autem a umožňuje rychlé spojení do Mnichova a Rosenheimu.
„Náš Plus+“
Decentralizovaný ventilační systém ve všech bytech s rekuperací tepla zajišťuje nepřetržitou výměnu vzduchu a tím přispívá ke zlepšení vnitřního klimatu i energetické účinnosti.
Dvě fotovoltaické elektrárny vyrábějí část energie potřebné pro vytápění, chlazení i pro celkový elektrický provoz domu.
Regulaci teploty zajišťuje chlazení povrchů prostřednictvím stávající podlahového vytápění a tepelného čerpadla, jež přechází do režimu chlazení.
Bezbariérový přístup je zajištěn u 10 z 12 bytů.
Pro elektromobilitu a správu nabíjení jsou na všech parkovacích místech v podzemí připraveny přípojky pro nabíjecí stanice a datové linky.
Podrobnější informace a kompletní exposé naleznete na www.riedl-baukultur.de
V okolí nemovitosti najdete
Stále hledáte to pravé?
Nastavte si hlídacího psa. Nabídky vybrané na míru dostanete souhrnně 1× denně e-mailem. S Premium profilem máte k ruce hlídačů rovnou 5 a když se něco objeví, informují vás obratem.










